-
项目定位:青春、快乐、鲜亮的黄色象征圆满和美好团聚的圆
代表石泉丘壑和水渠的V,
以及永远追求完美的+构成
永远不停追求完美
让客人更满意的服务
像车轮一样永远向前
像V一样永远蓬勃向上 -
空间意境:利用简化的几何线条,交错、分割、叠加,
达到简洁又有空间贯穿性的视觉效果。
将山、路、汽车的概念融入有色彩的设计中,
令空间更加个性有趣,突显酒店特色。 -
空间布局:接待前台取LOGO中的V,设计简洁流畅的线条结合明亮的色彩,给客户视觉上的冲击力,同时将接待功能区分开。
等候区座椅与吊顶的设计从LOGO中取+的延续 象征酒店努力追求完美的最佳行业态度,强调立体的造型让顾客一进入大堂就感受到酒店的自信与责任
-
设计选材:准客房以鲜亮的彩色乳胶漆或特色壁纸等材质,结合个性的配套功能和窗帘,满足使用外,突出酒店主题。
-
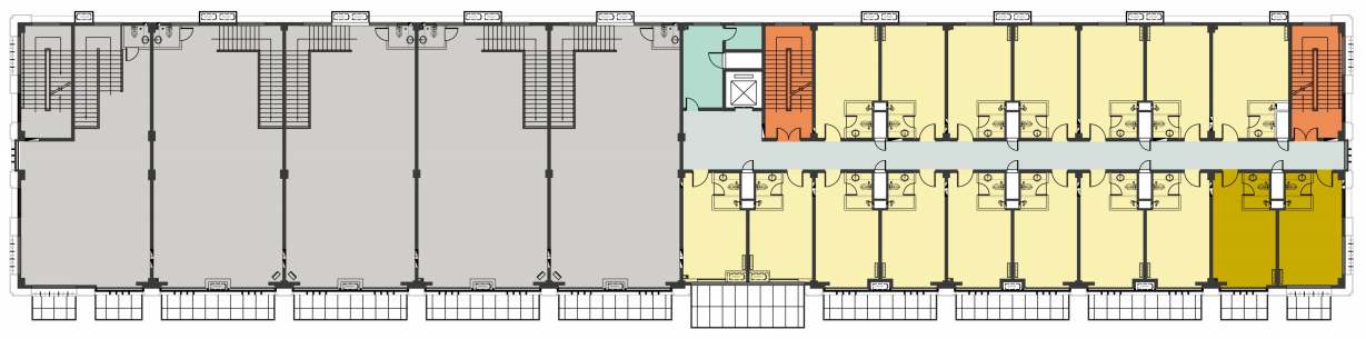
用户体验:特色主题房将四层15个房间分为多种类型主题(如汽车、卡通、运动)主要依靠软装将有趣的主题夸张放大,令空间生动有趣。
微信图片_20191106193045
微信图片_20191106193052
微信图片_20191106193151
微信图片_20191106193002
微信图片_20191106193142
微信图片_20191106192952
微信图片_20191106193006
微信图片_20191106193016
微信图片_20191106193040
微信图片_20191106193146
微信图片_20191106192958
微信图片_20191106193049
微信图片_20191106193011
微信截图_20191112114833
微信截图_20191112114917
微信截图_20191112114847
微信截图_20191112114904
0
0

认证 · 让您身份增值
49