鹏翔生态石生活馆
129647 - 项目类型:展示
- 项目地点:南安市
- 建筑面积:1500.0000㎡
- 项目造价:1200.0000万元
- 主案设计师: 郭裕发
- 参与设计师:郭裕发、王少芳、叶岩、邱跃峰、华明辉、童军
- 竣工时间:2019-10-24
- 设计机构:岩肆拾陆号建筑装饰设计有限公司
-
项目定位:该项目是目前人造石领域体量最大、品种最多、工艺应用最齐全的展厅,展馆注重公众与展馆之间的交互性、参与性和情境性,规划定位为以工业+旅游、循环经济示范、文化体验、人造石科普教育等功能为主,是青少年科普教育活动的重要基地。将场景式的体验赋予再生石更多内涵与灵感,配合空间设计风格、家居理念、用材搭配、互动体验等多方面传达生活空间及理念,以极致的产品服务让更多人享受再生之美的家居环境,为用户带来使用绿色建筑产品——再生石所带来的家居空间美感与体验。
-
空间意境:整个生活馆内采用国内领先的再生石设计理念,将自然、建筑、园艺等元素完全结合,打破了传统的再生石应用展示,力求探索再生石的更多可能。在展示上,馆内除了传统的实物展示、展板、灯箱、LED声光电的展示方式外,还综合采用了体验互动和超高清彩屏等现代设计手法,最大限度将再生石发展与国内先进的科技手段结合,把工业旅游、循环经济示范的魅力通过多个维度更加真实地展示。
-
空间布局:再生石选材中心汇集世界上高达上千种的再生石品种,被称为“再生石图书馆”,以空间来表达“再生”的理念,包括再生大理石、生态石英石、水磨石板材、人造玉石、3D纳米石,是全球品类最齐全的再生石选材中心。馆内设有情景模拟间、网红打卡点、大板展示区等,通过东西方经典的艺术符号和当代设计手法展示。
-
设计选材:生活馆以“循环再生·未来之光”为主题,遵循“绿色环保、节能减排、资源再生、废物利用”的循环设计原则。以废弃的石料为主张,采用国际先进技术结合,创造出与众不同的再生石材,不仅丰富了选择范围,也满足各类空间的更高需求。
-
用户体验:客户能通过视、听、味、触4个维度来感受鹏翔再生石独有的生活美学,让消费者在感受再生石的不同模拟空间应用效果外,还能亲身体验如何把环保与再生运用到家居之上。每一架大板配有产品二维码,客户在参观时只要扫码即可了解产品详情及应用效果,展示大板的同时又跳出单一销售的局限,在参观的同时给人更多的空间设计启迪。
大堂空间:大堂主背景墙采用石英石超大规格板设计的造型屏风打造的自然肌理效果,大堂的柱子造型灵感源于宋越窑青瓷镂空花瓶,选用石英石通过喷砂、雕刻等来处理墙面材质关系,主体结构质地坚硬紧密,韧性高,与天然石材对比,无色差、避免加工过程出现的裂纹,成为大堂的一大亮点,主墙面和地面都是以白色为主色调,地面更是全球首创的石英石大板3200X1600mm大板硬底留缝铺贴,是目前天然石和瓷砖无法挑战的。整个大堂在大色调统一的情况下,又能看出明度的不同细节搭配,既整体又有细节。
大堂空间
大堂空间
大堂空间
大堂空间
大堂空间
大堂空间
公共区域
开放式橱柜展示空间:通过构建场景,还原日常熟悉的生活,让来访者衍生出N多生活灵感,向往更幸福的明天。情景模拟间在 产品展示模式上创新求变:不是先搭建空间再陈列产品,而是把产品融入到空间陈设的一部分。用模拟场景的整体氛围来表达产品效果,强调空间人性化、艺术化、舒适化。在这里,再生石是当之无愧的主角。
开放式橱柜展示空间
再生石砖体验区:灵感来源与当下最流行的几何元素以及色彩丰富的魔方,通过精心设计的半场景展示来营造再生石砖的应用氛围,围绕再生石的材质、肌理和色彩呈现不同格调的时尚体验。
再生石砖体验区
再生石砖体验区
再生石砖体验区
再生石砖体验区
再生石砖体验区
再生石砖体验区
企业史展示区
企业史展示区
公共卫生间
外景
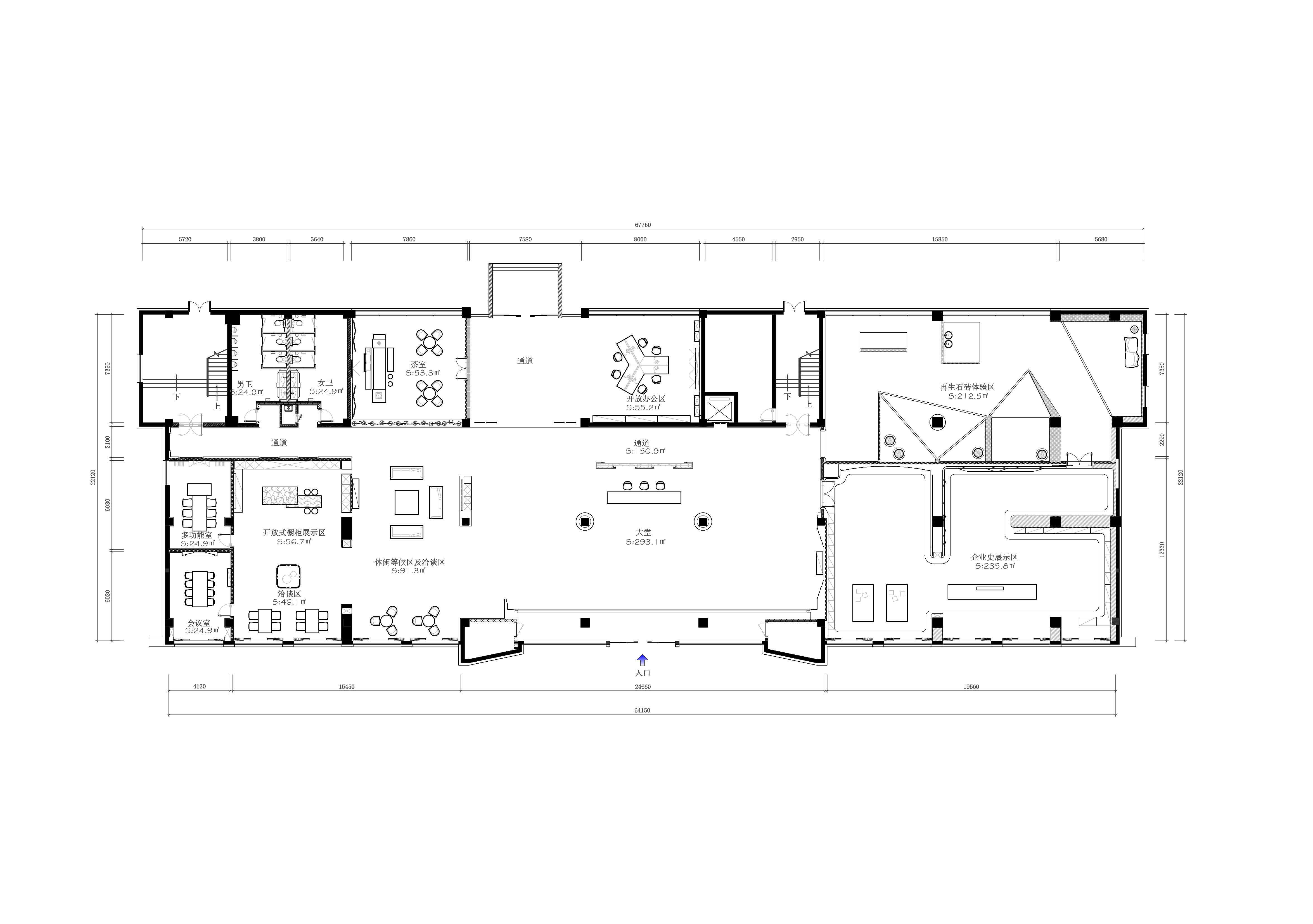
展馆内设循环经济厅、生活艺术厅、再生石选材中心三大部分,设有人造石时间简史区,循环经济及原材料展示区、工厂沙盘区、人造石仪器检测项目区、操作台与设计师DIY区、案例展示区、品牌荣誉区与品牌文化区等多个主题展区和再生石砖体验区、再生石选材中心2个功能区,生活馆内选材中心区涵盖高达上千种的再生石品种,是全球品类最齐全的再生石选材中心。 整个生活馆内采用国内领先的再生石设计理念,将自然、建筑、园艺等元素完全结合,打破了传统的再生石应用展示,力求探索再生石的更多可能。在展示上,馆内除了传统的实物展示、展板、灯箱、LED声光电的展示方式外,还综合采用了体验互动和超高清彩屏等现代设计手法,最大限度将再生石发展与国内先进的科技手段结合,把工业旅游、循环经济示范的魅力通过多个维度更加真实地展示。
2
4

认证 · 让您身份增值