海南诺富特酒店


作品说明
- 项目类型:酒店
- 项目地点:海口市
- 建筑面积:17800.0000㎡
- 项目造价:100.0000万元
- 竣工时间:2019-04-11
-
项目定位:设计底蕴都始终惯穿着诺富特的品牌特色——兼顾美学价值与实用功能,彰显现代气息,简约质朴而又正式庄严,赋予酒店一种生气勃勃的氛围。
-
空间意境:典雅与素朴的时尚艺术装置、序列与韵律的现代构成手法赋予了酒店现代、年轻、时尚的独特艺术气质,打造一种温馨度假、休闲商务、质朴雅致的酒店体验。
-
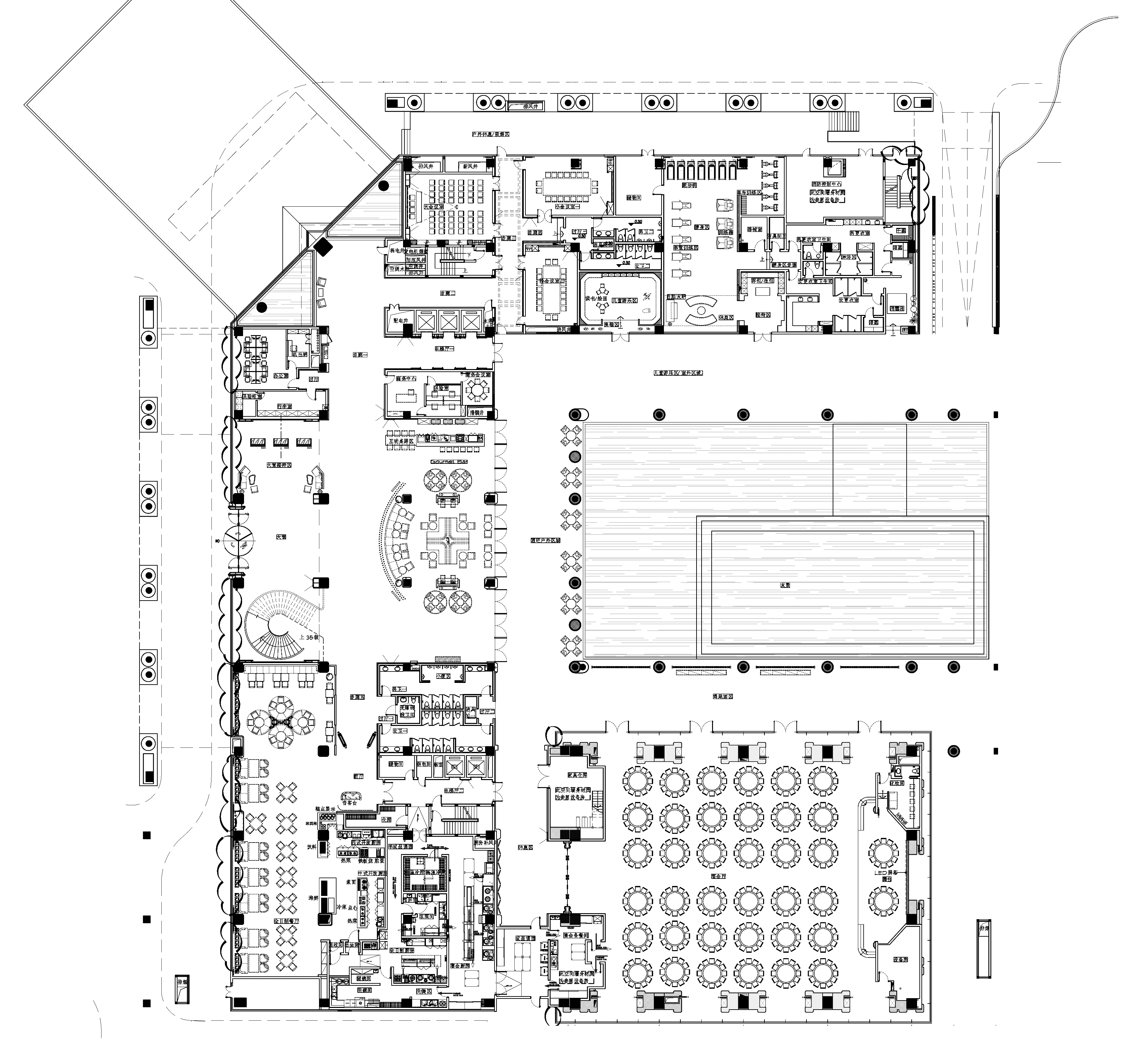
空间布局:大堂运用了海南岛当地的海南板岩和黄锈石为主要材料,体现了地域特色之余又可以有效地控制成本。我们巧妙地处理大堂不同的功能分区与疏密、开合、收放、松紧等空间关系。大堂中间的半弧木条造型令空间有了良好的区分,为大堂吧的休闲区带来一定私密性,同时也在自然与灯光的多元变幻下,产出富有层次感的光影韵律,趣味朴生。
-
设计选材:好的设计大抵就是让人舒服自在。酒店共142间客房,基于建筑造型的特点,共设计了11 种房型,每种房型都充满挑战。客房设计保留了雅高一贯的质感,同时展示出海南当今时尚的生活理念,让简朴低调之美伴随日常起行。
客房陈设清雅,米色、木色与皮革肌理,充盈在家具、艺术品与装饰细节中,简洁的造型于细微处营造自然轻松居住感觉,让宾客在忙碌的旅途生活中停下脚步,舒缓身心。
-
用户体验:旅客穿梭于酒店空间中,在一坐卧一抚触之间,体验着诺富特酒店的无微不至的服务,也享受着当下偷得“浮生半日闲”的滨海惬意时光。

