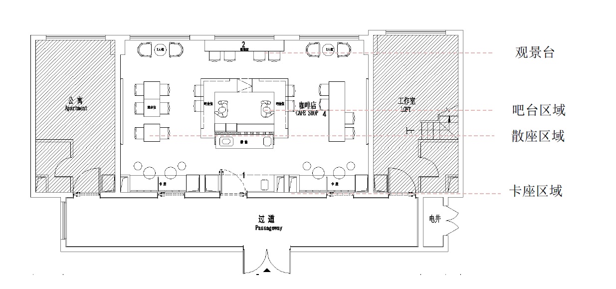
重庆金科天宸多样性样板间
1550
作品说明
- 项目类型:地产
- 项目地点:重庆市
- 建筑面积:63.0000㎡
- 项目造价:16.0000万元
- 参与设计师:元禾大千
- 竣工时间:2019-09-01
- 设计机构:元禾大千
-
项目定位:空间本没有灵魂,但空间的主人有。将居住者的人格与身份赋予空间,于是千篇一律幻化五彩斑斓。对孟菲斯的理解,源于色彩和线条。将艺术融入生活,艺术源于生活
生活也是艺术的一部分、 -
空间意境:设计灵感来自孟菲斯,天真怪诞、直率分明的色彩线条组合浸润着艺术的气质与格调,色彩层次互相渗透、趣味横生。色彩构成对于咖啡馆的氛围起着至关重要的作用,憨态可掬的河马并列而置,突出空间秩序性,欢快而不乏节奏感。
-
空间布局:阳光照进室内,墙面的镭射装饰,显现出多彩的折射光芒,利用自然光线的辅助丰富空间色彩。这是多重材质带来的惊喜,前卫、新颖、充满创想的商业空间,吸引着人们前往。
-
设计选材:阳光照进室内,墙面的镭射装饰,显现出多彩的折射光芒,利用自然光线的辅助丰富空间色彩。这是多重材质带来的惊喜,前卫、新颖、充满创想的商业空间。
-
用户体验:整个空间的色彩构成在咖啡馆 氛围营造上起了至关重要的作用,墙面的幻彩条装饰,折射出多层的阳光,透漏出更多生活的气息,吸引着人们前往。
0
0

认证 · 让您身份增值