-
项目定位:这是一家拥有20年历史的私营地产企业,设计灵感来源于“木石之盟”。木与石皆为建筑之灵魂——“木”乃蓬勃生长的自然之光,繁盛而温暖;“石”为自然之精灵,具山川之形胜。木与石在空间中交汇,动静不失,方得平衡。
-
空间意境:设计师在设计过程及不断的思考中,将木、石作为无形的感知,藉由理性思维去认知和把握,让万物运动变化的规律贯穿整个空间,与绵延千年的中国文化相结合,并与当代社会进行有机融合,令宾客进入空间便被自然山石的情境所吸引,俗世喧嚣的心随即安定下来。
-
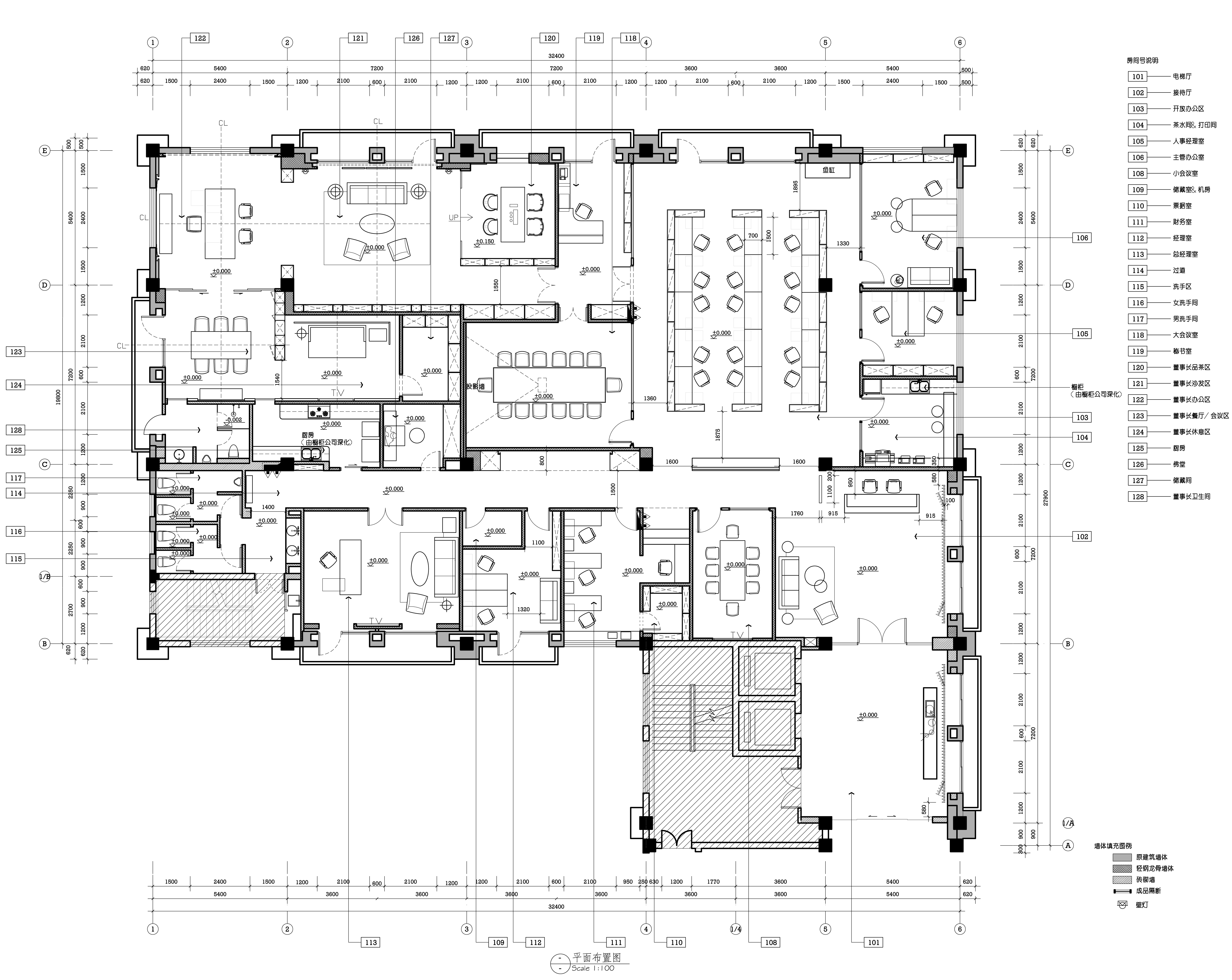
空间布局:空间语言凝练,没有多余的装饰,木饰面、硬包墙、半透明玻璃移门、平顶天花……通过颀长的木质及玻璃门的开放或密闭,满足灵活多变的使用需求。步入过道,传统的轴线在这里被解构重组为一系列的行走、观看和情景交互体验,层层渐进,相互借景,赋予更为多元的视觉心理体验。董事长办公区,实为办公➕会所综合职能,曲径通幽,打破传统分割,既私密又不压抑,营造“禅心”之精妙。
-
设计选材:主要用了木与石的结合,运用天然的材料,尽可能少的在加工
-
用户体验:空间布局在使用起来更有价值

