秋实


作品说明
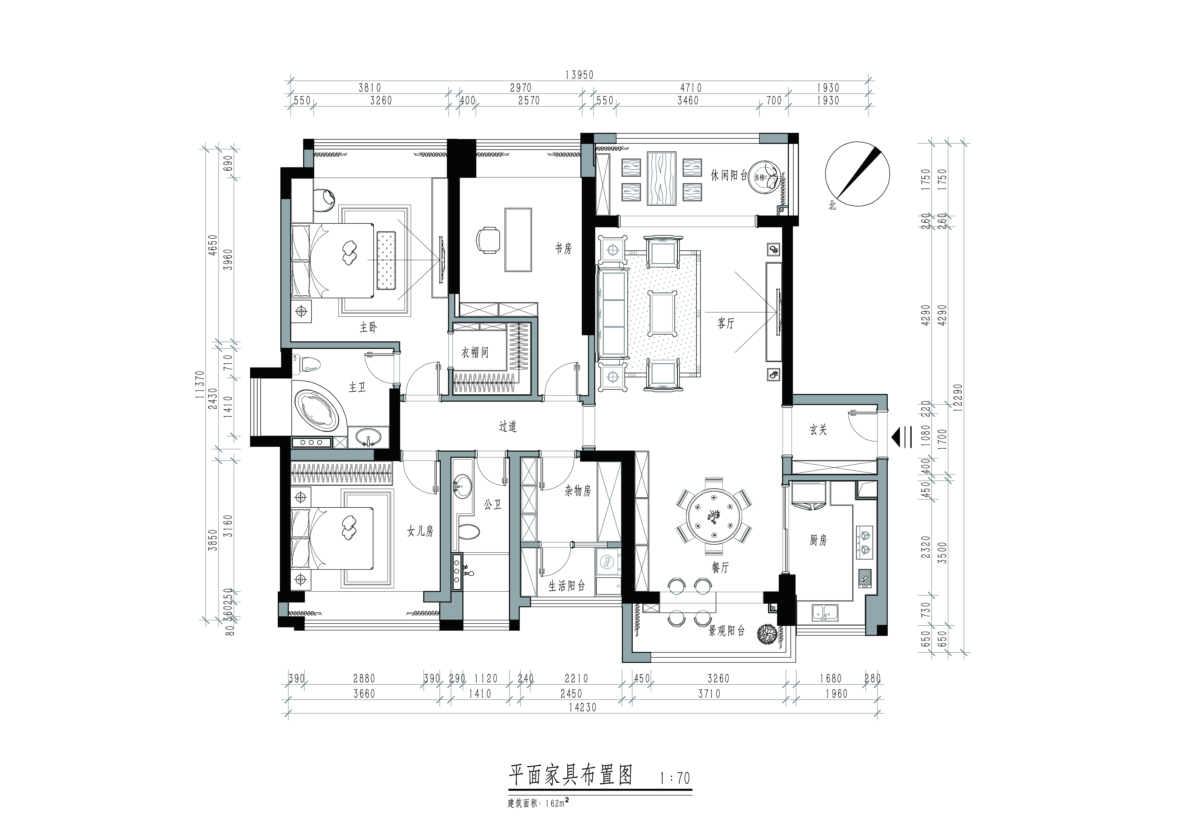
- 项目类型:住宅公寓
- 项目地点:佛山市
- 建筑面积:162.0000㎡
- 项目造价:45.0000万元
- 主案设计师: 王建锋
- 竣工时间:2018-09-30
-
项目定位:本案例三口之家,业主女儿国外留学,基本上业主夫妻两人居住,定位以人为本、人文关怀、舒适、通透为主,整个方案改动后加入了一些独立空间,可以三五好友一起聚会,又可以单独听音书画。
-
空间意境:案例利用了现代的表现手法来打造东方美学的韵律,将中式元素与现代时尚巧妙糅合,正是目前社会都市精英圈层所追求的雅致生活,中式素雅、气质之美。在整个现代新中式的空间里,设计师用灰、黄、蓝色调的视感差与几何造型的艺术张力来打造出”春华秋实”的居住品质,恰恰符合业主教书育人的高尚品德。整个配色和造型也使整个空间散发着精致时尚的都市魅力,带着触及灵魂的轻奢与禅意宁静,将个性与趣味填充。
-
空间布局:一切以功能出发,注重空间收纳和人文情怀。为了满足男女主人各自喝茶和品酒的爱好,设计师重新规划了阳台的布局,利用落地推拉窗的形式把原有的两个阳台纳入了客餐厅的空间,增加了茶室和品酒区,不但满足了功能和室内的采光,而且又把室外的景观引入室内,表现出人与自然的和谐之美,美不胜收。餐厅酒柜时尚简约,以中式的韵去融合客厅的味。背景墙的山水硬包更是使整个客厅灵动有神,东方之美。
-
设计选材:在选材方面以环保油漆为主,搭配墙布和大理石。挂式空调单独以吊顶分割,既美观,又不影响出风。电视背景造型和装饰柜都以环保木材为主,油水性油漆。
-
用户体验:业主评价住进去后改变了生活方式,听音乐、写书法、品红酒、饮茗茶都有了单独的空间,整个空间宽敞舒适,又可以约三五好友一起聚会。

