中大国际



作品说明
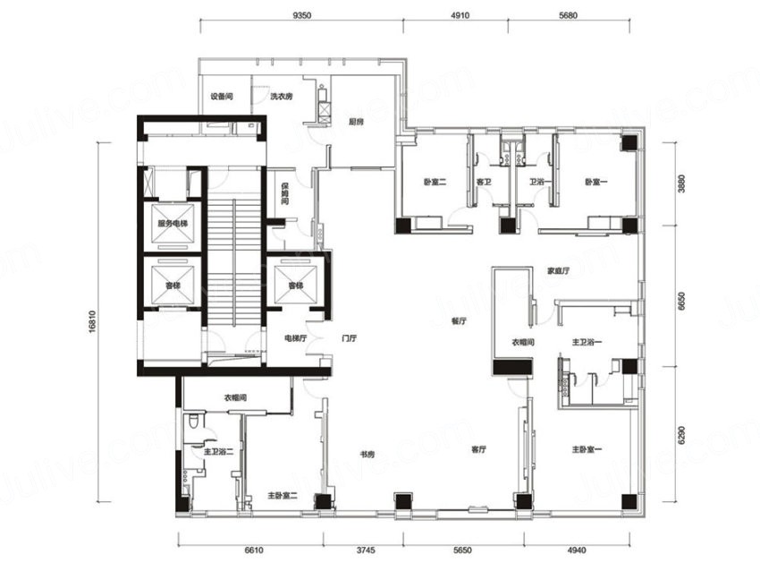
- 项目类型:私宅
- 项目地点:西安市
- 建筑面积:405.0000㎡
- 项目造价:120.0000万元
- 主案设计师: 王玮
- 参与设计师:王玮
- 竣工时间:2019-01-16
- 设计机构:木赢设计
-
项目定位:港式轻奢,低调与优雅是整体设计的主题和思路
-
空间意境:软装延续了硬装的基础格调,以稳定的大地色系为主,加以酒红色的优雅作为空间的点缀色,精致细腻的装饰,彰显了项目高端的定位以及主人的身份象征,凸显空间的优雅,散发出至高的品质。
-
空间布局:空间布局上考虑了每个空间的使用外,还额外增加了小书房的区域和小客厅区域,充分利用空间的同时还照顾到了业主的生活习惯和兴趣爱好。为优雅的区域又增添了一分亲和。
-
设计选材:在选材上选用了环保材料,软装则采用了真丝棉麻的布料作为床品和窗帘的首选,既环保又有自然气息。
-
用户体验:客户喜欢低调奢华的感觉,在和客户沟通几次以后基本上了解他想要的感觉,在选择搭配上也选择较为舒适,看起来低调而有质感面料,客户非常满意我们的服务与设计。

