溪边有鱼餐厅



- 项目类型:餐饮
- 项目地点:邢台市
- 建筑面积:225.0000㎡
- 项目造价:46.0000万元
- 主案设计师: 崔世伟
- 竣工时间:2017-11-10
- 设计机构:邢台方图工程设计有限公司
-
项目定位:这是一家讲述店主事业成功后,怀念儿时味道,怀念浓浓乡情的怀旧情调餐厅。随着时光的流逝,每个人都有一种对儿时生活、味道的回忆和向往,对于一个从大山里走出来的孩子,在城市中生活多年事业上取得一定成功的店主更是有强烈追忆过去的情怀。正是基于这个原因,这家餐厅在设计师和店主共同酝酿下产生。
-
空间意境:怀旧设计作品应该像一首歌一样有主题灵魂,有引起就餐者共鸣的元素。本案选材店主家乡太行深山红片石、河滩卵石,用钢仿木结构还原搭建了店主儿时住过的房屋。停靠在溪边的小船、水车、蓑衣、斗笠、鱼篓、油灯、屋檐下的垂柳牛槽是丰富空间装饰的主要元素。把就餐者带入到儿时溪边的时空中。迎门一幅母亲提鱼的手绘画,给就餐者回家的温暖亲切感。
-
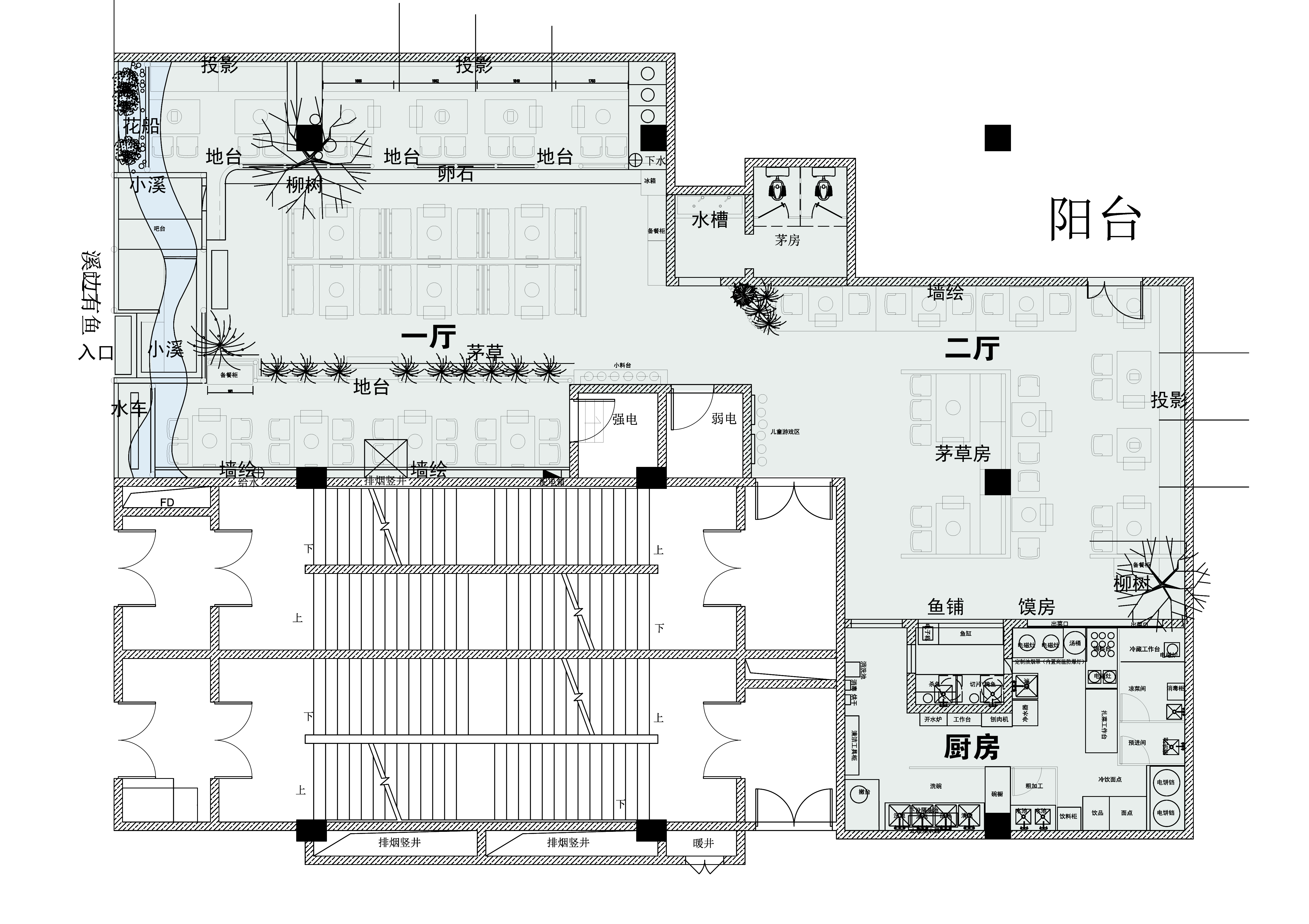
空间布局:本案还运用融合投影高科技手段、结合手绘、仿真芦苇、仿真模型鸬鹚等元素把空间动感、虚实延展。使空间静中有动,虚中有实,虚实结合,人在画中身临其境。
-
设计选材:主材:太行红片岩、竹、实木、瓦片、河卵石、仿真植物。
-
用户体验:餐厅在享受美食的同事,把体验着带入儿时美好记忆中,在美好回忆中体验美食,非常惬意。
01项目面积:225平方米主材:太行红片岩、竹、实木、瓦片、河卵石、仿真植物。 小溪流水,游鱼落花 孩童玩闹,炊烟缭绕 古风淳朴,儿时记忆 鲜美鱼锅,浓绵乡情 这是一家讲述店主事业成功后,怀念儿时味道,怀念浓浓乡情的怀旧情调餐厅。随着时光的流逝,每个人都有一种对儿时生活、味道的回忆和向往,对于一个从大山里走出来的孩子,在城市中生活多年事业上取得一定成功的店主更是有强烈追忆过去的情怀。正是基于这个原因,这家餐厅在设计师和店主共同酝酿下产生。 怀旧设计作品应该像一首歌一样有主题灵魂,有引起就餐者共鸣的元素。本案选材店主家乡太行深山红片石、河滩卵石,用钢仿木结构还原搭建了店主儿时住过的房屋。停靠在溪边的小船、水车、蓑衣、斗笠、鱼篓、油灯、屋檐下的垂柳牛槽是丰富空间装饰的主要元素。把就餐者带入到儿时溪边的时空中。迎门一幅母亲提鱼的手绘画,给就餐者回家的温暖亲切感。 本案还运用融合投影高科技手段、结合手绘、仿真芦苇、仿真模型鸬鹚等元素把空间动感、虚实延展。使空间静中有动,虚中有实,虚实结合,人在画中身临其境。 为丰富产品,店主提炼特色的“溪畔鱼锅”“王爷爷黄金馍”“张奶奶大拉皮”等极具地方特色的本土美食,从记忆中的味道打动每一位消费者。 空间布局上,首先消费者要跨过一条铺满河卵石的小溪,溪下水流潺潺,水草荡漾、鱼儿游动。进入前厅区域,高低层次错落,区域分割,营造出共享和相对私密的空间。后厅区域围绕原有结构柱,搭建“茅草房”使原本平淡的空间有了内外之分。明档式厨房,选鱼区、加工区一目了然,更符合现代人对食品安全重视的理念。 本案还注重听觉对顾客的影响,在餐厅内布置了高品质的音响,播放记忆中的老歌作为背景音乐。从色、味、视、听、形多处打动就餐者,让就餐者在记忆深处畅游遐想。
02
05
06
07
09
010
013
015
017
022
天一城溪畔有鱼平面

