成都记忆,顺江味道
1153
作品说明
- 项目类型:餐饮
- 项目地点:成都市
- 建筑面积:600.0000㎡
- 项目造价:150.0000万元
- 主案设计师: 刘龙海
- 参与设计师:刘龙海
- 竣工时间:2019-10-01
- 设计机构:三上设计
-
项目定位:说起成都
除了那首人人哼唱的民谣,还有锦里的古街、武侯祠的红墙。
说起川菜
以“尚滋味”、“好辛香”为其特点。
更以“上河帮川菜”即以川西成都、乐山为中心地区的蓉派川菜, 其特点以亲民平和, 调味丰富, 口味相对清淡, 多传统菜品;
本案以武侯祠红墙夹道的色彩和川西建筑色彩上的朴素淡雅为设计出发点,以川西民居的形作为设计基础。
-
空间意境:白墙与浅淡木色的交映,纯净而充满格调。
浅灰色水磨石地砖降低了整个空间的饱和度,增加了空间的质感。
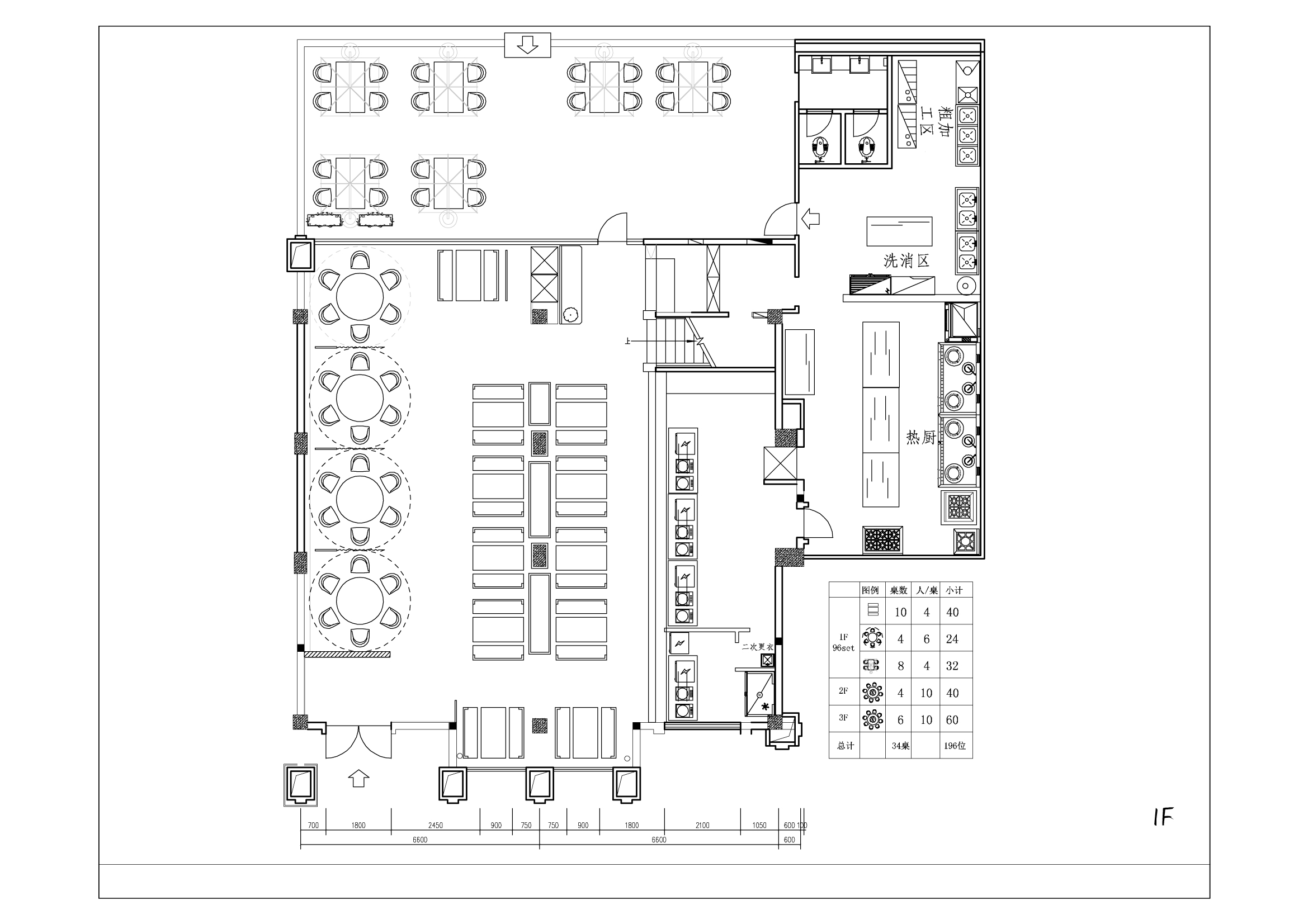
开放明厨设计能够促进人们在视、听、味的感受的自然转换以及沟通等多种功能的发挥,为顾客与顾客以及顾客与厨师之间的心灵互动提供了可能。
-
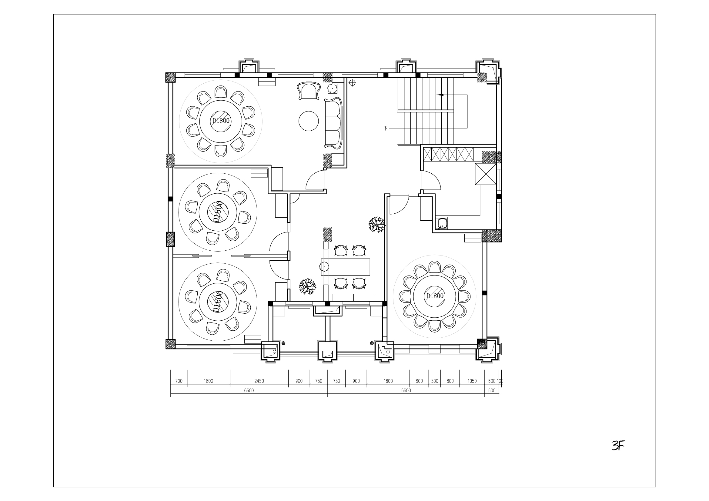
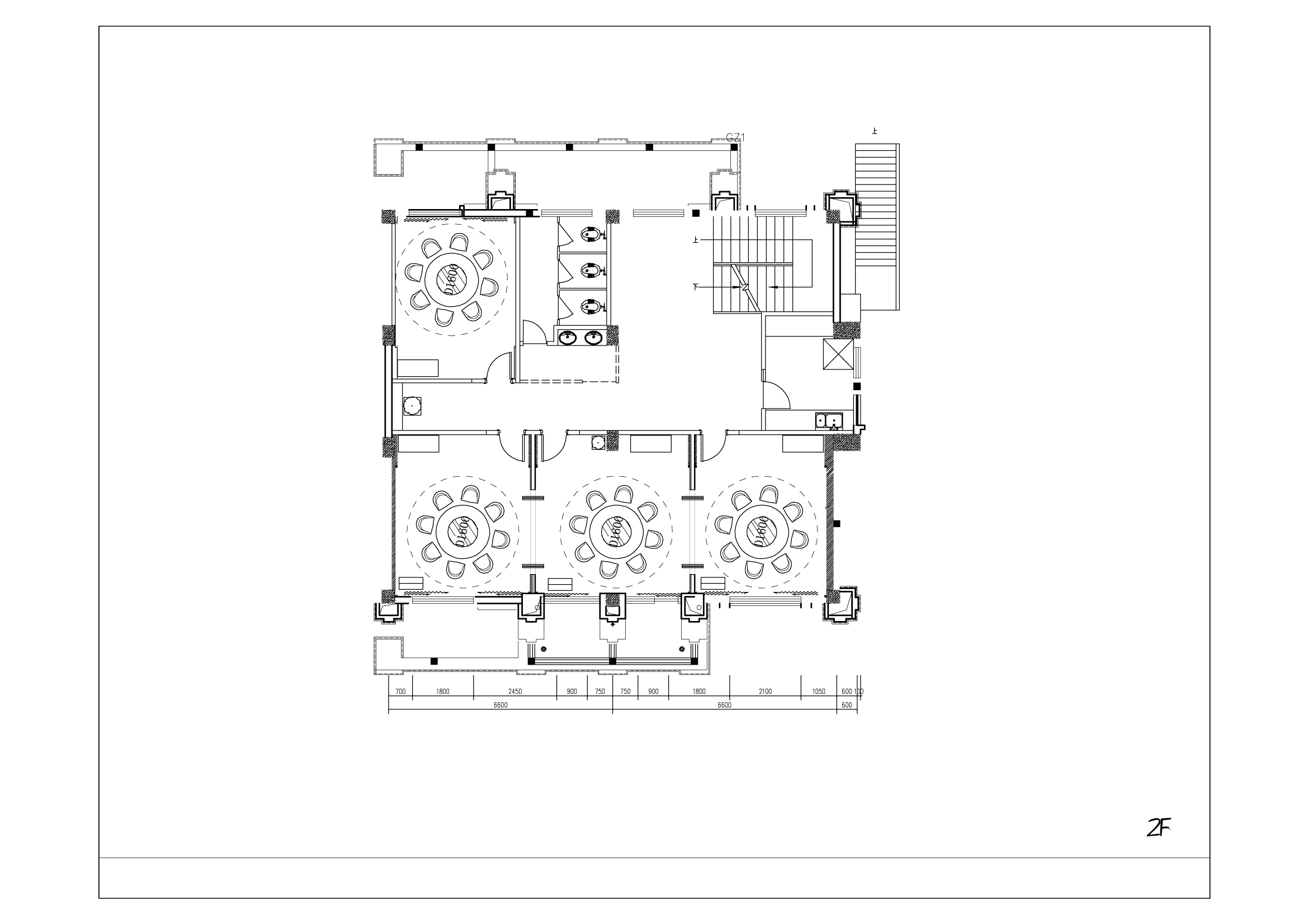
空间布局:大胆打破原有平面格局,解放空间。内外借景的使用,让大厅视野开阔。
-
设计选材:白墙与浅淡木色的交映,纯净而充满格调。
浅灰色水磨石地砖降低了整个空间的饱和度,增加了空间的质感。 -
用户体验:餐厅开业后,甲方和食客对环境的评价都很高,达到了设计预期
0
0

认证 · 让您身份增值