CIAO婚纱店



作品说明
- 项目类型:零售
- 项目地点:西安市
- 建筑面积:500.0000㎡
- 项目造价:160.0000万元
- 主案设计师: 李秦龙
- 参与设计师:李秦龙、戴阎呈
- 竣工时间:2019-08-15
- 设计机构:李秦龙设计工作室
-
项目定位:CIAO BRIDAL婚纱是一间集展厅和秀场与一体的私人高端预约制婚纱店。设计面积为500平方米,坐落于西安市中心历史悠久的名城墙旁。婚纱是高贵且圣洁的,好的空间设计是用最少的词汇去诉说最有力的话语,这应该是与当下的设计观与生活观最好的实践
-
空间意境:在空间手法的处理中,我们秉持少即是多的原则。仅施于简洁凝练的线条和空间留白的处理,以及对光影的精准把握,使得整体空间丰富灵动。材质、留白、空间的节奏感,能让人们更加沉静的去体验和感受空间本身所带来的独特美感,去感受氛围带来的幸福状态,一束光打在新人的脸旁那一瞬间的感动所散发出的自然气息,是整个作品对其最美的祝福。
-
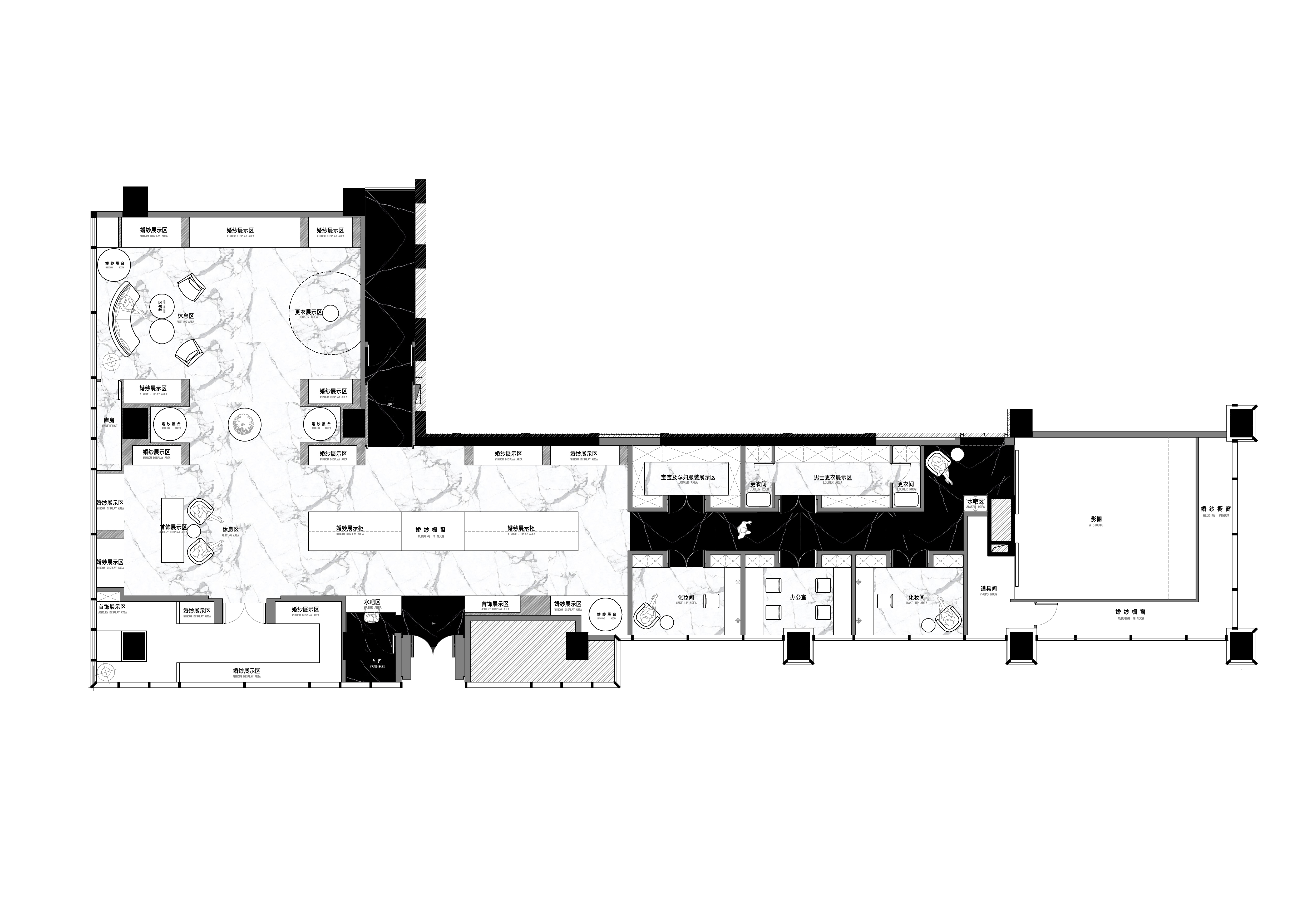
空间布局:在整体设计的布置中,我们的核心是将平面的空间立体化,人与大环境的关系一直介于适应与改造的意图中,简洁的布局却精细的处理,在保证展厅所需要的动线关系后,同时与窗外的古城群落相分离,自成体系形成了一种具有当代感的视觉关系,并且与古城墙间形成轻微的视觉对抗,由此同时也界限出了展示、拍摄、休息与试衣几个分区的相互关系,包括光的进入,变化模式,与古城彼此相望却独立存在,相互映衬的空间关系。
-
设计选材:空间中大面积使用经济型材料,大板鱼肚白瓷砖于镜面不锈钢的肌理作为空间的皮肤,或温润、或粗犷、或精致、或自然。朴质自然而近乎于本质的自然元素。手能够接触的部分,软硬,冷暖,圆润,光滑或粗糙,不同尺度、厚度和温度,一切都会根据时间和质地的不同,给使用者带来触觉上的愉悦。空间的质地和色彩都源自于材质,它本身体现着自然的意志。在设计于环境的关系中,经济型的选材以及材料的再利用是设计除去美感后的重中之重。
-
用户体验:CIAO BRIDAL不仅仅是婚纱店,还包含着时尚,交流再到文化的整体事业模式。在这个设计作品中与古城的对话让时间慢下来,,如果有延时摄影,可以看到天色在变云在变,水波在动人在动,唯人是静止的,是风景本身,又承载人情。夜半时,可以听见人与人的私语、人与境的对话,还能看见物和时空间的关联。在不经意间看到新人身着婚纱的美丽瞬间。是感动,也是一种全新的生活美学方式。

