创造 • 遇见 花都中轴办公室
5252
作品说明
- 项目类型:办公
- 项目地点:广州市
- 建筑面积:620.0000㎡
- 项目造价:250.0000万元
- 参与设计师:刘家耀、余秋霞、陈雪仪、黎明华、赖傲敏、刘小凤
- 竣工时间:2019-05-13
- 设计机构:JLa设计集团
-
项目定位:本案办公空间设计的重心是:关注办公空间里 人思考的空间需求,引导创造办公环境里的 视觉体感 及 办公行为模式 。使办公者工作中获得精神的高度集中,产生工作“心流”—— 创造 • 遇见 办公室,为花都中轴未来办公的可能性作尝试。
-
空间意境:原空间里光是建筑的心情,依日光轨迹模块里模拟布局,它将是个四面敞亮通透之地。环境心理学表明空间距离具有功能指向,善用距离的暗示——地毯天花与落地玻璃,推出分明的功能区域。与一味致力消除环境边界的全开放式办公相比,JLa更注重空间的物理刚需及办公心理因素的平衡:办公,需要分明的个人空间以进行深度思考工作。
-
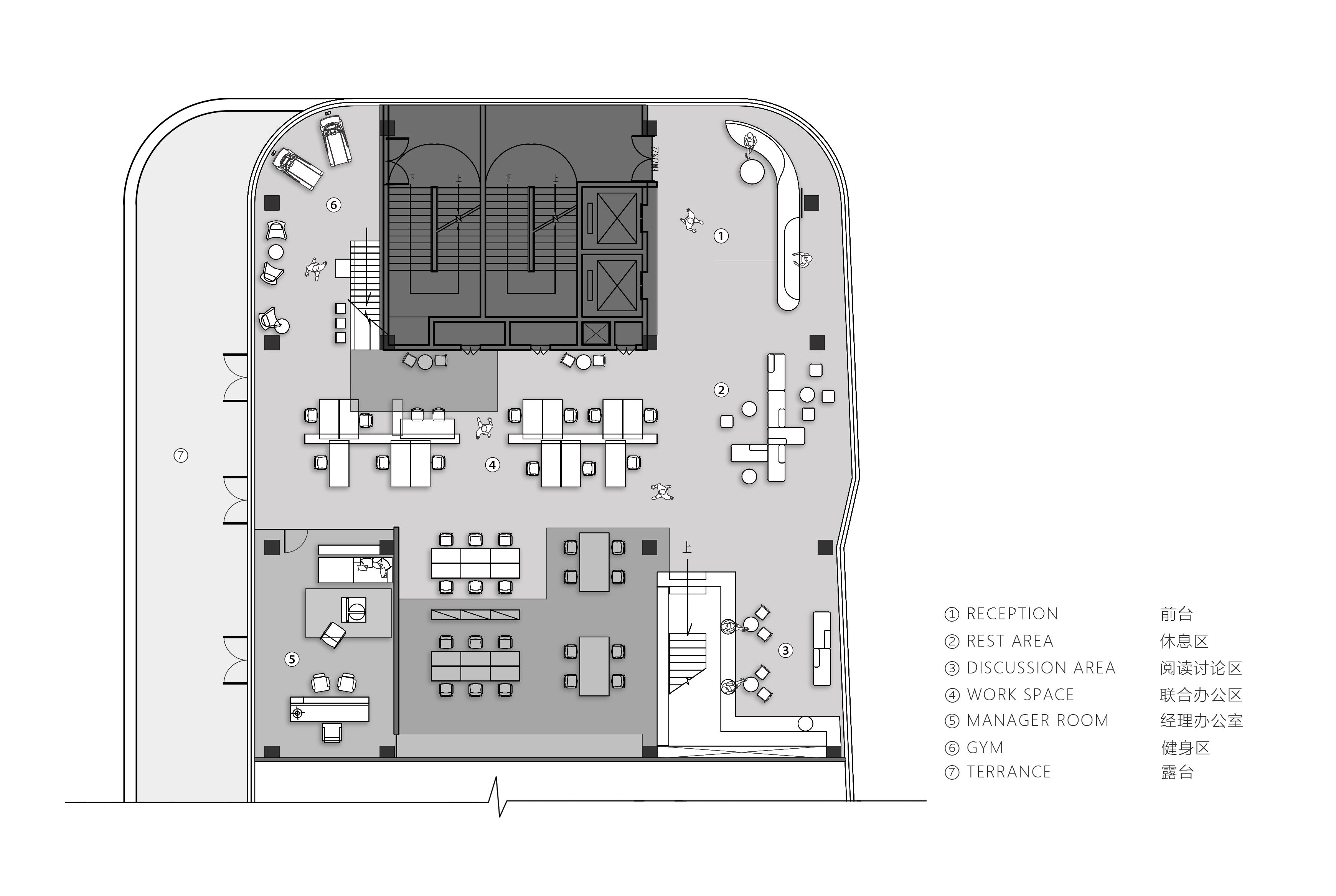
空间布局:布局特点1:创造空间格局视野,设计团队立刀切割抽离夹层可发挥空间二次裁剪、退让、重组悬浮的会议厅和半开放头脑风暴区。
布局特点2:以铺地材料为域线,有宽阔自由,也有格子办公高度集中个人精力,排列松紧带来积极的空间暗示:鼓励、接纳 不同的办公状态。
布局特点3:创造 预见 办公行为模式引导,办公环境并不止有专注奋斗,也需要开阔区域给团队进行集中讨论。空间里有意创造能使 个人 和 集体 产生遇见和交流的条件 —— 两盒子对空间的界定,为团体讨论提供多角度沟通交汇的可能。
-
设计选材:整块厚实连体天花上盖连接,缓解隔间零碎同时环保节能,减少造型用料的浪费同时服务于整体感的视觉。
-
用户体验:一,视线体感拓宽公共空间圈,调动可支配区域灵活性以便团体集中头脑风暴与讨论;
二,平衡个人办公高度专注体验,提供深度工作时必要条件,效率需要分明的环境;
三,总格局和谐共通,办公行为权重预测、形态融洽以及行为引导,化单线维度的视觉和沟通为 多线复合动线维度。
本案办公空间设计的重心是:关注办公空间里 人思考的空间需求,引导创造办公环境里的 视觉体感 及 办公行为模式 。
为花都中轴未来办公的可能性作尝试。
使办公者工作中获得精神的高度集中,产生工作“心流”—— 创造 • 遇见 办公室。
原空间里光是建筑的心情,依日光轨迹模块里模拟布局,它将是个四面敞亮通透之地。
环境心理学表明空间距离具有功能指向,善用距离的暗示——地毯天花与落地玻璃,推出分明的功能区域。
与一味致力消除环境边界的全开放式办公相比,JLa更注重空间的物理刚需及办公心理因素的平衡:办公,需要分明的个人空间以进行深度思考工作。
创造 预见 办公行为模式引导,办公环境并不止有专注奋斗,也需要开阔区域给团队进行集中讨论。
空间里有意创造能使 个人 和 集体 产生遇见和交流的条件 —— 两盒子对空间的界定,为团体讨论提供多角度沟通交汇的可能。
平面图
整块厚实连体天花上盖连接,缓解隔间零碎同时环保节能,减少造型用料的浪费同时服务于整体感的视觉。
创造空间格局视野,设计团队立刀切割抽离夹层可发挥空间二次裁剪、退让、重组悬浮的会议厅和半开放头脑风暴区。
总格局和谐共通,办公行为权重预测、形态融洽以及行为引导,化单线维度的视觉和沟通为 多线复合动线维度。
1
2

认证 · 让您身份增值