真我风格:Vintage博主藏宝箱般的家
1272 - 项目类型:私宅
- 项目地点:厦门市
- 建筑面积:178.0000㎡
- 项目造价:75.0000万元
- 竣工时间:2019-05-10
- 设计机构:理居设计
-
项目定位:三口之家。男女主人喝茶也懂酒、爱交友、爱旅游,喜好舒适自然的生活;女儿Floria是一名自媒体博主兼 vintage 服饰店主理人,爱旧物古着。在设计师眼中,「Home is be yourself」,所谓风格就是真实地“做自己”,把热爱装进家。
-
空间意境:风格上和而不同,多元混搭:设计师对应不同区域改变墙面、家具、窗帘、地毯等占据视觉大面积的元素区分调性;色调、材质等在大家具和小饰品上彼此呼应,避免“混搭”变“混乱”。配色上全屋柔和大地色系+Floria空间复古色系:公共区与主卧以低饱和度大地色系为主,心理上让人感觉亲近自然、无压力;Floria的房间延续自然色调,但尝试更个性的复古撞色。
-
空间布局:【BEFORE】
老气精装修,金属条嵌红木门、皮质软包、粗笨波导线配大理石地面...完全没有入住的欲望,收纳量也得不到满足。
【AFTER】
平面:对应每个空间的使用习惯和使用者,设计全屋公共储物、鞋服收纳、餐厨储物、卫浴收纳四大模块。
客厅:改平吊,客餐厅间吊顶达7m桃木由墙及顶,串联出大气感。电视墙看似凹凸层次装饰墙;实由大小不一38个柜格组成,可同时放4个24寸行李箱。设计师把爱旅游的一家人体验过的异域风情体验调入家中,出现北欧、美国、里斯本、印尼等各地家居好物。
餐厅:定制餐边柜+超薄钢 -
设计选材:材质上丰富肌理 + 新旧混合 + 风格杂糅:在材质肌理的选择上,采用多种材质,如木,藤,皮,棉麻,绒等。所有的择品逻辑并未专程去追寻某一地域,某一风格,而是在业主自我多元风格中寻求一种平衡。
-
用户体验:作品曾获:
2019年度芒果奖晋级榜单
2019鹏鼎奖年度新锐设计师
40UNDER40 中国(厦门)设计杰出青年
2019M+中国高端室内设计大赛城市TOP榜
她设计奖·2019年度优秀空间设计奖
客厅 (1)-2 屋主一家的共同爱好是旅游。设计师考虑将他们体验过的风景、到访的建筑、看过的画等种种旅程中的丰富记忆和体验用软装设计融入家中。 北欧Norhor牛皮大沙发、美国轻复古United strangers单椅纤细铁艺、里斯本回收木Objectum茶几、中式仿手提灯笼手工吊灯、印尼手工雕刻摆件......粗犷和细腻元素糅合,并把它们和谐融入同个空间。
客厅 (2)-2 墙面桃木和灰色石岩板墙配搭,也丰富造型层次。拆改吊顶时如有空调风口百叶,颜色也需要考虑调整;设计师提前嘱咐师傅拆下来由白色刷为黑色,才能和桃木饰面及黑色钢板底部协调。
客厅 (3)-2
客厅 (4)-2
客厅 (5)-2
阳台-2 阳台推拉门拆除、和客餐区贯通。原本洗衣池全部拆除,改为放置茶具、零食杂物的收纳柜;家具选搭木质和藤条材料结合圆润线条、包覆感强的形体。 设计师特意在这里准备了一把宽大的高靠背摇椅,头部增加软包垫。入住回访时,Floria说这里成了全家人最喜欢的地方。每天晨起时,大家都先到景观阳台泡茶、观景、聊天,单纯发发呆也很放松。伴着夏季的微风,仿佛回到小时候坐在厝边头尾一起纳凉的时光。
餐厅 (1)-2 过道的成品餐边柜进一步为收纳增容,藤编造型和棉麻墙面,整体立面强化自然主义风格。
餐厅 (2)-2 设计师将餐厅原本右侧墙面的石材、玻璃造型拆除,定制餐边柜+搁板收纳覆盖墙面;餐厅正对过道墙拆除原硬包,重新设计做三等分方格比例棉麻布艺造型墙,掩盖了电表箱的存在,又使墙面质感更丰富;瓷砖地铺浅橡木色地板覆盖,用相对低的改造成本和工时完成精装“整容”。 餐椅设计师特意选择这款藤席高靠背水曲柳椅,圆润线条构成柔软体验,和下文提到的书房Thonet经典款曲线14号椅将互相呼应。 可伸缩餐桌,拉开可达2M多,满足8-10人聚餐;定制柜上方嵌超薄钢制搁板,纤细精致且承重佳,满足长辈收藏名酒需求;下方大容量边柜满足各类干货食品的囤放。
主卧 (1)-2 床侧挂画的图案就是房间家具、床品、灯具、地毯的色彩凝聚。
主卧 (2)-2 “海湾躺在我们身后,滑得像盘子,蓝得令人窒息”,经典希腊三部曲《The Durrells》中的清爽柔和影像美学被设计师连接到主卧的色彩氛围中,目的是希望给到主人在云海深处舒缓进入睡眠的体验。
主卧 (3)-2 材料天然,床品也选择透气清爽的亚麻材质。
次卧 (1)-2 法国让-皮埃尔·热内的《天使爱美丽》电影美学中,Amelie的卧室有云杉绿织品、橙黄色灯光、大地色系家具,复古瑰丽,是超现实主义的浓郁浪漫...脑海里的这幅画面色彩记忆,被设计师调度出来,从中找到了灵感色——云杉绿,并从墙面一直蔓延到天鹅绒窗帘。 床头挂画原作是Floria第一眼便相中的荷兰画家莫里茨·埃舍尔创作的超现实主义风格《Other World》,画面有盗梦空间即视感,几何线条又带有Art deco元素。
次卧 (2)-2 Floria对自我风格的定义 : “有柔有刚,气质中性;衷爱Vintage、新旧融合”。设计师希望能为她量身定制出无限接近她审美和态度的空间风格,尤其是卧室这样私密的小天地。讨论后设计师提出“延续大地色系但局部跳色”的思路。
书房 (1)-2 书房工作台,曲线元素在椅子、灯具乃至桌子细节棱角都被设计师应用其中。材质由胡桃木质、藤编、黄铜构成,强化古典韵味,特意选择结构纤巧形体,避免材料带来的体量感过重。
书房 (2)-2 卧室的绿调到了书房化为点缀色,有呼应的统一感,又切换出两种空间情绪。在这间房里,能同时满足「阅读 + 拍摄 + 收纳 + 影音 + 临时客房」 多功能模式:拉上天鹅绒窗帘,按下投影遥控,秒变私人影院。
书房 (3)-2 因为在书房常置景拍摄,所以墙面贴海基布刷淡山茱萸粉,对比白墙作为拍摄背景视觉效果更出彩,和绿调也形成撞色,低饱和度更耐看。
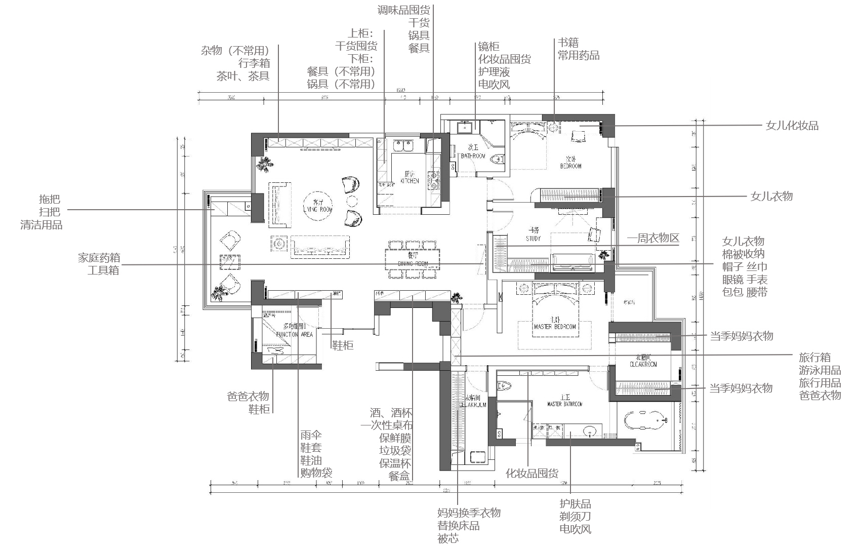
平面图-2 原精装房基本没有收纳规划。设计师统计出重点的收纳需求:全家100多双鞋子(且仍在增加)、旅行箱、杂物、爸爸的名酒收藏、妈妈的衣饰&护肤品、Floria的日常&古着衣物&丝巾&帽子... → 对应各空间的使用者和习惯,设计了全屋公共储物、鞋服收纳、餐厨储物、卫浴收纳四大模块,尤其是鞋服类的收纳规划。 ~ 鞋、杂物 ~ 整面定制鞋柜和装饰隔断墙合二为一,前后容量合起来相当于6个成品鞋柜。设计师注意到主人家很少高跟鞋,所以柜内层高根据主要鞋类(单鞋、球鞋)设计了130、180mm两种高度,能放更多鞋子;均为活动板,后续有高跟鞋或靴子一样也能存放; ~ 衣服、饰品、床品、杂物 ~ 凡衣柜内均有设计分类存放格,例如长挂衣区、丝巾收纳格等。
0
0

认证 · 让您身份增值