-
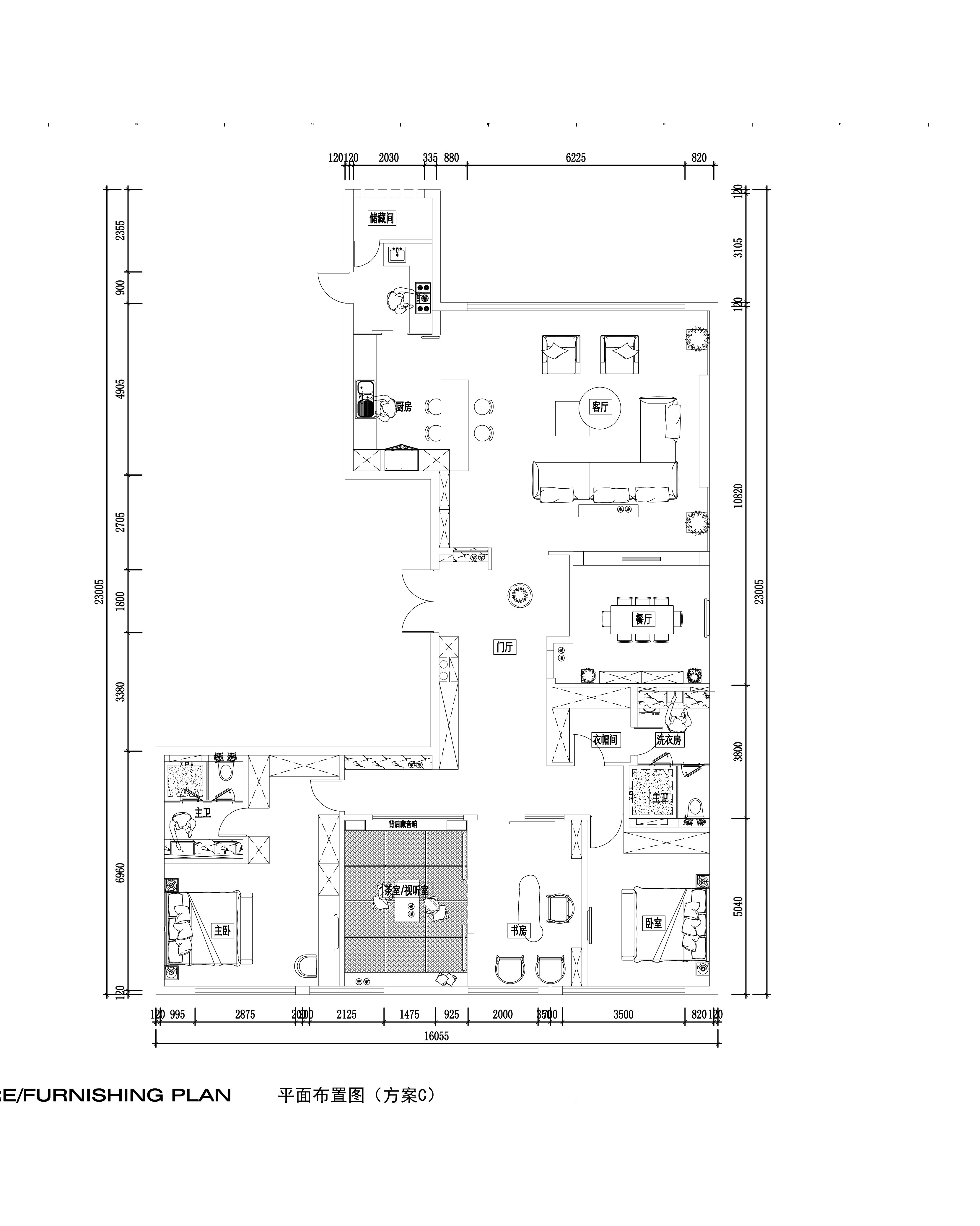
项目定位:业主伉俪是新中国第一代商人,待人幽默而宽厚。本案是海边度假平层,本案避暑短住,因此卧室仅留两间,将走廊、餐厅、茶室、视听室等空间进行了扩充,拆除了客卫储藏室等非必要空间,令整个布局开阔、轻松,最大可能引入室外光线和景观。风格定位上主要考虑如何将海湾度假与业主沉稳的身份进行自然结合,兼容夏日的凉爽与适度的仪式感,体现出雍容和乐观的气质是本案考虑的重心。
-
空间意境:客厅区正对大海,夏天的海滨清新宜人阳光闪耀。因此客厅基调为高级灰,云朵拉灰石材、意大利灰墙面与棕色影木、灰调布艺家具组合出凉爽、沉稳的气质,红艳艳的壁炉与钓鱼灯点缀出夭夭灼灼的华美。右侧餐厅区原本是一间客房,因为没什么用处,将其拆除后改造成现有餐厅,蘑菇面蒙古黑石材墙面将客厅的稳定与低调延伸至餐厅区,影木模糊不定的光影感,为烛光晚餐提供一种灼灼其华的浪漫。
-
空间布局:业主喜欢咖啡、品茶,因为是度假住宅,平时两人用餐,所以厨房区做了开放的西厨和右侧封闭的小中厨,雕刻白吧台横向游离在西厨与沙发区之间,在形态组织上延伸了储藏酒柜、空间上界定了两个不同区域。
玄关入口处,一组铜壶绿叶,提示出空间内敛与恬静。
走廊空间利用亚麻壁纸与影木一起,形成柔和而雍容的质感。
茶室与榻榻米影音室共处一区,凸显国人的内敛与自然之美,黑白根麻面石材、邓板桥的书法、一壶琵琶,与窗外的山景勾画出业主千帆阅尽后的从容与恬静。 -
设计选材:主卧室采用了来自于大海的湖蓝色系,呼应窗外的海滩也适合老年人的视觉与心理环境。为业主营造出舒适而温馨的休息空间。
次卧低调温馨,超薄石与真丝地毯 在坚硬与柔软之间令空间平静中多一份奢华。
卫生间功能性设置为主,马桶区淋浴区与台盆区并列设置,长长的镜柜一半封闭一半敞开,兼顾储物与日常生活。 -
用户体验:业主夫妇是一对可爱乐观的老人,竣工后业主说设计师是一个伟大的职业。虽然过誉了,但是忙碌了两年这个项目,能听到这个反馈非常的激励自己。
0
0

认证 · 让您身份增值
1507