梵誓苏州诚品店
1629
作品说明
- 项目类型:零售
- 项目地点:苏州市
- 建筑面积:60.0000㎡
- 项目造价:26.0000万元
- 参与设计师:杨楠,张世杰,黄迪,王乙童,张晨
- 竣工时间:2019-10-25
- 设计机构:平介设计
-
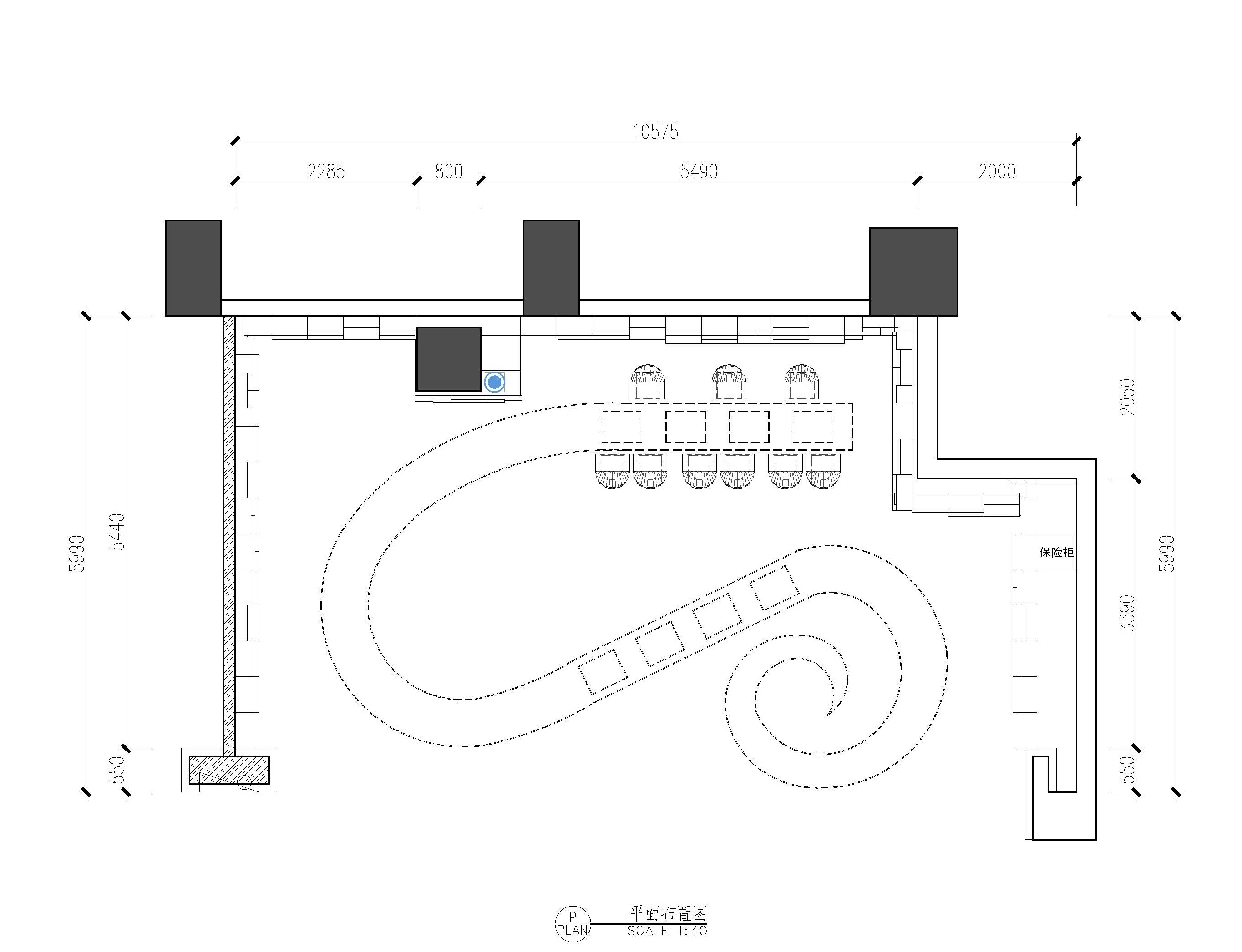
项目定位:珠宝属于目的性消费,在传统封闭式高奢店面的设计场景中,普通顾客在没有特殊购买需求的情况下只会橱窗购物,而不会进入珠宝店进行体验和试戴。我们希望通过店面的设计带动更多非目标群体进入店面中体验珠宝产品,引发购物的欲望,让珠宝成为日常生活中的必需品。传统珠宝展陈方式较为独立和单一,仅靠黑色绒面玻璃展示柜进行排列组合,空间单调平庸,缺乏吸引力。作为品牌形象店,如何在60 平的空间中回应众多的需求,并打造互动展陈空间成了设计的要点。
-
空间意境:宝石是如何获得的,只有下过矿洞的人才清楚,宝石往往都藏在恐惧的、幽闭的、充满神秘感的地方,而获取宝石的过程与意义,似乎超越了珠宝本身的价值更具有故事性。普通人只关注珠宝,而有品位的人,追寻的是珠宝背后的故事。宝石通常被平常的石材所包裹,寻宝人只注意了矿洞中的宝石,却忽略了矿穴的迷幻。矿洞中的轨道流线是连接宝石与珠宝、财富与黑暗的纽带,是空间中特殊的发生器。因此设计通过一条连续的纽带串联起整个空间的各种功能与逻辑:融合珠宝展陈,品牌展示,客户洽谈等多种功能。发生器是一条完整的流线型装置,通过高度变化、厚度变
-
空间布局:诚品中大多店面以白色为主,木色搭配,相对空间比较均质,缺乏关注点。本案的颜色、造型都大大区别于别的店面,并结合业态之后重新阐述新的空间效果。整个空间被深灰色石材包裹着,一条银色纽带在空中飞舞,如同一个深黑色珠宝盒中散发异彩的钻戒,从形式上隐喻项目主题。
流动的带形展示成为珠宝展陈的主体,通过扭转和高度变化带来展陈空间的引入,舒缓紧凑与高潮。整个纽带流线型的造型,被鳞片般的不锈钢面板包裹,从每一个角度反射出耀眼的光芒。浅色灯带顺着纽带蜿蜒流转,预示着空间的起承转合。
从铺面的西侧,拱起的银色纽带 -
设计选材:深灰色石材塑造出如同钻石矿坑般幽暗的背景,饰品展柜在墙面上如同钻石般发出夺目的光芒。深灰色石材墙面采用450*450的基础模数,适应整个空间尺度,同时为珠宝的展陈提供条件。不同区域的基础模块错动咬合,模拟钻石矿坑乱石嶙峋的效果。部分模块则变成了隐藏的抽屉,用于存放日常用的包装礼盒。原始的柱子也被坚硬的石材包裹,形成多媒体展墙。
-
用户体验:继续顺着纽带前行,仿佛置身山谷与银河之中,在极小的空间被挤压之后,会来到整个展览的最高潮,纽带盘旋上升,在整个空间中形成一座爱情的灯塔,一如梵誓珠宝的设计理念,平庸终将被美好取代。
艺术是充满激情与梦想的,而生活则是充满着棱角的,我们希望我们的设计也是一个共存的矛盾体,灵动与肃穆同时在这个小小的店面中存在,发生碰撞,吸引每一位顾客的目光。
打卡点tuning tower-min
打卡点turning tower-min
店面store facade1-min
交易接待区exchange area2-min
店面store facade2-min
交易接待区exchange area1-min
纽带展柜Display box in the flowing ribbon1-min
交易接待区exchange area3-min
前台展览区front display area1-min
门面效果store facade-min
纽带展柜Display box in the flowing ribbon2-min
墙面展柜7-min
前台展览区front display area2-min
墙面展柜display box3-min
墙面展柜display box2-min
纽带展柜Display box in the flowing ribbon3-min
墙面展柜display box4-min
墙面展柜display box1-min
墙面展柜display box5-min
墙面展柜display box6-min
入口entrance-min
平面图plan
0
0

认证 · 让您身份增值