对称与平衡



作品说明
- 项目类型:零售
- 项目地点:杭州市
- 建筑面积:48.0000㎡
- 项目造价:18.0000万元
- 竣工时间:2019-03-07
- 设计机构:匠研组设计事务所
-
项目定位:在平衡的形式中
In the form of balance
“对称”是最基本的形式
symmetry is the most basic form.
视觉的平衡形成美的秩序
The balance of vision forms the order of beauty.
静态美,条理美
Static beauty and organized beauty
庄重,严肃,大方
Solemn, serious and generous
-
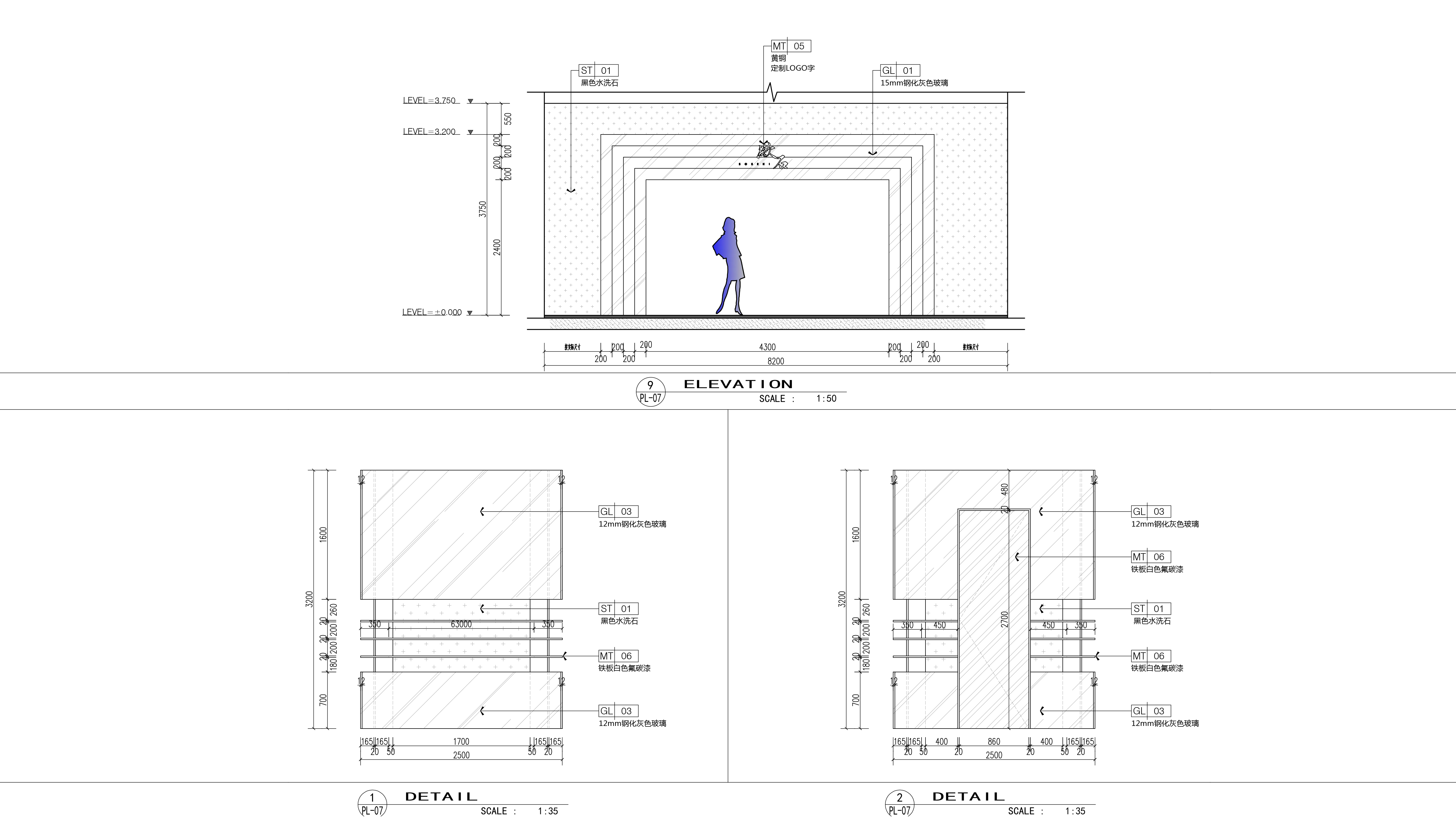
空间意境:设计师在这个店铺设计中寻求创造一个秩序平衡的氛围,打破人们关于潮流店通常夸张夺目的刻板印象。室内选用水洗石作为墙面作为主要材料,温和粗砺的机理中带着复古的潮流,流行是一个轮回。
-
空间布局:整体空间本身体现的是极简设计,抛弃所有的杂色,让繁忙的都市生活能够享受多一份的宁静,通过中心BOX体块演变出的空间动线,让整个动线增添了不同的视觉交叠。
颗粒细腻暗哑的黑色水洗石,反光冷清的灰玻,粗糙和光滑的两种灰暗调中衬托出亮调的黄铜阳极氧化墙面悬挂系统,杂色已被过滤,产品登上整个空间里最具有色彩的舞台,而不被其他物品喧宾夺主。 -
设计选材:水洗石与有色玻璃的结合
-
用户体验:环境舒适

