-
项目定位:星汉灿烂,若出其里,谦谦君子,如星相集....
本案的业主是几位有情怀和理想的年轻人,我们以书为核心,将喜爱阅读之人聚集在一起,两层高的书架成了统治性元素,定义了场所主题和精神,一楼采用岛柜与沙发结合的形式,分隔出独立的艺术空间,岛柜上摆放的陈列架可以根据需要展示不同的物品。入口采用亚克力片做成的波浪形天花,似无边的宇宙,穿插着大大小小的星球灯,来到这个空间,仿佛置身于浩瀚星空中,世界与我,互为子集。二楼的多功能厅多运用懒人沙发、墩子等活动家具,让功能上变得灵活,在营造一种家一般放松的阅读环境的同时,又 -
空间意境:人都是有亲近自然的属性,我们将绿色的植物遍布在各个角落,同时大落地窗将花园的生机和光线引入室内,让流连于这个空间的人都能从中感到舒适、自在,使人乐于久留并获得灵感,让人来到这里就会忘记离开。
-
空间布局:我们要做的就是一个完全开放性的空间,这里应该是一个让人感到轻松的地方。无论人们为什么而来...不同功能的区域没有明显分隔,比如沙发和书架就联成一体,你可以随手拿起一本书,坐下来安静的阅读。
-
设计选材:木饰面、雅士白大理石、亚克力、烤漆板、金属、艺术涂料
-
用户体验:成都人用川菜、麻将和茶馆成功地诠释了“来去皆城”的含义。”安逸,巴适,是成都人经常挂在嘴里的两个字。这里是一个慢而充满人情和生活气息的城市,我们通过大量的木质和布艺等让人感觉温暖的材质,希望营造一个休闲、舒适的空间。
经宜冬,其神专也; 读史宜夏,其时久也; 读诸子宜秋,其致别也; 读诸集宜春,其机畅也。 ——《幽梦影》 清人涨潮在《幽梦影》中谈及文人阅读时,可以配合时序让阅读更具情趣,成为风雅的审美活动。解释开来,冬天读经合适沉思;夏天读史可以酣畅淋漓;秋日高研诸子百家别有韵致;待到春回大地,读历代文人作品兴味盎然。 今天高速运转的社会机器,能安然享受阅读的片刻宁静,可谓一种奢侈。在成都,高楼林立间,闹中取静地藏着一座当代园林,宛如一片现代桃花源,可游可赏可居,吸引着每一位来访者。
拨开掩映的层层林泉,错落有致的叠水活泼了画面,将人们的视线导向建筑入口。庭院的清雅幽然,为整个建筑空间提供了精致的景观陪衬,室内外一体的规划,给人一种整体的安宁之感。
构建一个阅读空间,延续所处大环境的气场。成都是用 “安逸”、“巴适”定义的城市,充满了慢、人情和生活气息的场域。梓晴设计团队,以此为据,努力用简、素二字,创造一片温暖的质感空间。
谦谦君子,如星相集,这是世界的子集。进门迎面是一片天空,亚克力片组成的蜿蜒层峦如云,穿插大大小小的星球灯,将人们一下引入宇宙的浩瀚星空中,隔开世界的混沌,与本心相见,展开一段自我探索之旅。
设计师强调的单纯,在整个空间中被一以贯之的执行。白色顶棚的空气感,原木材质的安稳感,拮取自然意象,因为人只有在自然的环境中,才可自在,如释重负的轻快气息让整个空间中有一种淡而有味的格调。
打开kindle是一幅背靠大树读书的恬静剪影。倚靠+阅读的方式,是一种安然享受的闲在状态。眼睛朝前的人类,将“背有倚靠”的安全感来编辑在基因中,同时专注于一个方向,让人获得知识和智慧。空间中一颗树型书架,提供了倚树而读的慰藉。
进入挑空核心区,两层高的书架成为统治性元素,定义了场所主题和精神,抬升了空间的轩敞气度,楼梯处理集成了书架功能包围感十足,让人沉浸在一片书的海洋之中。
道法自然,自然而然这种东方思维的底层逻辑,是人本质上都有亲近自然天性,设计师让绿植遍布各个角落,同时大落地窗将花园的生机和光线引入室内,舒适自在的环境让人不断激发灵感,流连忘返。
作为一个完全开放性的空间,设计师的目标就是让人最好的放松。岛柜与沙发结合的形式,分隔出独立的艺术空间。在没有明显分隔的不同功能区游走,随手拿起一本书,坐下来安静的阅读。
走在平台上,通顶的书架层层加高的同时,不断外凸,形成一道折线,形成一种呼之欲出的亲近,几何结构也暗合了整个建筑内部的棱角分明的洗练。
阅读这件事儿,本身是一种懒散而高贵的活动。特别是读一些感性的小说,懒散让人的主意识放松,呈现出开放的状态,然后投入和接纳那些角色和桥段,仿佛被吸入书中,总期待一场片段的偶遇,体验片刻黄粱美梦。
高贵的部分来自于精神,阅读中,作者说了我们想说而没有说出来的话,一致心有戚戚焉。精神被擢升起来,与作者互动沟通,仿佛老友畅谈,亦如诤友激辩,更立体地理解现实世界,阅读提供了一种绝佳方案。
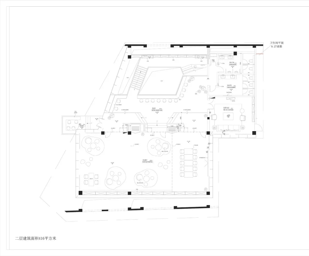
二楼的多功能厅多运用自由组合的活动家具,让功能上变得灵活,在营造出家一般放松的阅读环境的同时,又能灵活承接各种中小型文创活动。
在一个不对称的异形顶棚下,吊挂悬浮的书本的装置艺术,飘在空中形成舞动的阵列,灵感飞升在天际,如同美梦或者童话里的场景,不可触及而又如此真实不虚。点缀性的蓝绿色搭拉开颜色张力,让空间变得沉静淡然。
无边苍翠茂盛的室外景观,如画卷展开眼前,成为空间的重要组成部分。无遮拦的室内,地面仿佛无尽延伸,进入美景中,某种层面上成就了一个冥想空间的构建。
阅读一本好书,多一种领悟,可以是《菜根谭》的淡而有味,也可以是《小窗幽记》的志向高雅,亦或《遵生八笺》的朴实简便。阅读也可以是一个景观,一个空间,需要有心人,宁心屏气,静观自得。
640
0
0

认证 · 让您身份增值
5320