登高观止 山即是山
600
作品说明
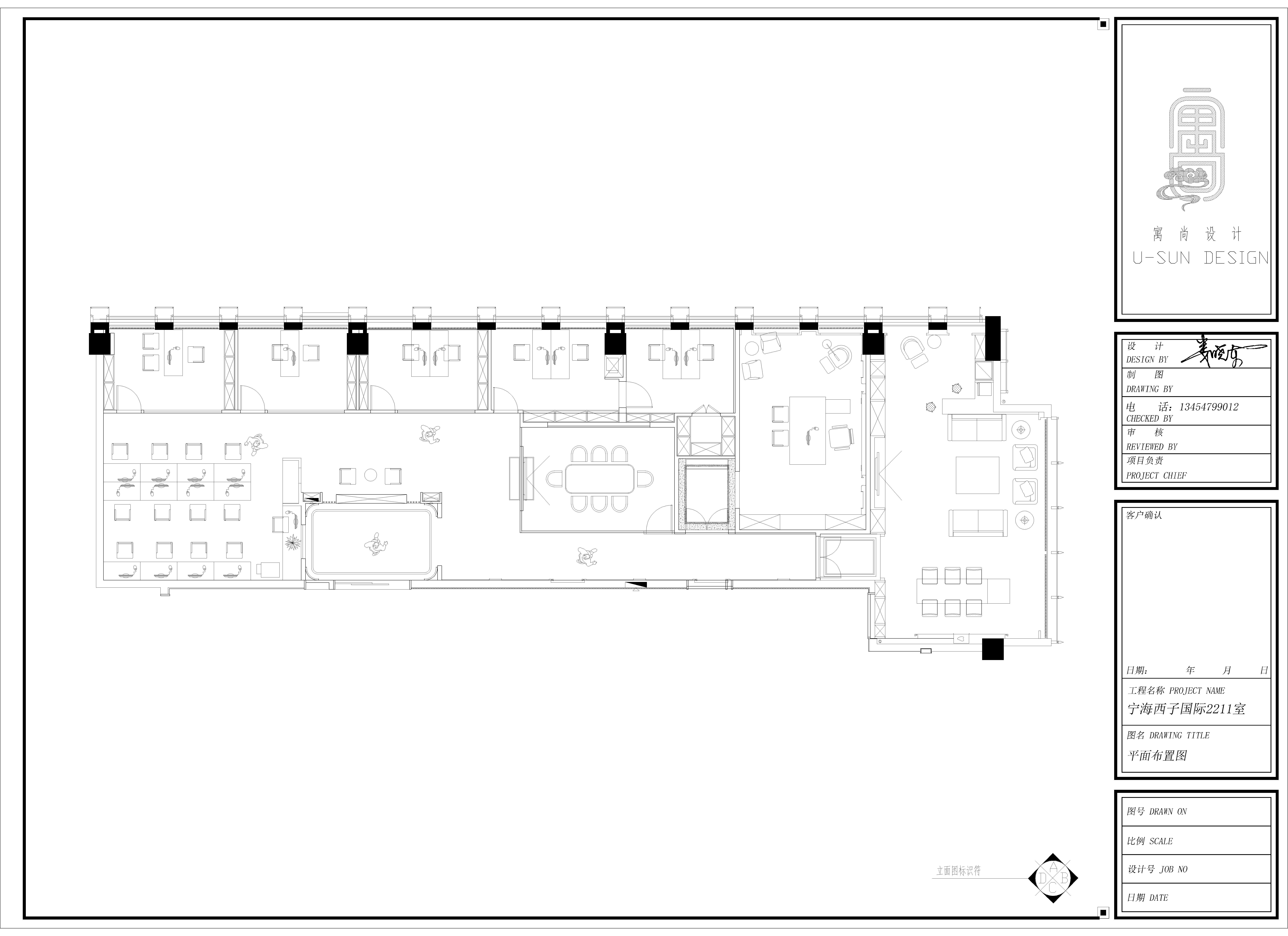
- 项目类型:办公
- 项目地点:宁波市
- 建筑面积:250.0000㎡
- 项目造价:50.0000万元
- 主案设计师: 娄晓东
- 竣工时间:2018-06-18
- 设计机构:寓尚设计
-
项目定位:定位高端会所式办公空间
-
空间意境:引用一下宋代禅家的感悟“初看山是山、水是水,继而山不是山、水不是水,终乃山还是山、水还是水。”这就像人生的三大过程,从懵懂憧憬到觉悟人生的真谛。设计师也是希望主人在峰峦起伏的众山,争雄似地一座比一座高,成为其中的巅峰。
-
空间布局:引用一下宋代禅家的感悟“初看山是山、水是水,继而山不是山、水不是水,终乃山还是山、水还是水。”这就像人生的三大过程,从懵懂憧憬到觉悟人生的真谛。设计师也是希望主人在峰峦起伏的众山,争雄似地一座比一座高,成为其中的巅峰。
踏入门口,开门见山,眼前流线式的山体纹路大理石,高端大气,透过山的一角望去,与窗外的后山,遥相呼应,山外有山,一山比一山高。
再来到董事长办公室,古典灰的地毯,仿佛遨游在水墨世界之中。主人喜欢东方韵美的优雅,倚靠在这把舒适的办公椅上,闭眼休憩,拂去一天的疲倦。
茗茶持笔,放下 -
设计选材:大理石,山纹景石,现代木作,地毯,定制家具
-
用户体验:客户非常满意
20190220-宁海-泰瑞软装-西子国际办公-朴言-大图-1
20190220-宁海-泰瑞软装-西子国际办公-朴言-大图-2
20190220-宁海-泰瑞软装-西子国际办公-朴言-大图-3
20190220-宁海-泰瑞软装-西子国际办公-朴言-大图-4
20190220-宁海-泰瑞软装-西子国际办公-朴言-大图-5
20190220-宁海-泰瑞软装-西子国际办公-朴言-大图-6
20190220-宁海-泰瑞软装-西子国际办公-朴言-大图-7
20190220-宁海-泰瑞软装-西子国际办公-朴言-大图-8
20190220-宁海-泰瑞软装-西子国际办公-朴言-大图-9
20190220-宁海-泰瑞软装-西子国际办公-朴言-大图-10
20190220-宁海-泰瑞软装-西子国际办公-朴言-大图-11
20190220-宁海-泰瑞软装-西子国际办公-朴言-大图-12
20190220-宁海-泰瑞软装-西子国际办公-朴言-大图-13
20190220-宁海-泰瑞软装-西子国际办公-朴言-大图-14
20190220-宁海-泰瑞软装-西子国际办公-朴言-大图-15
20190220-宁海-泰瑞软装-西子国际办公-朴言-大图-16
20190220-宁海-泰瑞软装-西子国际办公-朴言-大图-17
20190220-宁海-泰瑞软装-西子国际办公-朴言-大图-18
宁海西子国际办公室 平面图
0
0

认证 · 让您身份增值