千山集空间设计工作室



作品说明
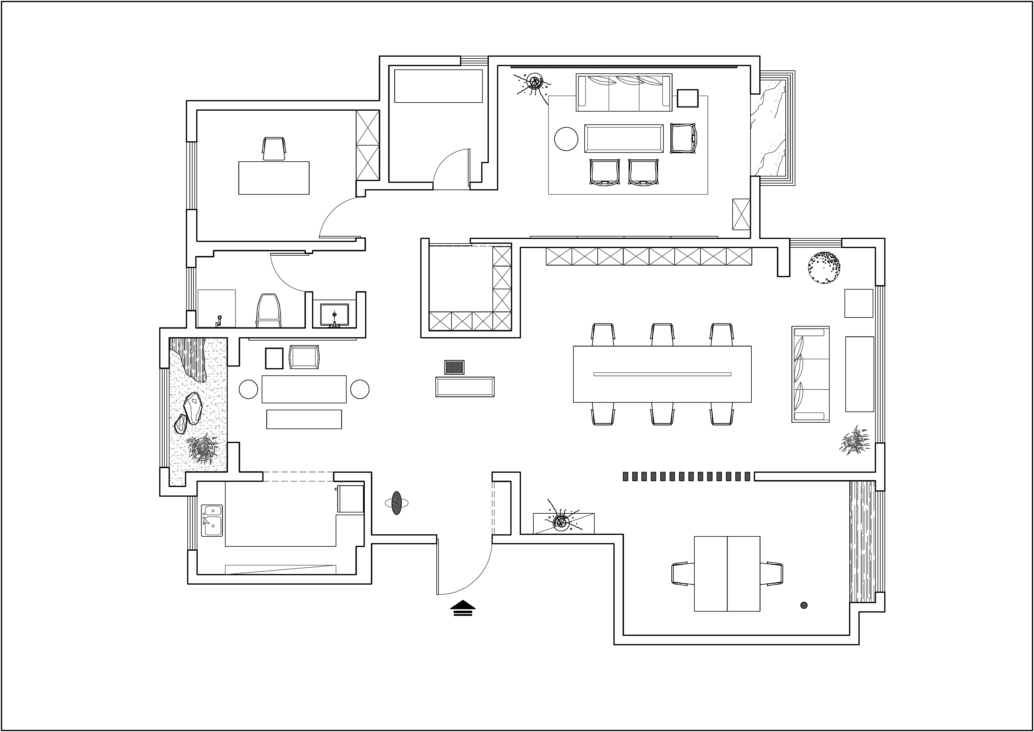
- 项目类型:办公
- 项目地点:西安市
- 建筑面积:170.0000㎡
- 项目造价:25.0000万元
- 主案设计师: 彭永俊
- 竣工时间:2019-05-05
- 设计机构:西安千山集空间设计有限公司
-
项目定位:设计工作室与茶空间的结合。
-
空间意境:探索东方美学与人文精神的空间呈现,品茶、焚香、挂画、插花的传统生活美学与现代忙碌生活如何自然转场。
-
空间布局:原来的居家户型经过优化后,空间更加开阔,满足了日常办公与会友品茶的功能。
-
设计选材:地面使用自流平水泥,部分空间顶面保留了原始毛坯水泥状态,既节省造价也能搭配空间氛围,另外使用了老木方、苎麻隔断等自然材料。
-
用户体验:日常办公轻松自在,闲时二三好友喝茶弹琴,茶室氛围极好,劳逸结合自娱自乐的一方小天地。

