60度灰
1348
作品说明
- 项目类型:别墅
- 项目地点:重庆市
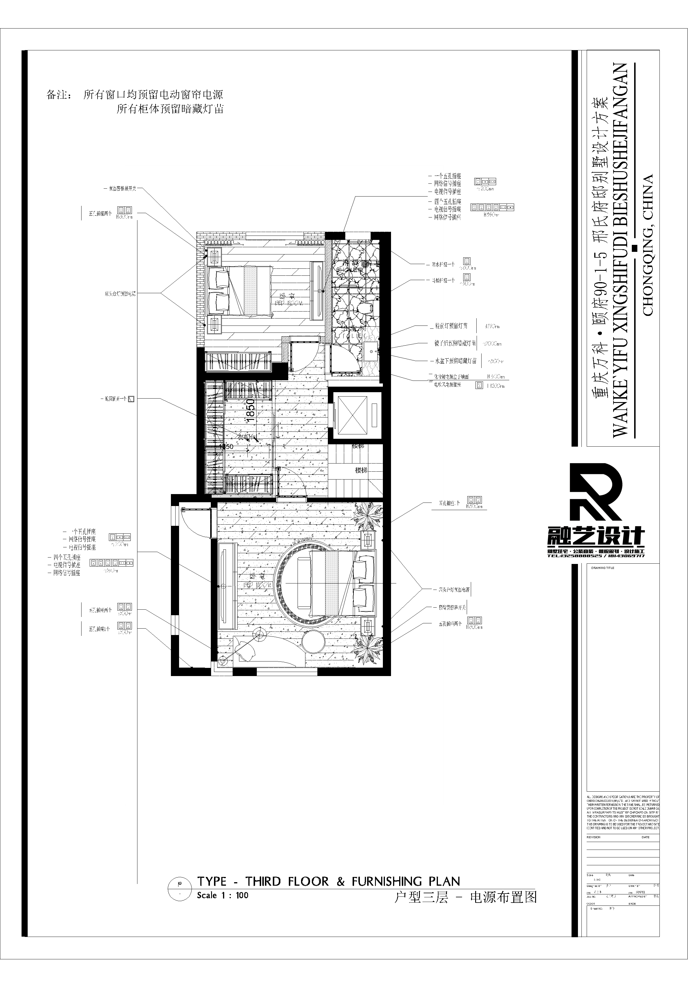
- 建筑面积:386㎡
- 项目造价:260万元
- 主案设计师: 李为卓
- 参与设计师:李为卓 孙馨
- 竣工时间:2019-03-01
- 设计机构:吉林省融艺设计有限公司
-
项目定位:本项目坐落于山城重庆,万科颐府别墅区,业主为海外高新工作群体,企业家,对于生活的质量要求极高,在空间的整体上要求具有独特的表达。
-
空间意境:空间中整体色调定位黑灰色的融合,使用原木色本色作为色调的提亮融入到室内。
-
空间布局:空间上将室外景观引入到室内地下空间,并将洗浴空间放至天井位置,室内外景观相容显通。
-
设计选材:主材上选用意大利进口瓷砖与原木切片家具,整体施工中不实用刷胶打蜡的工艺,追求材质的本身质感。
-
用户体验:业主为空中飞人,长期往返于国内外多所住宅空间,对本项目的空间要求为独特、放松寻找本真自。
1
1

认证 · 让您身份增值