black&white&Kaws
1795
作品说明
- 项目类型:住宅公寓
- 项目地点:南京市
- 建筑面积:180.0000㎡
- 项目造价:90.0000万元
- 主案设计师: 胡飞
- 竣工时间:2019-04-10
- 设计机构:南京DoLong董龍设计
-
项目定位:不只停留在塑造生活艺术的表面,更注重于引导探索舒适的生活方式。
有品质的简朴,有节制的丰盛,才是好设计的根本。 -
空间意境:以极简白为基调,简洁大气,明朗通透,与kaws的解剖玩偶相衬,营造出一种怪诞的张力。即便是如此宽敞得可以尽情挥洒的空间,设计师依然谨慎克制,小心翼翼的衡量着每一个家具、每一个饰品的尺寸大小、摆放位置。在琐碎的生活经验基础之上,通过对元素、部品的细腻选择与创新,实践构建日常生活的同时,打造更具想象力的空间氛围。
-
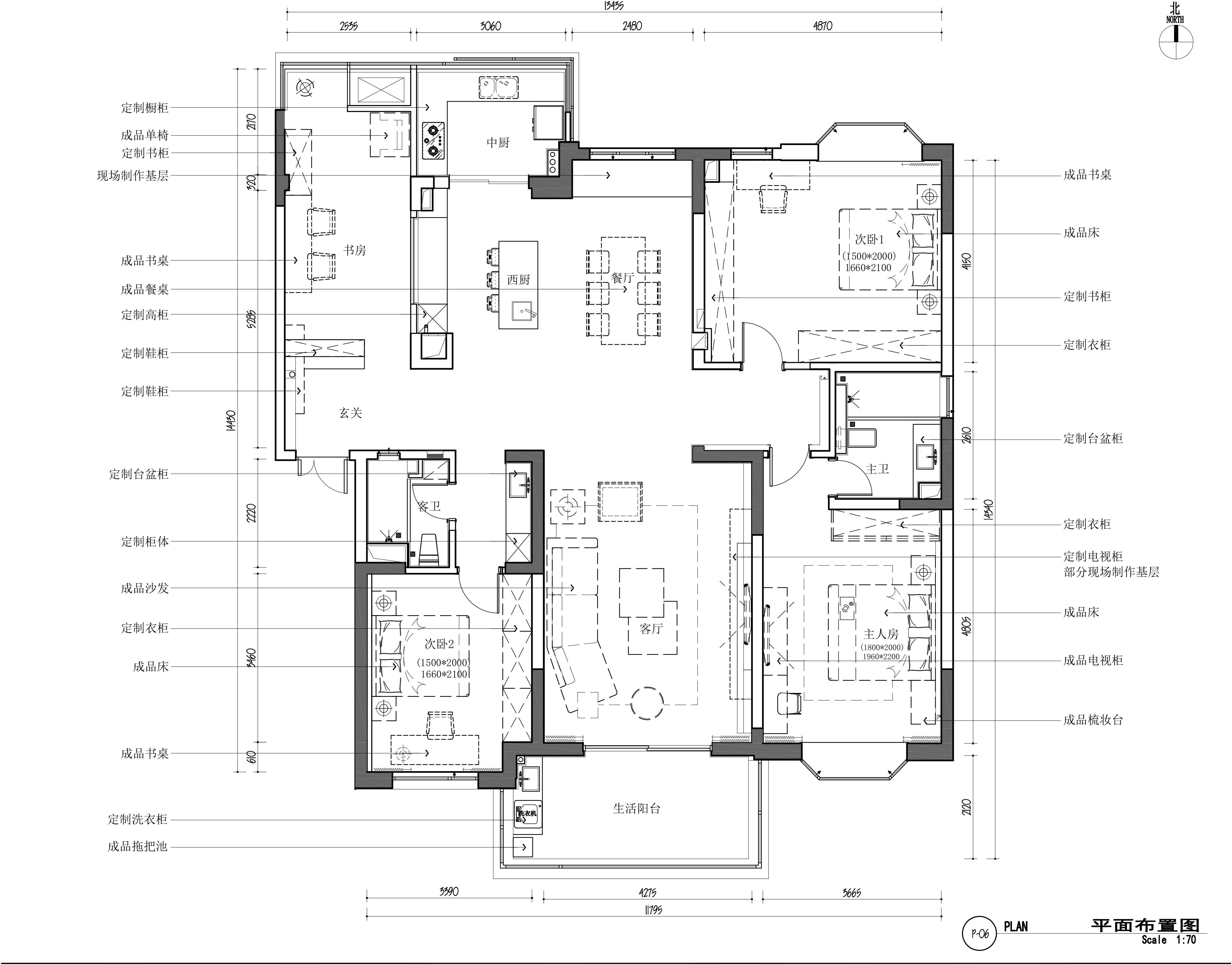
空间布局:移步客厅,首先映入眼帘的是一组松石蓝点染的现代装饰画,线条静谧地延伸开来,自然舒展蜿蜒。与繁华的城市背景相呼应,动静相宜,浓淡有致,让整个空间充满曼妙的博弈张力之美。
开放式空间拥有开阔的视觉,让光线和空气相互流通蔓延。设计师打破固有格局,将厨房和餐厅统一于同一空间之下,模糊了区域间的界限,以多元和复合型的功能型来重新构建空间,弱化了以往对厨餐厅的理解,以一种国际化都市感的空间布局方式,引领一种全新的生活方式。
材质的选用彰显设计师的考究与细心,无论是厨房的岛台还是餐桌的质感,素雅灰大理石 -
设计选材:尽量使用较少的材质种类,营造简洁纯粹的空间。客餐厅墙面大面积的竖向抽缝用最简单的石膏板材质种类完成。
-
用户体验:空间简洁舒适,纯粹而极致,有一定的科技感和时尚感。
0
0

认证 · 让您身份增值