杭州运河万科中心
3856
作品说明
- 项目类型:样板间/售楼处
- 项目地点:杭州市
- 建筑面积:2600.0000㎡
- 项目造价:0.0000万元
- 竣工时间:2018-11-30
- 设计机构:于强室内设计师事务所
-
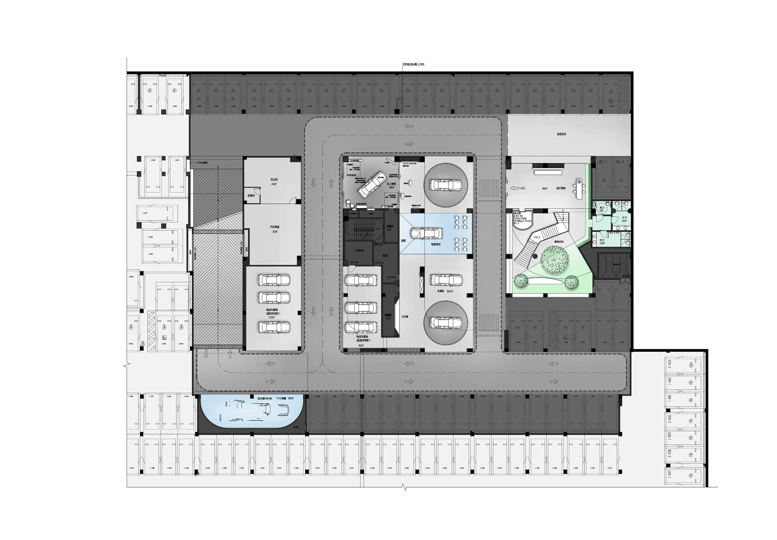
项目定位:在中国,素有“运河千年流芳,拱墅自古繁华”的杭州市拱墅区,如今是杭州汽车贸易与服务集合地。坐落在其中的万科运河销售中心,定义位为“汽车主题的综合体”,致力于开创全新的汽车互联产业模式。YuQiang&Partners 在这个自古繁华的京杭大运河之滨,通过汽车创意场景设计,塑造独特IP,带给汽车发烧友们一场速度与力量的视觉盛宴。
-
空间意境:一层主打科技感与律动感。接待区为开放式公共空间,如同一个通透的展示柜。展示厅多角度的镜钢环绕,突破视野局限,给观者开阔视野的同时全角度展示汽车结构,最大限度提升其艺术表现张力。休息区沿落地窗边布置。不同于外界的冷峻,这里给人温馨舒适的格调,好似家的延续。顶部随形而生的点状光源有序点缀,强调科技与力量感的同时不失温暖与灵动,白天与夜晚都能相映成趣。吧台后方精心设置的休息区采用类似家庭式布局,客人可以在这里充分享受安静与私密。线条背景墙延伸而入,茶几上的汽车模型画龙点睛,从细节中可以看出设计师的匠心布局。
-
空间布局:利用特殊的建筑空间结构进行室内设计。顶部为贯穿地面与建筑楼层蜿蜒而上的汽车跑道,天花线条随建筑结构旋转方向设置动线,呈现出汽车运动般扭动与张力,将各功能分区有序贯穿。天花透光膜与沙盘交相辉映,灯光线条似车身流线型设计,随参观动线转换而产生丰富的变化,力量与柔美在此律动交融。展位整体醒目。
-
设计选材:水磨石、树脂地板
-
用户体验:在光源的照射下,汽车表面反射出金属、油漆、玻璃的光泽与质感,同时利用地面反射衬托汽车的造型,营造出的速度与力量感让展品自身呈现出强大的视觉冲击,无多余赘饰却为气氛留下无限遐想。
0
1

认证 · 让您身份增值