北京华贸灏鑫上元影视文化传媒有限公司
                                            
 1148                
                    作品说明
                
                - 项目类型:办公
 - 项目地点:北京市
 - 建筑面积:180.0000㎡
 - 项目造价:200.0000万元
 - 主案设计师: 邵尉
 - 参与设计师:邵尉
 - 竣工时间:2016-06-08
 - 设计机构:冰川(北京)装饰工程设计有限责任公司
 
- 
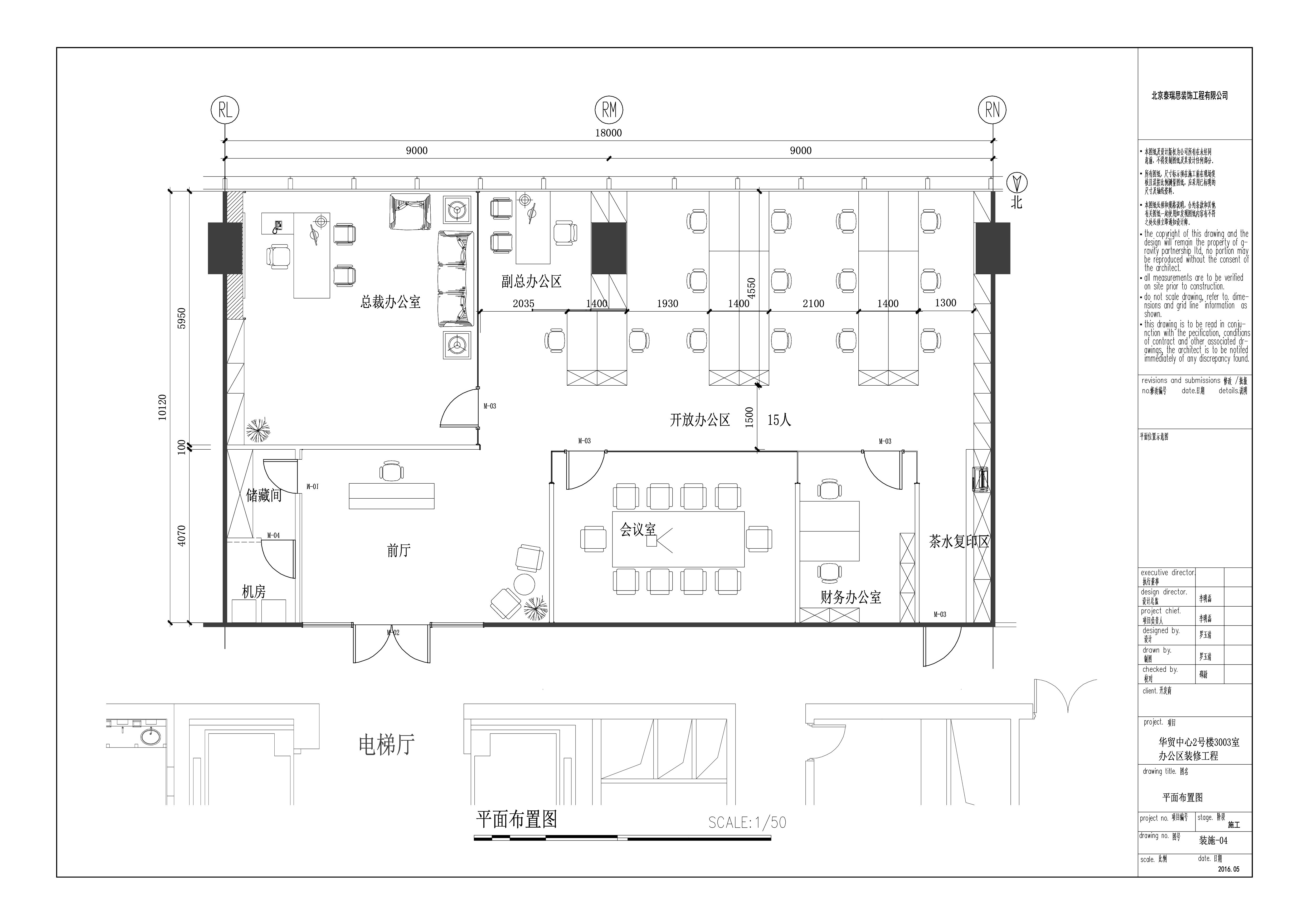
                            项目定位:考虑到这个公司是新媒体时代下的年轻的创业团体,有激情,活力,时尚,同时又是文化传媒公司。
我们大基调既定为黑白,酷,人性化,艺术化,的现代风格,通过颜色,空间风格,整体化处理,来表达整个空间。
此项目设计施工一体,甲方充分信任支持,在35天内完成了所有设计并施工家具等验收完毕。(设计与施工同步进行) - 
                            空间意境:项目在30层,视野非常好,所以所有的区域都是尽量用玻璃等通透,无过多遮挡的处理手法,内外借景,在空间颜色上大胆采用黑白调来处理,增加整个空间的张力。
 - 
                            空间布局:一条动线从入户贯穿整个办公空间
开放办公区无遮挡,及透明会议的方式增加整个空间的通透感,全空间的每个人每个位置都能欣赏30楼窗外美好的风景。
利用现场结构的缺陷(顶头两侧有柱子)来整合做成书柜和茶水柜。 - 
                            设计选材:琥珀地面--图案可控,艺术性强,防污,抗菌,坚硬耐磨,环保
特效漆--环保,成型快,现场可控,艺术性强
防火素色地毯--经济,实惠,耐用
人造石、烤漆板,不锈钢,亚克力--提升质感 - 
                            用户体验:通透无遮挡的开放办公在日常沟通工作中省时便捷,充分合理利用了空间,工作效率快,时间把控到位。
 
                        0
                    
                                0
                            
          
认证 · 让您身份增值