阅尽千帆
638 - 项目类型:别墅
- 项目地点:南京市
- 建筑面积:230㎡
- 项目造价:90万元
- 主案设计师: 吴艳丽
- 参与设计师:姜向东
- 竣工时间:2019-05-10
- 设计机构:南舍空间设计
-
项目定位:本案是江边的小高层,顶层的一线江景房,要保留大量的江景,业主比较喜欢原木色的温暖感觉,我们在案子里加入了大理石等元素来中和原木的暖调子。
-
空间意境:视觉延申 透视 穿插也是本案的一大亮点。
-
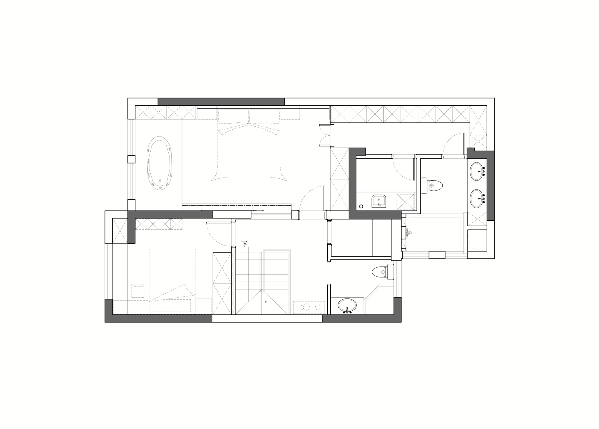
空间布局:原户型是两室两厅一厨一卫,通过改造,一层保留了一间卧室给父母住,另外加出了楼梯空间。原餐厅位置改成了酒柜,酒柜延申至厨房(原次卧室的位置),餐厅靠近楼梯,冰箱也从厨房改到了与餐厅相邻的西厨操作台旁。原厨房门开在玄关位置距离餐厅较远,我们更改了厨房的格局,将卫生间的一部分空间让给了厨房,扩大了厨房的同时,也给了厨房面对餐厅开门的可能性。卫生间与厨房之间用电动雾化玻璃作为分隔,既保留了卫生间的采光,又保证了私密性。
二楼主人房的套间,包含了一间卫生间,一间洗衣房,一间衣帽间。在主卧套间之外一间女儿房及女儿专 -
设计选材:大理石 玻璃 灰色乳胶漆与原木的运用,冷色与暖色的对比,石材的冰冷与原木的温润对比。
-
用户体验:业主一家三代同堂,每个人都有自己相对独立的空间,生活在这里互不干扰,其乐融融。
餐厅看向玄关
家具局部
客厅灰色漆由墙面延申到顶面,整个空间以灰色调作为基础。一宽一窄,一灰一白两条大理石台面贯穿鞋柜内部延申至客厅,台面上半隐半现的蓝色装饰画与蓝色玻璃花瓶。
餐厅看向玄关
家具局部
家具局部
家具局部
玄关半漏的装饰画
透过楼梯看向餐厅,调整过后的厨房门内嵌长虹玻璃。
玄关看向餐厅,酒柜加长延申至餐厅与餐桌相接连接成一个整体,视线尽头的西厨台面与冰箱。
灰色大理石电视背景,原木地台代替电视柜。背景墙设计虚实相间,视线穿透大理石背景墙可以看到楼梯与餐厅。
沙发细部,大理石灰玻茶几,真皮沙发,麻绳单椅都是由软装部精心设计定制的。
家具局部
玄关左侧是原厨房门,我们没有完全封闭起来,下半部分鞋柜,上半部分用玻璃分隔,在厨房忙碌时可以随时看到下班归来的家人。右侧换鞋凳方便老人坐下来穿鞋子,墙面的挂钩可以挂一些进出门常用的物品。
家具局部
电视背景墙细节大理石抽缝处理
玄关看向餐厅,酒柜加长延申至餐厅与餐桌相接连接成一个整体,视线尽头的西厨台面与冰箱。
二楼女儿房,粉嫩的色系,每个女孩都有一个公主梦吧。
黑色水洗面大理石床头背景,暗藏一条光带。床头右侧的吊灯与左侧的台灯一高一低,趣味十足。右侧床头柜结合梳妆台的高低转角设计,实用与趣味性相结合。
主卧室全景
二楼主卧,浴缸黑色水洗面大理石地台延申至电视墙处,代替了传统电视柜,地台下一条光带丰富了灯光层次,立体了空间。
餐桌台面与酒柜台面相接
当夜幕降临时,随手打开一盏台灯,温暖的光弥漫着整个屋子。
床头柜与梳妆台高低转弯设计,床头的水磨石吊灯,关灯状态下是高冷范儿,只要一打开温暖的光就从石材内溢了出来。
二楼主卧,浴缸黑色水洗面大理石地台延申至电视墙处,代替了传统电视柜,地台下一条光带丰富了灯光层次,立体了空间。
可以调节视线的百叶帘
打开电视墙左侧的百叶,视线穿透玻璃可以看到灰色大理石楼梯。
三楼活动空间,影音室地台看向烘焙区。
主卫挂壁式马桶时尚方便打理,黑色边框灰色玻璃淋浴房搭配的黑色花洒。
原始结构图
本案是江边上的一套顶楼的江景房,原本单层的户型加建改成了三层。原户型是两室两厅一厨一卫,通过改造,一层保留了一间卧室给父母住,另外加出了楼梯空间。原餐厅位置改成了酒柜,酒柜延申至厨房(原次卧室的位置),餐厅靠近楼梯,冰箱也从厨房改到了与餐厅相邻的西厨操作台旁。原厨房门开在玄关位置距离餐厅较远,我们更改了厨房的格局,将卫生间的一部分空间让给了厨房,扩大了厨房的同时,也给了厨房面对餐厅开门的可能性。卫生间与厨房之间用电动雾化玻璃作为分隔,既保留了卫生间的采光,又保证了私密性。
二楼主人房的套间,包含了一间卫生间,一间洗衣房,一间衣帽间。在主卧套间之外一间女儿房及女儿专用的卫生间,卫生间旁边还增加了一间储物间。
三楼作为活动空间,书房,影音室,烘焙等活动都在这里。三楼窗户相对比较低,也没有加高的可能性。书房和影音室部分做了地台抬高,坐在影音室的沙发上,视线高度刚好可以透过窗户,看到江景。
0
0

认证 · 让您身份增值