只要统一色调,现代+复古也能完美混搭


- 项目类型:住宅公寓
- 项目地点:杭州市
- 建筑面积:136㎡
- 项目造价:48万元
- 主案设计师:吴恒
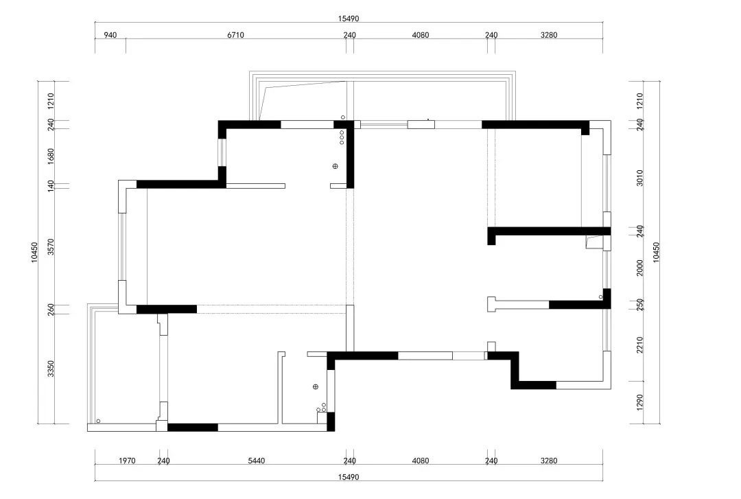
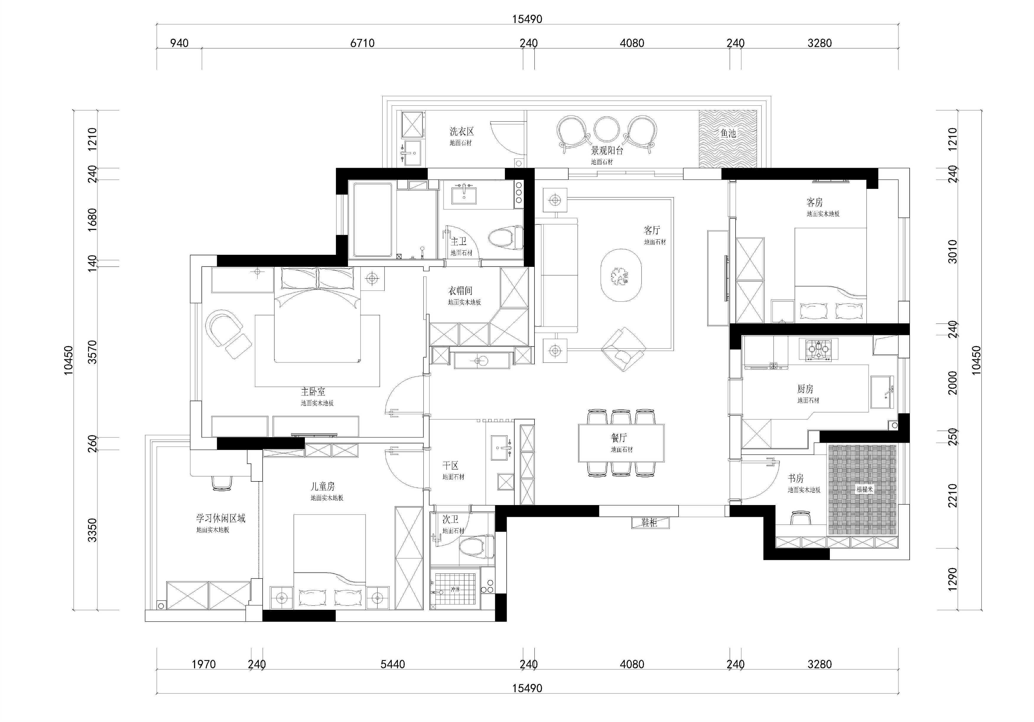
原始户型是常规四房,通风采光条件俱佳。缺点是厨房太小,开间只有2米,只够做一个L型台面,冰箱摆放进去台面不够用, 做U型台面就尴尬到过道太窄。 客餐厅少一个酒柜的位置。 其他我们将改造聚焦于提高空间通透性与后期的软装陈设艺术效果上, 使空间变得都敞亮且开阔, 所有的功能区都呈现在视线范围内。
改造一:保证餐厅的酒柜, 借用了次卫干区的尺寸。 改造二:将儿童房的阳台做抬高设计, 做成独立学习区域。 改造三:阳台现浇后, 功能性阳台和景观休闲阳台做分区。 改造四:厨房是目前整个空间最棘手的问题,对于开间仅有两米,我们借用了书房部分空间,尽量使厨房空间更大一点。 厨房仍旧采用“U”字型结构, 大家知道“U”字型同“L”型厨房实用面积更高, 在达不到两侧台柜都做600cm尺寸时, 右侧的台柜减小了尺寸,做成了360cm, 这样空间过道距离仍有一米,巧妙解决了厨房开间小的问题。
客厅向餐厅视角,该户型一入户便是餐厅。(此案好在鞋柜外面有足够大的空间,不占用室内空间) 餐厅与客厅构成一个通间,南北通透,没有玄关区,同时也使得空间变得开阔且敞亮。 艺术感强烈的《戴珍珠耳环的少女》装饰画给空间增添了一份文艺气息。 此画也曾出现在我们以往案例中。
电视左侧做了隐形门,跟护墙板同色筒造型。使得电视背景墙更具整体性, 颜色浅灰色作为底色,局部的同色系点缀搭配复古黄铜吊灯, 空间散发静谧与复古的气息。
收纳主要集中在卧室、过道、区域,客厅做了餐边装饰柜,客餐厅区域尽可能的放大空间。 客厅作为整个房间的动线交错、休息区域,像给人入户第一感觉是房间非常大气,好不拘谨。
浅灰色系的地板搭配现代的沙发, 低调舒适还不失和谐。 真皮的质感,一种更为稳重的感觉, 装饰画和落地灰镜面落地灯的搭配, 整个空间带来不一样的精致感。
小的艺术品也是非常“点睛”的存在,让整个的气氛显得出挑,生活也更添艺术色彩。
高颜值的Marshall Kilnurn在音质输出方面尤为出色, 再一个惬意的下午,静静的感受音乐的沐浴。
木色能很好的给予空间一点平衡, 平衡了温馨感。 颜色也让餐桌显得跳跃,显得空间更加生动。
南北通透的格局,空间加深纵深感,选择同色系的单椅,也能更好的融合整个空间。
红酒柜则是巧妙和整个空间融合在一起,而这个精致的角落,能很好的提升优雅的气氛。
精致的用餐单品以及黄铜色的茶几, 混合着花草芳香,让人心驰神往。
扩大后的厨房空间,视野也更开阔了。 厨房整体色调以简洁浅色系设计,延续整个空间的风格, 地面采取大理石的瓷砖,让整个空间显得清爽干净。 吊柜,橱柜,也能最大程度的满足我们日常所需要要的厨具收纳。
台面深灰色作为点缀, 在色彩上形成一点对比. 空间中只剩水果蔬菜的颜色了 , 每天换一框水果,就换一种心情。
卫生间则是分区明确,包括淋浴区和浴缸都有很好的划分,充分享受这私人时刻。
同色系的搭配,也能让整个氛围更加的和谐,同时也让整个空间看起来洁净无比。
整个主卧的灰色调里,用蓝色窗帘点缀。 深灰色饰面作为床头背景,同色系的撞色,更显空间的质感和档次。
次卧则是延续主卧的整体设计风格,达到一个统一的和谐空间。选择一些有趣的装饰物,也能让整体的空间更加的丰富,而且也显得更加的艺术和有趣,让客人在一天的疲惫感后,得到最大的舒适感。
儿童房明亮颜色,整个空间显得更加的欢快。动物的元素, 让孩子享受在这“动物世界”氛围里。 墙壁上的绘画也能为整个空间添色不少,相比较主卧稳重的风格,儿童间则显得更加的跳跃和生趣。
儿童房的阳台做了一个抬高,在阳台区域有足够大的活动空间可以让儿童游戏、学习。桌面上的有趣小物, 也能为孩子带来片刻的快乐。