藏8露2的储物柜设计,简洁且不显压抑


- 项目类型:住宅公寓
- 项目地点:丽水市
- 建筑面积:135㎡
- 项目造价:35万元
- 主案设计师:吴恒
调整后的布局满足了屋主生活中所有需求。 客厅增加的一组贯穿X轴线的装饰柜即美观又具备收纳功能。 转角连接次位墙体的一组鞋柜及隐形门,使整个空间更加完整,大气。 餐厅借用原飘窗台铺设台面代替一组餐椅。
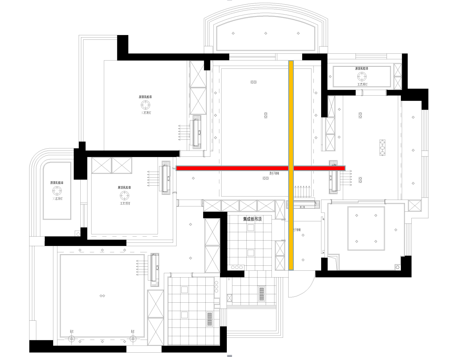
X轴线为红色,Y轴线为黄色。 XY线也是吊顶卡不锈钢的位置。
【你看到的整块板是隐形门!!!通往神秘卫生间的隐形の门】 进门玄关处设置了一组换鞋的鞋柜。下面预留20-25cm空间。 1.可放日常更换的鞋,上下班出门都不用将鞋收纳到鞋柜,方便。 2.预留的空间还兼顾美观性,内嵌了柔和的LED灯带,台面上预留65cm空间,可顺手放些包包之类日常用品。
进门右侧墙体非承重墙,但足足有26cm厚度。 为了不该浪费的面积不浪费原则,决定挖进去一块,留12cm墙体给厨房贴砖,这面叫他炫酷的装饰画墙。
【百变炫酷的装饰画墙全貌】 为了整个空间统一协调,定制了一块摄影大师拍摄的装订画。 装饰画看腻了可以换,什么颜色就是什么风格。
【这里又有隐形门啦,通往隐秘处的主卧室の门,往下滑有开门图】 本户型缺点是Y轴线过长,使得整个空间比例失衡,还浪费过多空间。秉持合理利用空间原则,增加了一组贯穿X轴线的装饰兼收纳柜。原本还有套方案是扩大次卫生,把墙往南方向扩,后把入户空调机位可改作冲淋间,次位已足够大大了。
【作为一个拥有两个阳台的奢侈版本,封阳台是绝对不会封的,这辈子都不会封的】 风中有音,光中有影。光影的自然元素,是阳台设计最需要考量的,景观阳台的好处在于让光影自然渲染,契合着圆弧形的阳台,有都市人格外豁达的圆融心态,亦是不折不扣的诗与远方。
为了跟客厅展示柜兼收纳柜齐平,厨房的墙体也向Y轴线移动,跟收纳柜在一条X轴线上,即使客餐厅整个空间感得到提升,又增加了厨房的实用空间,一举两得。
【通往隐秘处的主卧室の门被打开了】
厨房扩大之后使用面积还是很客观的, 深色的墙砖搭配白色的柜门也很清爽。已经入住,业主手机反图。
每个空间有各自的框景,但彼此又可串连。 线、面,形成几何量体,彼此交错、重叠。 自然划分为餐厅区及客厅区,并以柜体及造型墙,切割主空间格局。
肯定有朋友疑问这个门洞后面是什么? 这块原来是开放商鸡贼的空间,最后被业委会争取来现浇了。 成了业主预备书房,门业主暂时不想封,想封再封。
【X.Y轴线】 利用黑色不锈钢作为轴线贯穿各个空间。 在设计规划中,刻意将空间开放,让空气及光线得以流通。
原设计准备将台面延伸至冲淋墙处做置物台。 后来业主才告知早之前马桶、龙头等都买好。 此款马桶水箱较高,台面延伸不过去,想抛弃原设计方案。 但业主说什么都不行,就想要置物台了,最后产生此款有叠级的置物台。【马桶上方置物台面20cm即可】
床品是之前买好的, 大家引以为戒 ,搭配深色会好很多。 柜子装了阻尼, 不要把手更美。
书桌做了钢架,插在墙里更具稳定性。 其实可以做的更薄,但考虑到实用性加抽屉,还是按正常尺寸做。 儿童房为孩子长大看电视,预留了电视插孔。
书房背后的写字板来源于业主的公司, 业主做管理的,喜欢写字板的手感,索性带回来一块。 此房间升级后可做二宝房。