-
项目定位:巍巍括苍山,浩瀚绵东海,诉说着流转不尽的诗意、美蕴。
EH DESIGN GROUP 易和设计集团透过造型解构、材质肌理,以光影交替传达山海雅趣,以现代手法重构东方文化,完美呈现新现代主义设计手法下的历史人文与城市脉络。
-
空间意境:“山,宣也。宣气散,生万物,有石而高。”
沙盘上方天花的设计灵感汲取了古典的“山”字造型,于无声中彰显辽阔、深远,将人从日常琐事中抽离,静谧而自由。
-
空间布局:洽谈区的设计简约有序,原木色地板、淡雅的素色沙发与艺术陈列交融一体,白色灯箱上勾勒写意山海画,平添了空间流动的趣味。
-
设计选材:无
-
用户体验:无
巍巍括苍山,浩瀚绵东海, 诉说着流转不尽的诗意、美蕴。 EH DESIGN GROUP 易和设计集团透过造型解构、材质肌理,以光影交替传达山海雅趣,以现代手法重构东方文化,完美呈现新现代主义设计手法下的历史人文与城市脉络。
杜甫诗云:“台州地阔海溟溟,云水长和岛屿青”。 步入空间,彷入诗人笔下的山海秘境。预接待区深色木饰面,深邃、宁静。考究的金属细节,彰显尊贵。
竹韵无界,润物无声。 穿过曲径通幽的竹径,在静谧的东方雅韵中,汲取自然养分,收获万物灵感,感悟归本的生活真谛。
山海之博大,君子然自若。 步入大厅,原木色和高级灰的主调,低饱和度的色彩,静美而平和。简洁的立面,于细节处匠心精琢。
“山,宣也。宣气散,生万物,有石而高。” 沙盘上方天花的设计灵感汲取了古典的“山”字造型,于无声中彰显辽阔、深远,将人从日常琐事中抽离,静谧而自由。
写意山海,于波澜起伏见意趣悠远。 洽谈区的设计简约有序,原木色地板、淡雅的素色沙发与艺术陈列交融一体,白色灯箱上勾勒写意山海画,平添了空间流动的趣味。
山海一色,远方飞鸟,一叶扁舟,宁静致远。 大面积落地窗设计,将庭院枯山水景观尽揽眼底,室内的“山海”之意与窗外的“山水”景致相互辉映,诗意升腾。 大气雅致,褪去心灵浮华;悦享平和,了以心境本真。
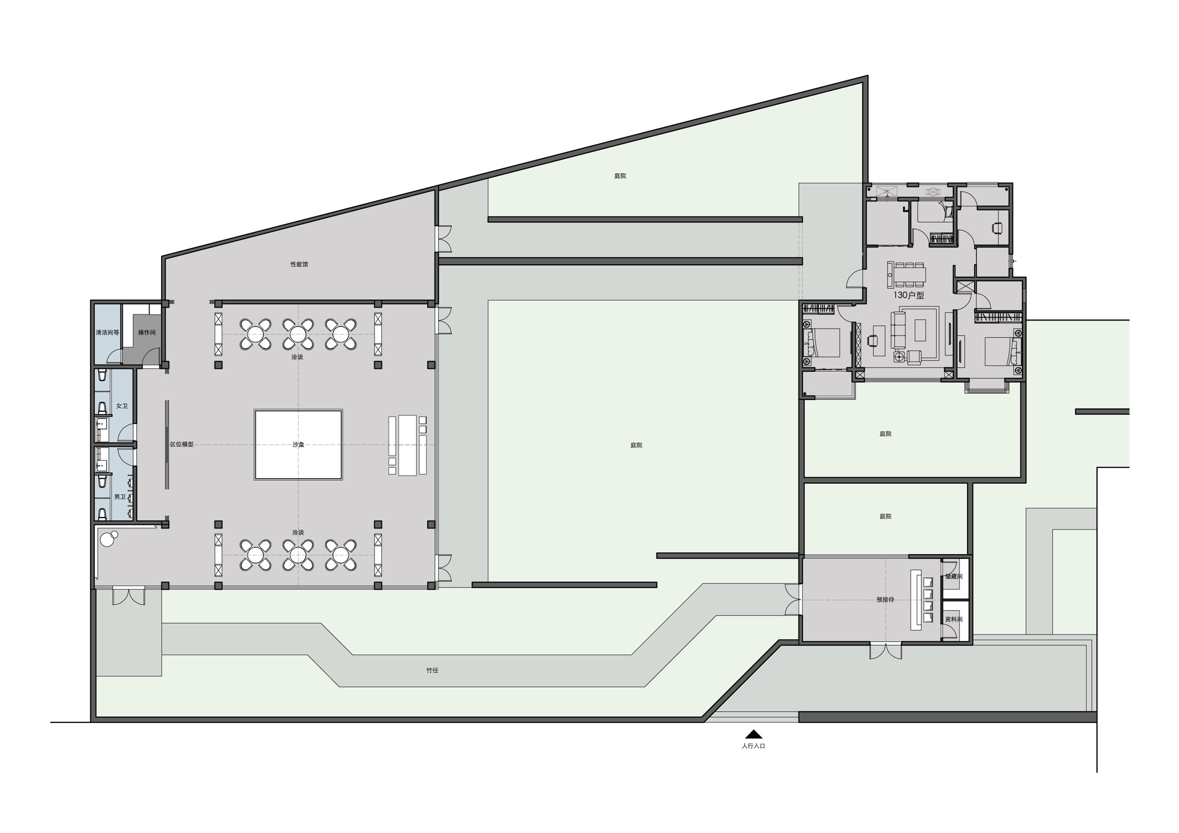
平面图
0
0

认证 · 让您身份增值
1806