105㎡简约风,玩转通透格局
76- 项目类型:住宅公寓
- 项目地点:北京市
- 建筑面积:105㎡
- 项目造价:37万元
- 竣工时间:2025-06-23
客厅用纯白墙面和浅色家具形成柔和基底,营造出明亮的简约主义空间。经典的简约空间在大面积的留白处理下,释放出通透的呼吸韵律。
一面总长4.9米的定制书柜墙,由灰色开放格与温润胡桃木的双材质拼接,作为空间核心。灰色柜门搭载暗槽滑轨设计,可在同层灵活移动。错落摆放的书籍与展品,为空间注入些许艺术气息。
客厅用投影幕布替代电视,在吊顶里做升降设计,让书柜可以完整展示出来。超大的储物空间适配书籍、藏品与生活杂物,承载全家人的阅读时光。
客厅深杯防眩射灯,将照明聚焦到功能区,赋予空间纯粹干净的视觉感受。隐形灯带沿着吊顶凹槽流淌出柔和光晕,见光不见灯,温馨又高级。
顶部过梁自然划分客餐厅区域,并用曲面做衔接过渡更自然。连接处预留线性灯带,以柔和的光影消解了硬装结构的棱角,塑造轻盈的悬浮视觉效果。
卧室入口采用隐框门设计,弱化门洞的突兀感。门板与墙漆同色,配色同一与背景融为一体。
大横厅布局的客厅设计,沙发不再靠墙让空间更加通透宽敞。浅色组合沙发居中摆放,其后方直接衔接开放式的餐厨,形成清晰流畅的功能分区,释放出环绕整个公共区域宽敞的洄游动线。
Kena米白色亚麻豆腐块沙发,模块化组合赋予自由拼接的特性,如同错落的积木方块,在浅色地毯上舒展出灵活的围合形态。
餐边柜总长4.2m,以封闭柜门为主,可以收纳易落灰的茶叶、茶具、餐具与酒具等。
中部嵌入的深色套格、开放层板架专用于陈列使用频率多的杯具,下方便捷抽屉辅助收纳,横向轨道插座集成于台面之上,为咖啡机等电器供电,简约又富有烟火气。
岛台与岩板餐桌拼接,外侧桌腿选用磨砂玻璃做支撑,赋予空间悬浮的视觉效果。
岩板桌面穿插在岛台夹层中,内部的机械轨道实现自由推拉,可以轻松延展桌面方便会客和聚会使用。
西厨转角处是定制的电器高柜,可以嵌入银色烤箱,流畅整合大件厨电功能。顶部隐形百叶柜门作为伪装,将壁挂空调彻底隐匿其中,不影响出风还能美化效果。
三扇玻璃推拉门分隔阳台与客厅,透明亚克力书桌腿有种悬浮的轻盈感。花枝、摆件和绿植作点缀,在阳光四溢的环境里显得宁静又自然。
玄关区摆放一张黑色的实木矮桌,搭配简约的艺术摆件与油画,让空间更加细腻有质感。转角处弧形设计,整体过渡更加平滑舒适。
玄关走廊用暖调石纹地砖,赋予归家第一步的温润质感。素净的浅灰色墙面,营造清爽的空间氛围。深灰色的立柜搭配胡桃木开放格,井然有序的层次感,收纳又不会显得凌乱。
深灰色的哑光玄关柜,底部搭载胡桃木开放格,还能延伸出一块换鞋柜的位置。内部是一个大的杂物间,可以轻松容纳各类大件物品、行李箱。立放的穿衣镜,方便出门前检查穿搭。
卫生间将洗漱区外移实现干湿分离,双排动线增强灵活与实用性。石材样式的洗手台,搭配悬挂式的水滴龙头和镜子,满满的高级感。
立柱洗漱台采用了双盆设计,提升利用率避免早晨排队使用。台上和台下盆组合,提升层次变化避免单调。
靠墙的台下盆一侧,有一组嵌入式的梳妆柜,可以集中收纳女主人的化妆品和护肤品。洗手台下方还放置了扫地机基座,方便连接上下水,更加便捷。
干湿分离的洗漱台居中规划,双排动线让使用的便捷性大大增加。悬挂的卫镜和水滴龙头还能减少视觉上的阻碍,让空间更显大。
卫生间原本是个没有窗户的“暗卫”,光线不足很压抑。通过使用工字铺的玻璃砖做隔断,将隔壁的采光介入延伸进来,既增强了空间质感,也弥补了采光的不足。
卫生间内侧增加了一个泡泡缸,全缸遍布隐藏的喷气孔,可以享受舒适的泡澡按摩。
壁挂式马桶搭配隐藏水箱,杜绝任何卫生死角。水箱延伸出的台面,宽度刚好够放小香薰瓶或者绿植盆栽,可以很好的净化些许异味。
厨房兼顾了多种功能,除了收纳外还融入了家政功能。洗烘两件套上下叠放嵌入柜体,严丝合缝不显突兀。
L型厨房布局保证储物和操作空间,台面与灶台之间高低组合设计,让烹饪不累腰。带烤箱的黑色集成灶一站搞定爆炒和烘焙,洗配切炒在转身间一气呵成!
冰箱完美嵌进大白柜里,侧面居然还“偷”出个薄抽屉可以藏杂物,保鲜膜、调料备货都可以往里塞!
右边墙挖了个凹槽并安装洞洞板,锅铲漏勺直接挂上金属网格墙,拿取转身就够着,让厨房省地又利索!
卧室没有配备床架,床垫直接“瘫”在地板上,配上蓬松的棉麻灰色床单和藏蓝色小毛毯,一股随性慵懒的范儿就飘出来了~
床头左右对称吊挂着两盏深灰小吊灯,柔和的光线像给床开了专属小剧场,睡前读一本喜欢的杂志或是看看电影,氛围感直接拉满!
卧室省掉了笨重床架,一眼看去“空荡荡”反而简约又舒服。床后头是容量超大的步入式衣帽间,衣服裙子挂杆上一目了然,还不会凌乱。
简单的白色床头背景墙,横平竖直的线条感干净又利落!几道凹凸线条把白墙变立体,极简高级也不花哨。
肉桂色+原木色是儿童房的主基调,像块撒了肉桂粉的奶油蛋糕,甜而不腻。小书桌配圆木凳刚好够“小公主”手工和学习。
靠窗树屋儿童床充满童趣,实木台阶当爬梯,上方是休息区,底部还有一个秘密基地。
粉色房间里特意腾出中间整块空地,木地板光溜溜的细腻质感,太适合作为活动游戏的地方了。玩具架全贴边靠墙站,绘本、玩偶也都收拾得规规矩矩,好习惯得从小培养。
衣帽间用脏粉色的帘幔做遮挡,防尘又省心。玻璃砖墙将光线延伸到卫生间,有效弥补了暗卫的采光。
改造前:
1.玄关收纳不足,除了挂衣放鞋,还需要行李箱的放置区,方便男主人经常出差以及家庭旅行所需。
2.卫生间空间比较大,但却是暗卫,需要弥补采光。屋主还有泡澡和化妆的功能需求。
3.厨房需要充分发挥空间的利用率,炊具和厨房电器比较多,需要充足的收纳解决存放问题。
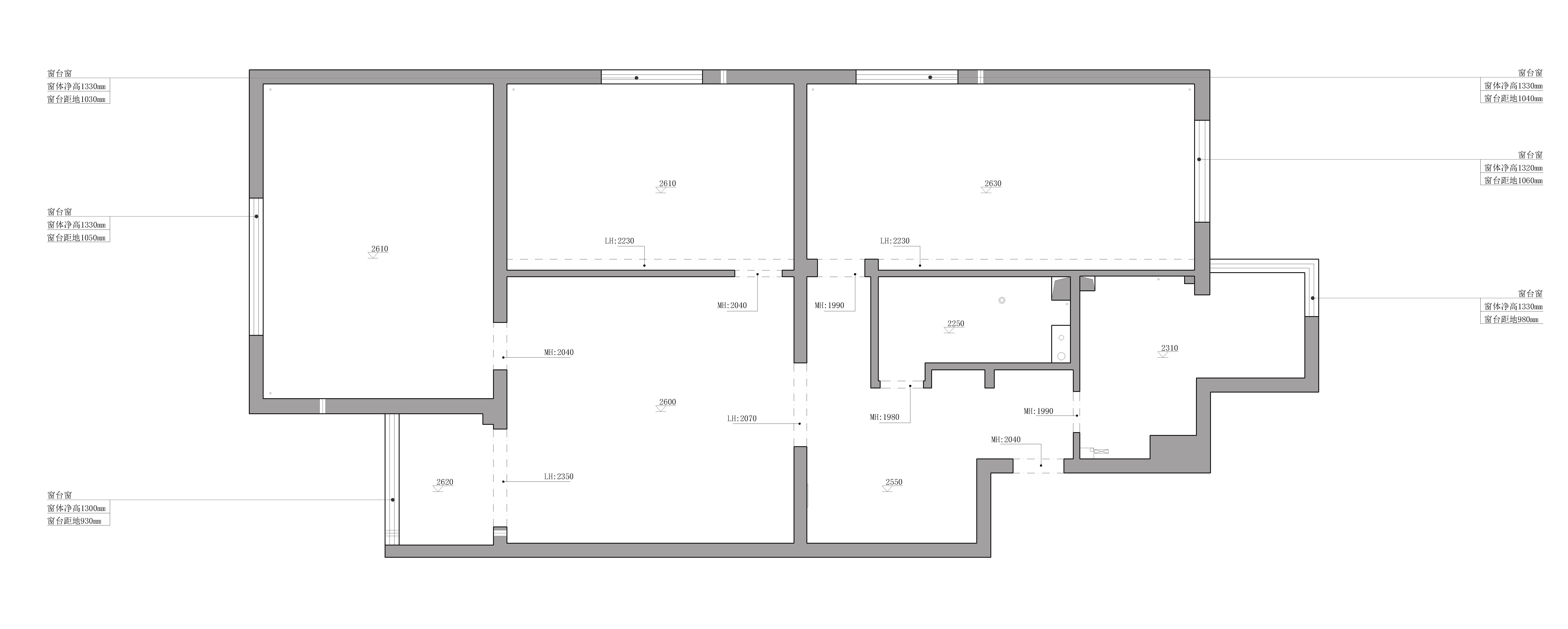
4.目前是三居室,但是以三口人的居住方式来看,两居空间就可以。多出的一间房需要改造成其它功能。
5.客厅位置比较尴尬,受过道和卧室入口限制导致利用率不高。并且只有一个小阳台提供采光,需要更开阔明亮一些。
6.需要增加一处水吧台的功能,既保证红酒与茶具的存放展示,还能满足日常小酌和品茗。
改造后:
1.玄关左侧增加杂物间,很好的弥补了收纳的不足,行李箱可以完全存放其中拿取很方便。
2.卫生间做了干湿分离,留出双排动线。右侧位置嵌入一组梳妆柜,满足物品的存放。内部用玻璃砖做隔断,增强采光并嵌入浴缸,实现泡澡自由。
3.厨房L型布局,保证充足储物和操作空间。靠墙一侧留出一个凹陷的部分,安装不锈钢洞洞板,可以集中挂放厨具。
4.三居改两居,留下主卧和女儿房,并对房间内部格局进行调整,融入了步入式的衣帽间,轻松搞定衣物存放还避免凌乱。
5.客厅与第三间房的隔断完全打开,做成一体式大横厅布局,提升通透性的同时,还弥补了采光的不足。
6.客厅和餐厅一体化设计,并且还融入了西厨和岛台,将原卧室位置改造成,集餐厅、吧台,西厨为一体的多功能区。
-
北京市
工作地点
-
联系方式
15210611558

认证 · 让您身份增值