天健·湾TIME时代府
295 - 项目类型:样板间/售楼处
- 项目地点:深圳市
- 建筑面积:1124㎡
- 项目造价:899万元
- 参与设计师:袁洋、颜英奇、倪海杨、李平、黄方志、黄霸、林伟兰
- 竣工时间:2025.10
- 设计机构:诗意空间设计
-
项目定位:天健湾·TIME,立于前海湾与山海地貌的交汇之处, 背靠大小南山,面向前海湾。不仅是衔接深圳西部与湾区海岸线的重要城市动脉,也是一个立足全球视野、融汇都市更新与滨海生活想象的战略性人居坐标。
山海、港湾与城市在此叠合,构成多重并置的城市结构。产业创新的动能、高端居住的尺度,与山海生态的自然秩序彼此共存,于自然纵深与从容节奏之中,生长出一处隐于城市进程的时间桃源。作为诗意空间设计首个建筑、室内、景观一体统筹的项目,空间的生成不再以单一界面为起点,而是从人的感知与行进路径出发,构建由外而内、由远及近的连续体验。
在湾区的生长语境,从东方的诗性本源展开,并由此糅合东西界限与观念,使人们内心涌动的浪漫向往,汇聚为湾TIME的审美底层意识。设计以坚定的内在轴心,铺就这条循环与回归的路径。 -
空间意境:流水庭院、渐展的树影,与暗调的仪式连廊,次第展开,使空间在不经意间,铺陈一段即将映入眼帘的风景篇章。人们身处其中,自然不再作为被观看的对象,而成为感知的一部分。天光引入庭景,水声低回,风影微漾,树梢流动着疏影......空间的节奏由此放慢,自然向内聚合,时间在此停留。设计以东方的尺度、序列与留白,为生活预留淡然而恬静的感知方式。行走、停留、相遇与独处,在连续的空间关系与自然介入中徐徐展开,形成一种内在自洽的生活秩序。
-
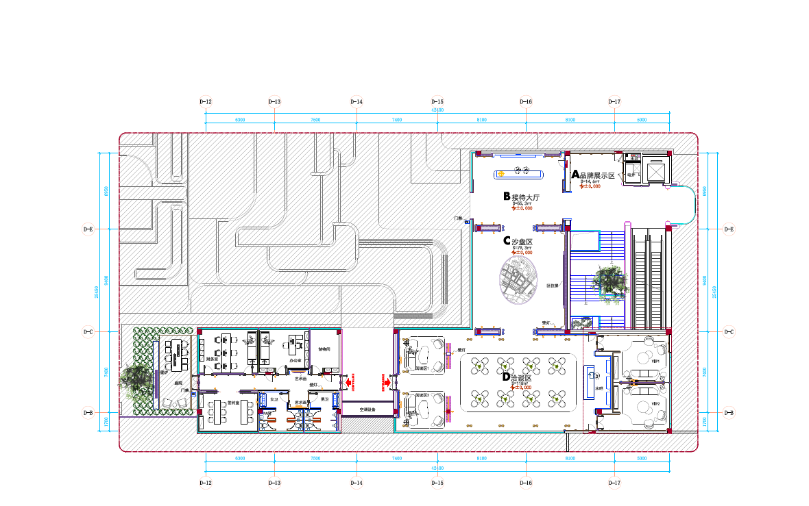
空间布局:当我们走进天健湾TIME会所,这里所承载的不仅是山海间的漫想,而是一场与国际审美风范的对话,更是一种对人文体验与人居生活的持续创新。
从开阔到私密,空间在尺度与序列中缓缓展开,既为自在聚合提供自然场域,也为低声私语保留宁静角落。每一次相遇都被赋予仪式感,交流在自在与秩序中自然发生。绀紫的色调成为空间的序章,以诗与艺术之语,唤醒每一处空间的生机,成为点亮情绪的火种,又恰到好处的归于克制与宁静。浪漫与优雅,作为东方与西方都市文化的代表,是现代性在不同文明土壤中结出的果实,也绽放在我们持续探索的,不确定的当代生活缩影中。 -
设计选材:建筑外立面以范思哲绿奢石自然而深邃的质地,呈显沉稳而内敛的奢华格调。渐变木立柱与深色木造天花,勾勒一座现代的室内亭院。窗外随风摇曳的树影,为都市空间添上自然的润笔。设计将空间节奏,与艺术想象巧妙融合,使人们在内适外和的平衡中,感受城市放慢后的宁静。
玉石回归母题,贯穿诗意空间团队的诸多项目,成为设计对东方文化中「时间与肌理」的探寻,引导选石、工艺与细节的每一次落笔,亦留下时间的痕迹。
玫瑰粉色的吧台,整石雕铸,成为空间的艺术驻点,弥散着香颂的浪漫与摩登的优雅,赋予空间新的灵感。在这里,生活是一场与自我、自然、艺术的深情对话。光明,期待与喜悦,最终汇流于心田。
过厅以艺术木饰面为幕,地面镶嵌意大利米白石材。奢石的百道微弧贯穿每一细节,柔化着视线的延展。人们一步一履,沉浸在精湛工艺与浪漫优雅交织的韵律之中。 -
用户体验:设计相信,诗性浪漫是一种立足东方,并兼具国际张力的表达。它扎根于我们的生长环境,敏锐回应东方意趣,自然呈现独特的文化个性,引领人们成就自信而从容的自我。
天健·湾TIME,是浪漫精神的延伸,以浪漫之名,去感知生命的驱动力,探索不可穷尽的多样性。光影在室内流转,空间随自然韵律呈现连续节奏,它静谧而优雅,盛载生活的丰盈。
作为软硬一体的项目,设计以尊重个体感受为前提,回应东方理想人居的美好愿景。软装陈设以凝脂白为素雅底色,搭配玉石桌与质感面料,低声轻吟着空间的玲珑精巧与自然诗意。
由此,自然、宁静、优雅的生活方式,让空间成为感知与停顿的场域。温和的灯光、柔软的地毯,抬头可见的幽篁瞬息为诗性的疏影,成为相映成趣的余想。
建筑外立面以范思哲绿奢石自然而深邃的质地,呈显沉稳而内敛的奢华格调。
从东方到西方,从传统到当代,浪漫,不在远方,而在重新与时间的相处中。由激荡于内心的火光激活,被自我驱动的本然生命力,幡然点亮。
流水庭院、渐展的树影,与暗调的仪式连廊,次第展开,使空间在不经意间,铺陈一段即将映入眼帘的风景篇章。
天光引入庭景,水声低回,风影微漾,树梢流动着疏影......空间的节奏由此放慢,自然向内聚合,时间在此停留。
设计以东方的尺度、序列与留白,为生活预留淡然而恬静的感知方式。
当我们走进天健湾TIME会所,这里所承载的不仅是山海间的漫想,而是一场与国际审美风范的对话,更是一种对人文体验与人居生活的持续创新。
东方的含蓄,不再只是对传统的回望;西方的理性,也得以超越形式与秩序本身,回应真实生活的需求。
艺术吊灯以钻石的璀璨为灵感,引天光洒落,让人驻足仰望,停顿稍许,感受光的精神与秩序。
过厅以艺术木饰面为幕,地面镶嵌意大利米白石材。奢石的百道微弧贯穿每一细节,柔化着视线的延展。
玫瑰粉色的吧台,整石雕铸,成为空间的艺术驻点,弥散着香颂的浪漫与摩登的优雅,赋予空间新的灵感。
人们享受着光影在空间的变化,感受着艺术与光线的交织。此刻,瞬间的凝视,成为步入正厅的仪式,也映射着东西方审美的默契相融。
渐变木立柱与深色木造天花,勾勒一座现代的室内亭院。窗外随风摇曳的树影,为都市空间添上自然的润笔。
天健·湾TIME,是浪漫精神的延伸,以浪漫之名,去感知生命的驱动力,探索不可穷尽的多样性。
作为软硬一体的项目,设计以尊重个体感受为前提,回应东方理想人居的美好愿景。
绀紫的色调成为空间的序章,以诗与艺术之语,唤醒每一处空间的生机,成为点亮情绪的火种,又恰到好处的归于克制与宁静。
浪漫与优雅,作为东方与西方都市文化的代表,是现代性在不同文明土壤中结出的果实,也绽放在我们持续探索的,不确定的当代生活缩影中。
0
0

认证 · 让您身份增值