禧瑞春秋
1
作品说明
- 项目类型:别墅
- 项目地点:北京市
- 建筑面积:600㎡
- 项目造价:900万元
- 主案设计师: 李军
- 参与设计师:赵港龙 祁菲菲
- 竣工时间:2024年12月
- 设计机构:尚层别墅装饰
-
项目定位:以人为本、化繁为简、少装饰多软装、呈现家的温馨感
-
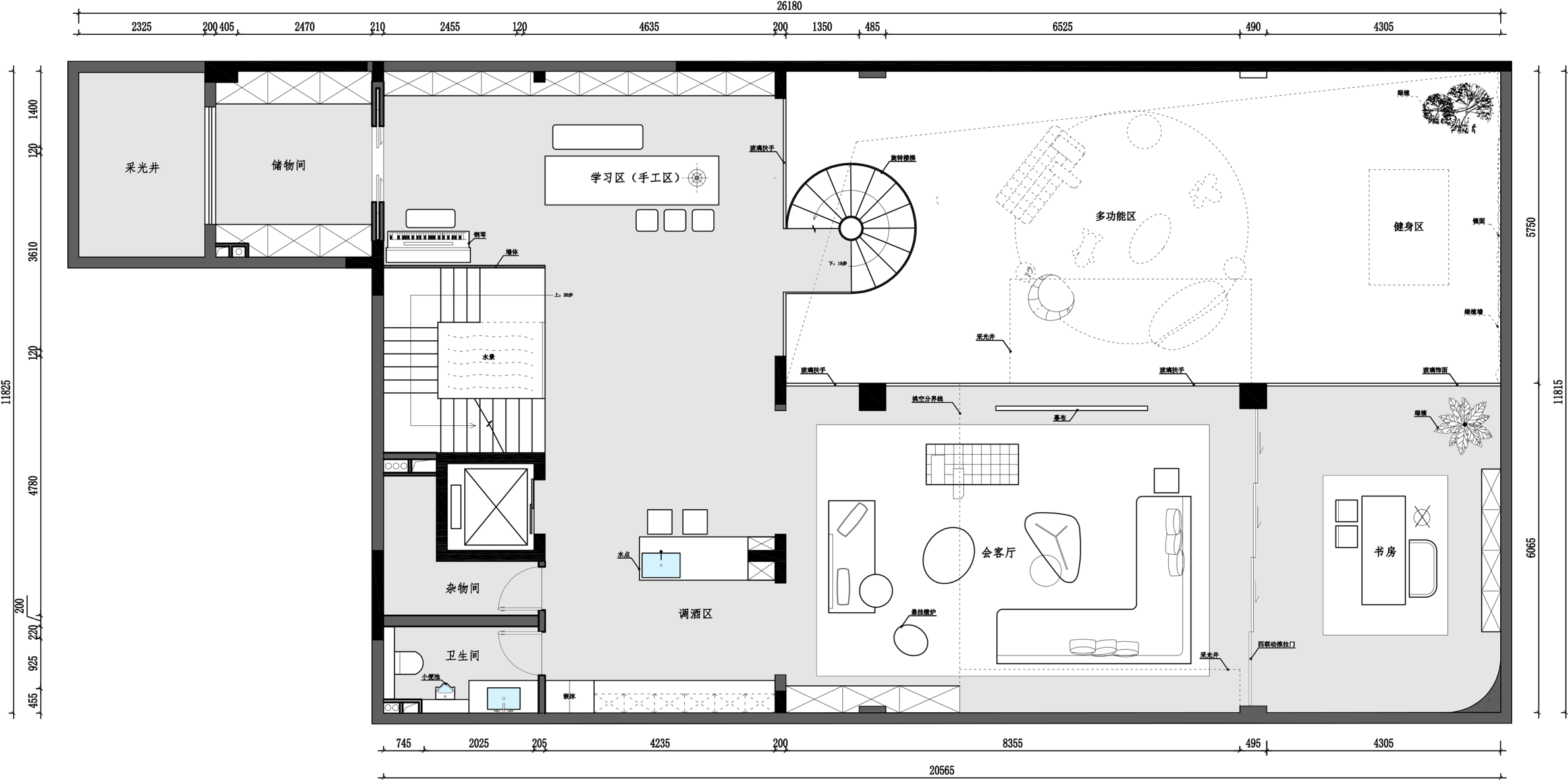
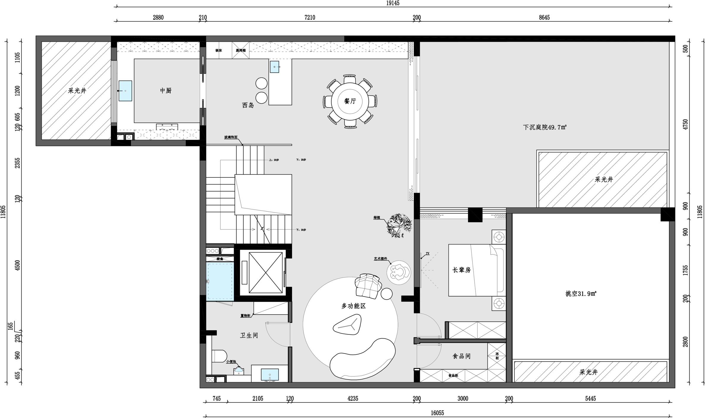
空间意境:将庭院的园林设计引到室内,将产生借景风格,加大客厅的窗户少划分隔断
-
空间布局:此结构地下三层楼上两层、通过优化原有结构奖采光最大化引入地下空间
-
设计选材:在设计选材当中采用一些再生玻璃制成的装饰板、采用一些模块化卡扣式的材料
-
用户体验:客户最大的感受在使用的过程中动线很合适、其次回家能让我们放松,整体的设计都非常的合理
0
0

认证 · 让您身份增值