简白 · 纯粹
10
作品说明
- 项目类型:住宅公寓
- 项目地点:广元市
- 建筑面积:180㎡
- 项目造价:65万元
- 主案设计师: 鲜涛
- 竣工时间:2025
-
项目定位:在繁忙的都市中,生活中的每一处细节,每一缕光影,都在这片静谧中谱写出诗意。
-
空间意境:通过精心的设计,家的轮廓得以呈现,空间与自然光的融合,使得每一个角落都充满温暖与生机。
-
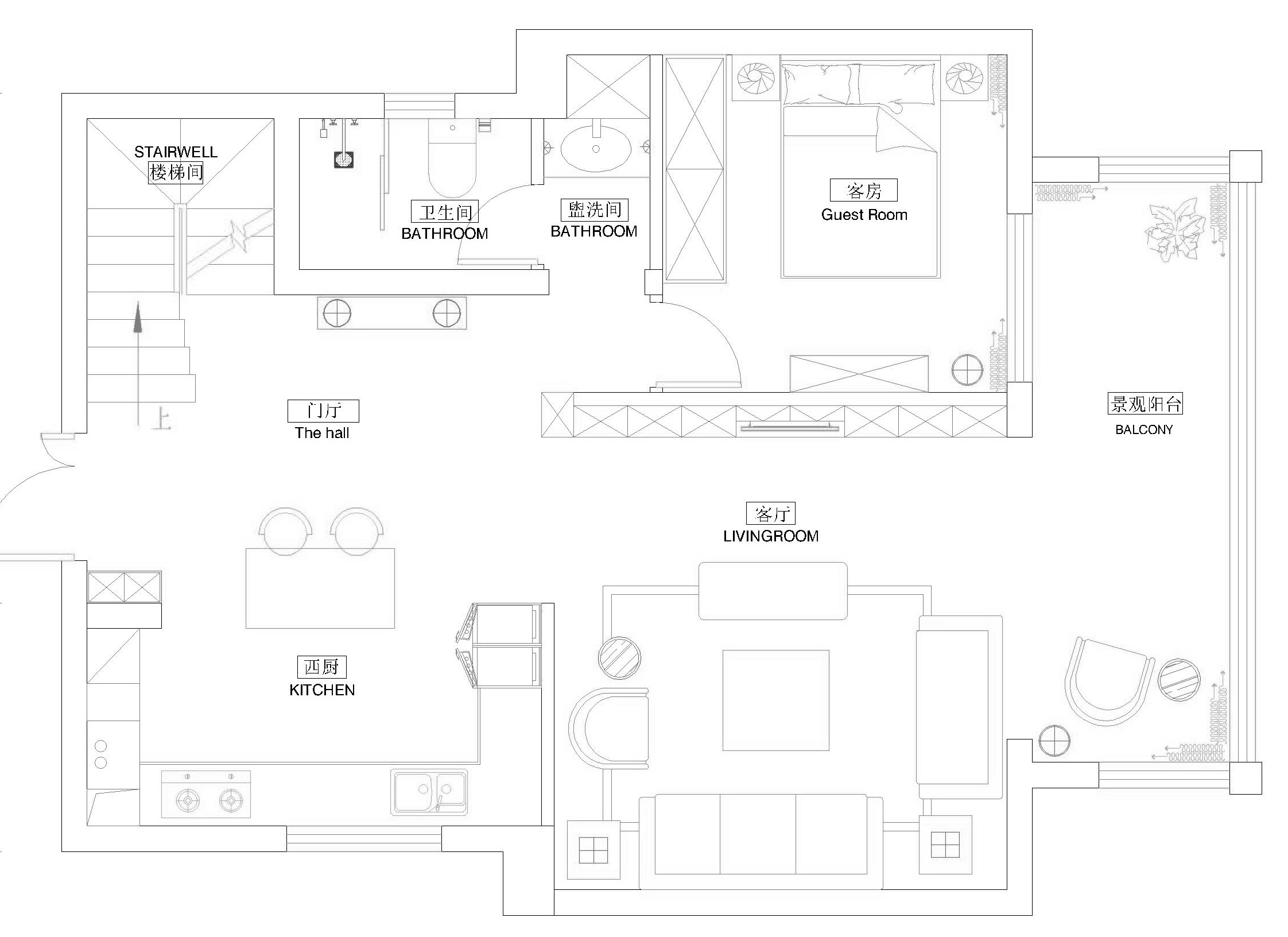
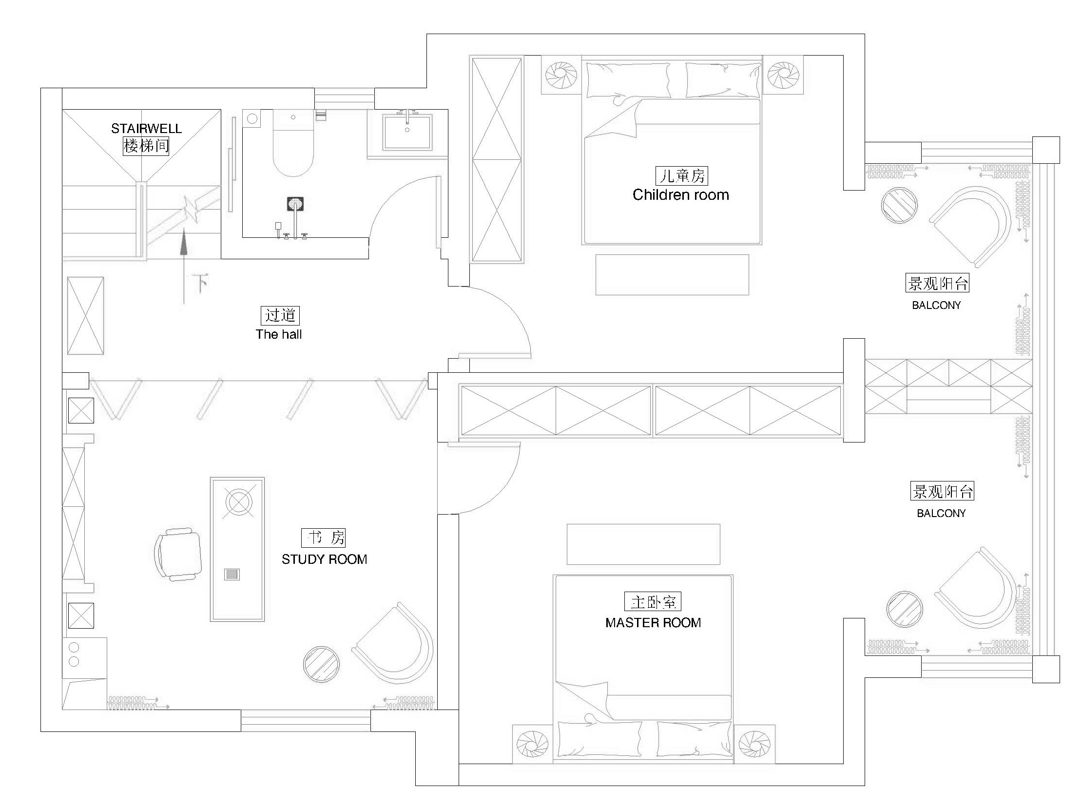
空间布局:开放式空间、洄游式动线、色彩解构搭配、精细化功能满足居者所需,个性化需求与空间的巧妙搭配,鲜活的家居生命力与使用者同频共舞、生生不息。
-
设计选材:以白色和灰色为主色调,营造出干净、明亮的氛围。
这样的色彩策略,不仅扩展视觉空间,还能提升光线的利用率。 -
用户体验:入住一个月了,新家的设计既贴心又实用,全家都很满意,远超预期!
0
0

认证 · 让您身份增值