灰度独白--loft公寓设计
201
作品说明
- 项目类型:住宅公寓
- 项目地点:南昌市
- 建筑面积:49㎡
- 项目造价:50万元
- 主案设计师: 赵毅
- 参与设计师:赵毅
- 竣工时间:2025.12.11
票数 : 0
-
项目定位:设计理念: 于理性的黑白灰基调中,注入感性的温度与叙事。摒弃繁杂装饰,以精准的空间构成、丰富的材质对话与戏剧性的光影变化,构建一个能够容纳独处、思考、工作与社交的“现代绅士精神容器”。
-
空间意境:· 色彩情绪管理: 以黑、白、灰作为绝对主导。黑色金属板奠定沉稳基调;大面积白色墙面提升明亮与纯净感;皮质沙发与织物地毯构成空间丰富的视觉肌理与温度层次,避免冰冷。
· 材质对话: 组织硬朗与柔软的材质对话。不锈钢与温润的白色饰面、隐藏式灯带带来的光晕、高品质羊毛地毯并置,在对比中达成平衡,满足功能与触感的双重需求。
· 光影雕塑: 将自然光与人工光作为重要“设计材料”。利用LOFT高窗引入变化的天光;设计线性光带、可调角度射灯与局部重点照明,在夜间“雕刻”空间体块,营造静谧、专注或慵懒的不同情境氛围。 -
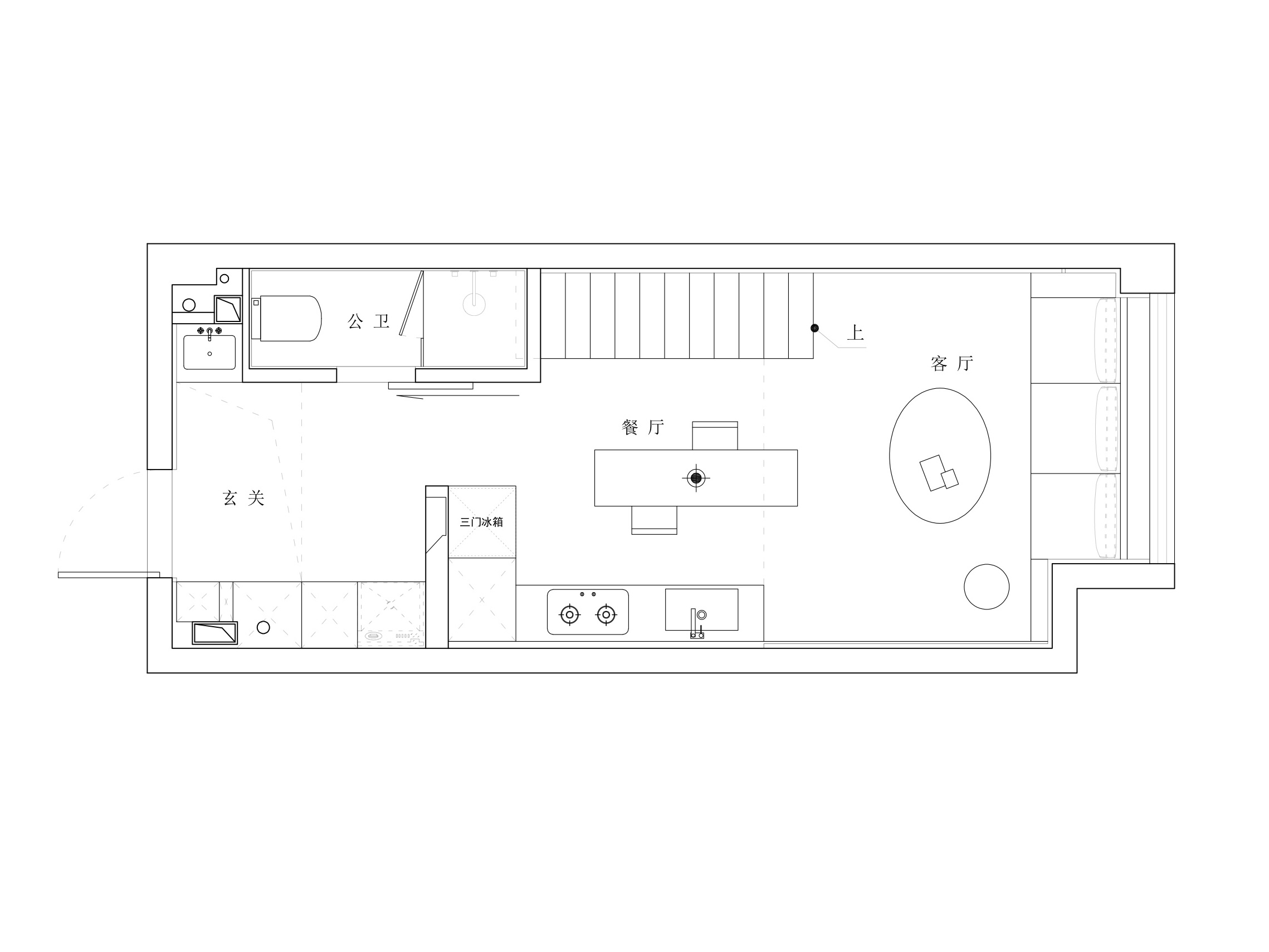
空间布局:一层 公共区 | “从容的舞台”
· 策略: 一体化开放式布局,强调流动性、互动性与多功能复合。
· 亮点:
· 社交厨房+中岛: 采用白色岩板台面与隐藏式收纳,中岛兼具早餐台、临时工作区与社交核心功能。
· 弹性客厅: 舍弃传统茶几,采用可移动边几与模块化沙发,为独处阅读或朋友聚会提供灵活场景。一面墙设为整墙运动器材收纳系统,保持极致整洁。
· 视觉锚点: 两幅抽象几何画作,成为视觉情绪的凝结点。
· 过渡 楼梯 | “精神的仪式”
· 策略: 不仅是交通构件,更是体验转换的仪式通道。
· 亮点: 采用悬浮踏步设计,搭配玻璃护栏,侧面设置感应地灯。上行过程伴随光影变化,完成从公共到私密的心理准备。
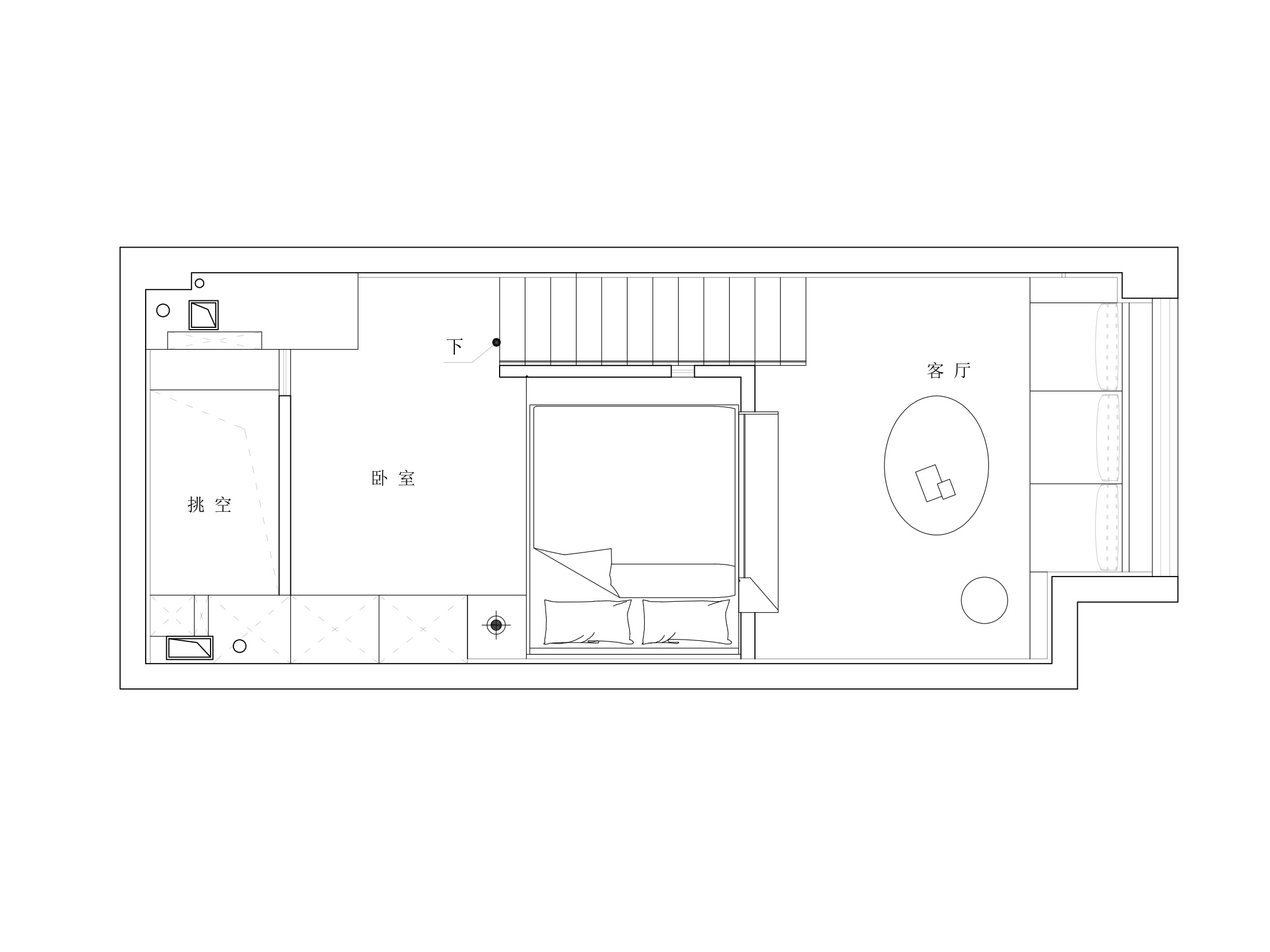
· 二层 私密区 | “内省的茧房”
· 策略: 营造包裹感、安全感和高度专注的氛围。
· 亮点:
· 开放式睡眠区: 地台式床体设计,降低视觉重心,营造安稳感。 -
设计选材:在极简框架下,通过精妙的材质比例、光影控制和细节工艺,展现顶级的设计完成度与高级感。具体细节把控如在南向高窗内侧加装黑色蜂巢帘,此一次性投入显著降低夏季制冷的长期能耗,是高性价比的“低碳投资”。
-
用户体验:「灰度独白」不仅是一个居住空间,更是一份关于现代男性生活态度的声明。它用最理性的设计语言——黑白灰的色调、清晰的体块、精确的尺度,包裹最感性的内核——对自我的关注、对品质的坚持、对自由的向往。它安静而有力,是这个时代独立个体精神的真实写照。
本案以“灰度独白”为叙事主线,为都市单身男性打造一处兼具理性秩序与情感温度的精神居所。设计摒弃冗余装饰,通过对黑白灰的精准调度、以及光与结构的诗意对话,构建出一个可呼吸、可思考、可生长的生活场域。
一体化的开放布局,将厨房、餐厅、客厅融为整体。白色岩板中岛成为视觉锚点,在满足高效备餐与简约社交的同时,保持了视线的绝对通透。
楼梯不仅是连接上下层的通道,更是空间中的雕塑品。悬浮踏步设计,展现工业力量与轻盈感的对立统一。侧墙的嵌入式感应灯随阶而上,勾勒出光的轨迹,强化了从公共步入私密的“仪式感”,成为情感与空间转换的隐喻。
二层作为专属的私密领域,整体氛围趋于沉静。地台式床体降低了视觉重心,赋予睡眠安全感。背景墙采用黑色木质墙板与白色衣柜形成明暗碰撞。巨幅开窗最大限度引入自然光,为独处思考提供静谧而专注的一隅。
“灰度独白”是一次对现代单身男性生活方式的深度解读。它超越了风格的表述,通过对空间、材料、光线的系统性构建,回应了居住者对效率、品质与精神自洽的复合需求。在这里,理性与感性共生,克制与温度并存,展现了一种不迎合潮流、忠于自我的当代绅士生活哲学。
1
1

认证 · 让您身份增值