大理逸璟民宿
1
作品说明
- 项目类型:酒店
- 项目地点:大理白族自治州
- 建筑面积:700㎡
- 项目造价:660万元
- 竣工时间:2025
- 设计机构:大舍记设计有限公司
-
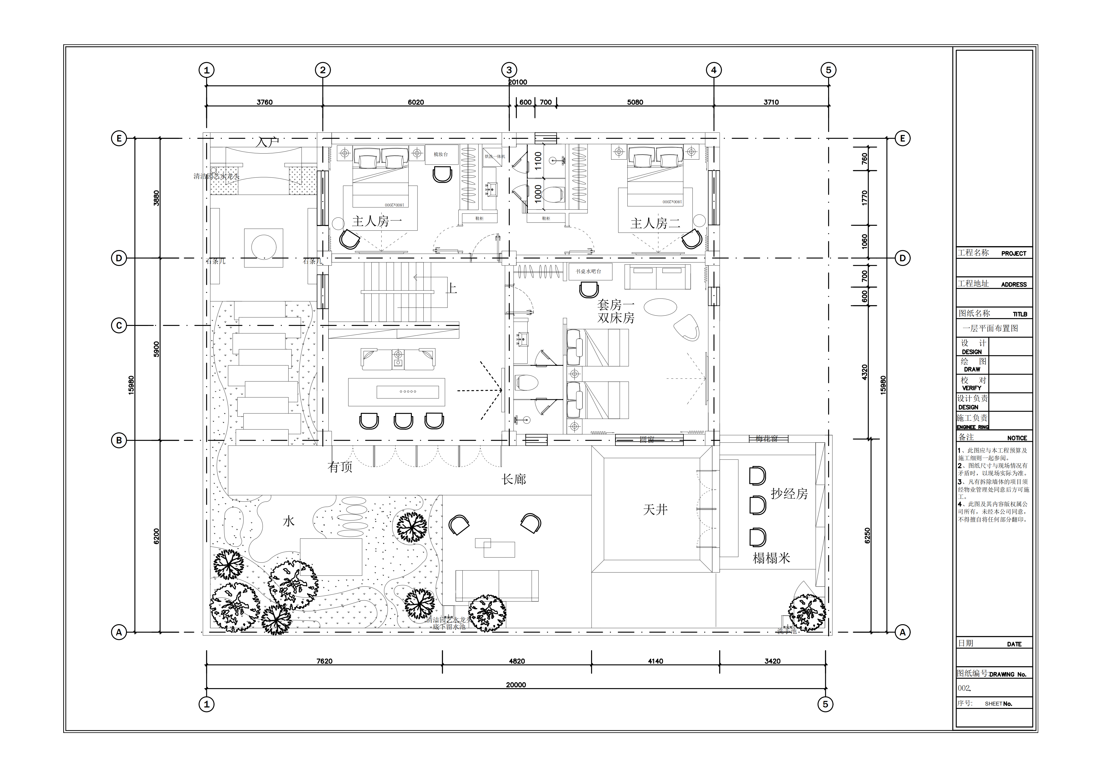
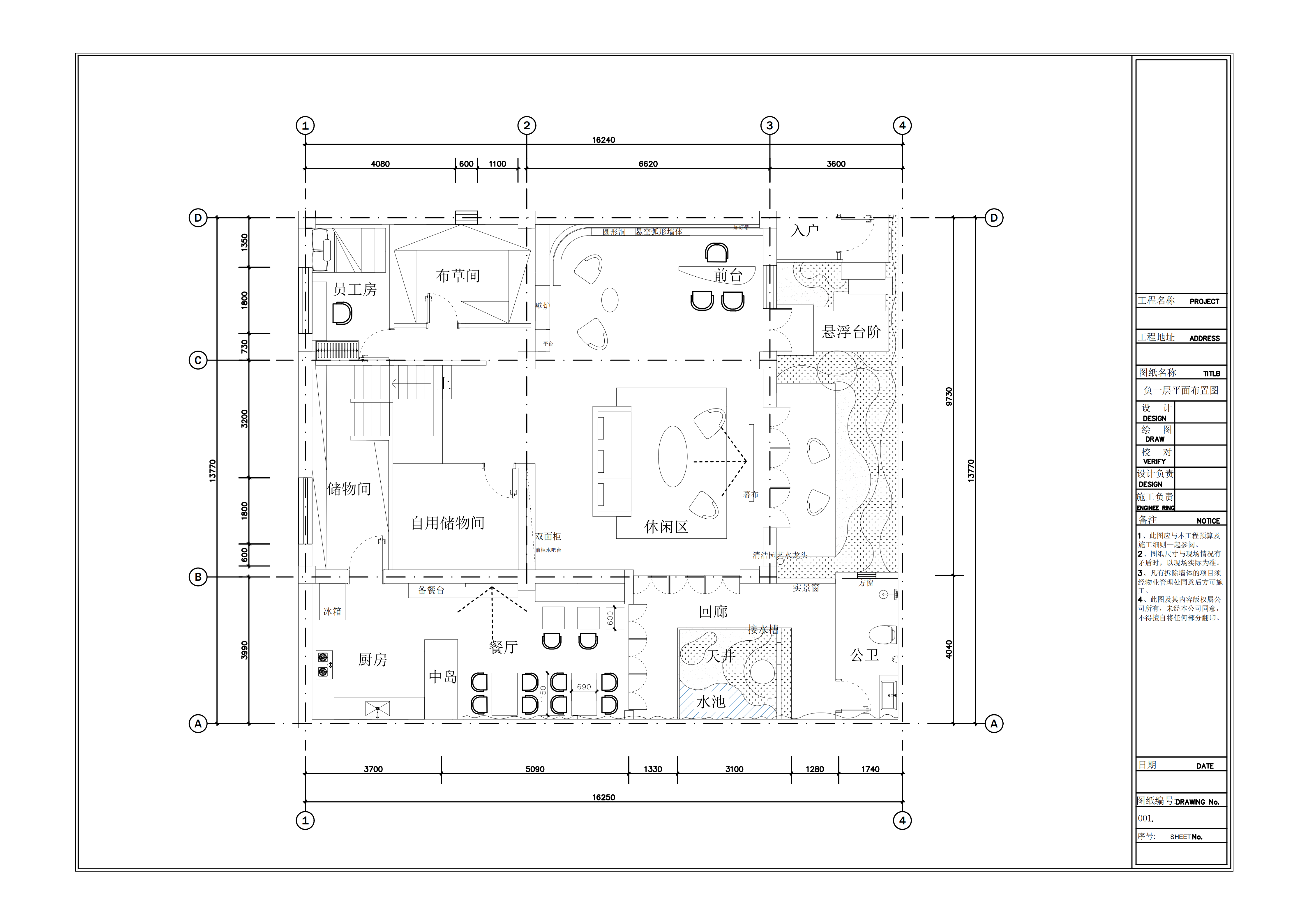
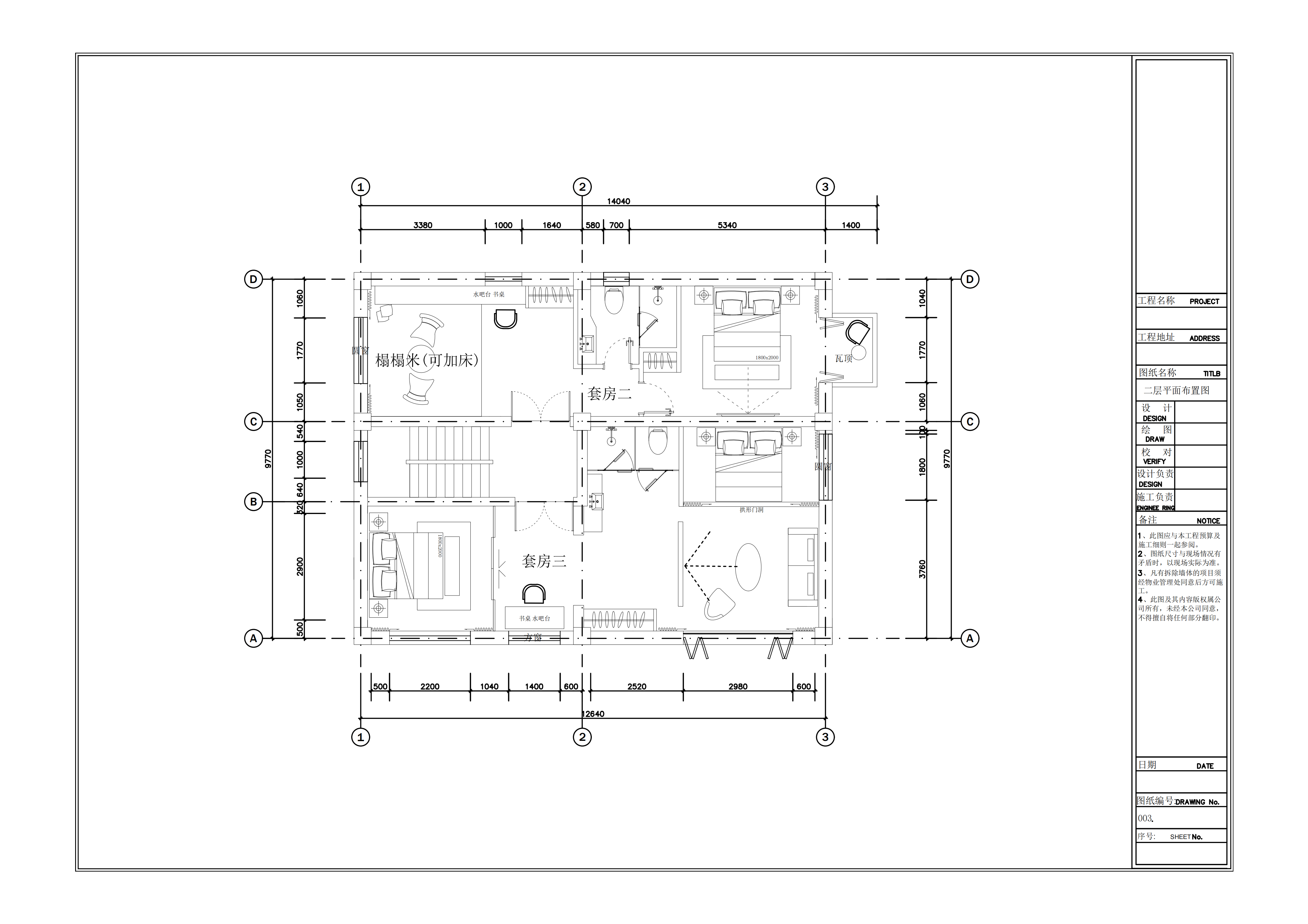
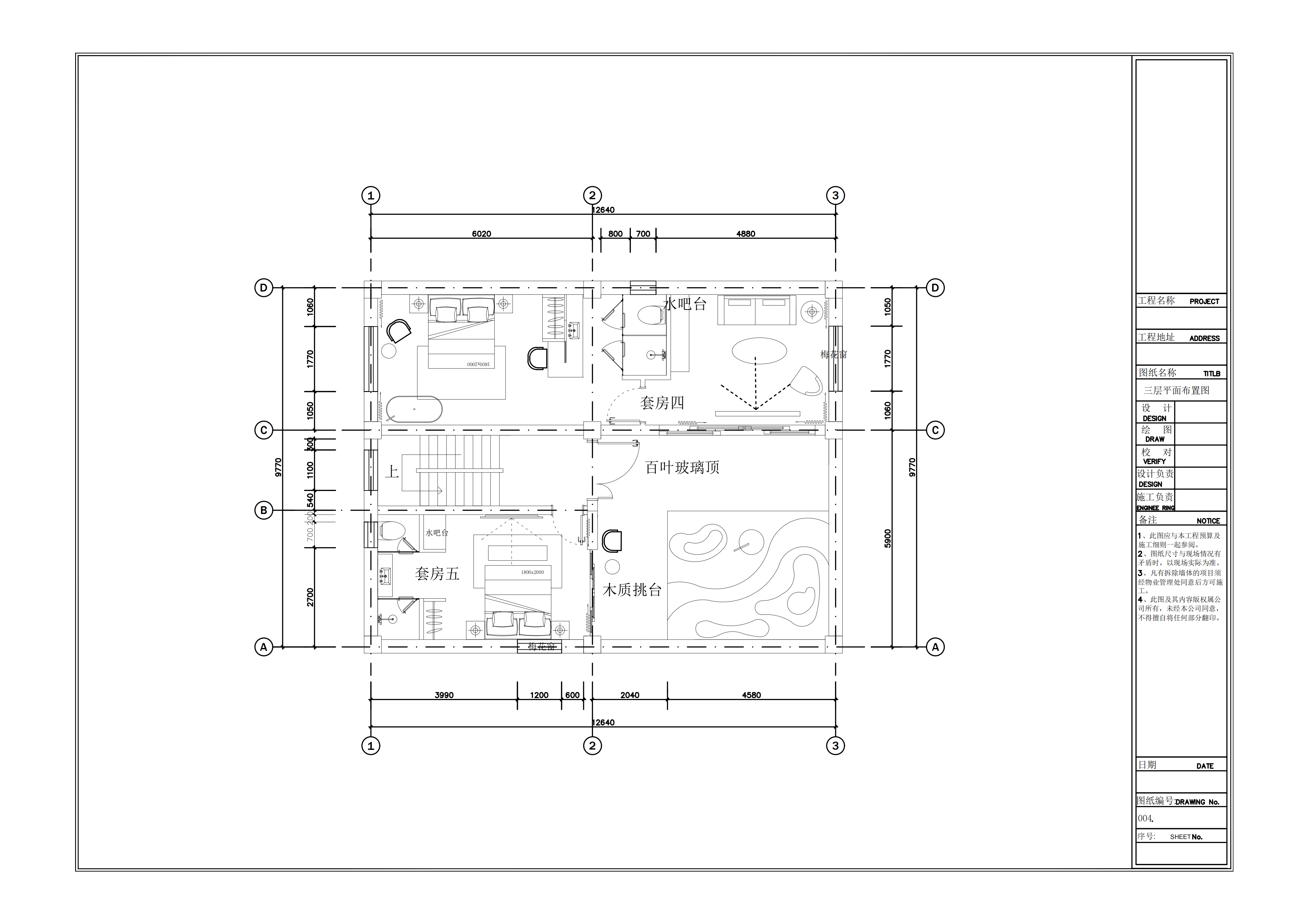
项目定位:本项目位于大理古城内、苍山脚下,总建筑面积约700平方米,以传统白族民居建筑为主体,兼顾自住与民宿运营双重功能。苍山的灵秀与古城的人文气息共同构成了项目的自然与文化基底,使空间从诞生之初便拥有独特的静谧气质与精神属性。
-
空间意境:设计以尊重地域文化与建筑原真性为前提,在保留白族民居特有的院落格局、土木结构与建筑符号的基础上,融入现代生活方式与审美语言,打造一处兼具文化底蕴与当代舒适体验的复合型空间。
-
空间布局:在功能布局上,项目不仅包含自住区域与民宿客房,还特别增设了一处位于苍山脚下的抄经房。抄经房以宁静、冥想与精神放松为核心功能,通过自然光线、原木陈设与极简空间氛围,营造出适合抄写经文、静坐与思考的精神场域。这一空间的加入,使项目在住宿与生活功能之外,延伸出更深层的文化体验与心灵关怀,为来访者提供远离喧嚣、回归内心的静谧之所。
-
设计选材:夯土、青石板、原木等本土材料被广泛运用,与简洁的现代线条、柔和的灯光设计及舒适的当代家具相互融合,使空间呈现出复古与现代并存、东方意境与时尚审美兼具的独特气质。
-
用户体验:整体设计通过留白、光影、自然材料与传统院落的组合,使室内外空间相互渗透,院落景观与苍山、古城环境融为一体,为居住者呈现出温暖、静谧而富有层次的居住氛围。本项目旨在打造一处既能感受大理文化魅力、体验现代舒适生活,又能在苍山脚下寻得心灵安宁的理想居所。
0
0

认证 · 让您身份增值