《星环》
139
作品说明
- 项目类型:住宅公寓
- 项目地点:重庆市
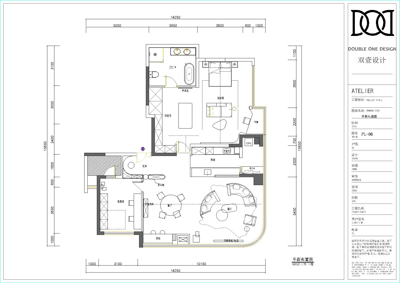
- 建筑面积:190㎡
- 项目造价:120万元
- 主案设计师: 汤会
- 竣工时间:2025.2.1
- 设计机构:重庆双壹设计
票数 : 0
-
项目定位:本项目以现代赛博朋克艺术轻奢为核心设计脉络,以“艺术为骨,轻奢为肤”为设计内核,将先锋的艺术审美与高端的轻奢质感相融合,通过曲线与直线的碰撞、金属与软质材料的对话、光影与空间的交织,打造出兼具视觉张力与居住舒适度的艺术化居所,打破传统家居的刻板印象,赋予空间独特的艺术灵魂与奢华体验。
-
空间意境:以黑白灰为基底,构建沉稳的空间基调,通过镜面反射效果放大空间视觉感,墙面结合肌理感石材、烤漆面板、亚克力与金属饰面相结合,塑造丰富的材质层次;金色金属质感作为核心点缀色,提升空间的奢华度与艺术感;局部融入墨绿、焦糖色等小众艺术色调,形成视觉焦点,让色彩在克制中迸发艺术张力。
-
空间布局:本案将原有布局拆分,根据居住者需求进行重新布局,将原有四个小空间改为一个大空间,采用开放式布局,以弧形落地窗柔化空间边界,引入自然光线的同时塑造流畅的空间线条。
-
设计选材:以“舒适与艺术共生”为设计原则,弧形床头背景墙搭配柔和的线性灯带,弱化空间的硬朗感;异形艺术休闲椅、流线型边几的置入,让卧室在满足睡眠功能的同时,兼具艺术观赏与休闲体验;深色木地板与浅色软包的搭配,平衡了空间的冷暖色调,营造出静谧又富艺术感的休憩氛围。
-
用户体验:整体设计通过艺术化的空间造型、材质表达与软装陈设,将现代轻奢的精致与先锋艺术的个性完美融合,打造出一个既符合现代高端居住需求,又充满艺术灵魂的理想居所。
0
0

认证 · 让您身份增值