深圳磐美迪办公室
188
作品说明
- 项目类型:办公
- 项目地点:深圳市
- 建筑面积:645㎡
- 项目造价:22万元
- 主案设计师: 方峻
- 竣工时间:2025.09
-
项目定位:"核心定位:以“科技·人文·可持续”为核心理念,将企业生物科技属性与品牌视觉符号转化为空间语言,打造激发创新、传递专业信任感的办公环境。
设计关联:
蓝色(科技):应用于主墙面、智能设备界面及企业文化展示区,强化科技感与理性形象;
白色(专业):作为空间基底色,用于实验室隔断、办公家具,凸显洁净与专业度;
橘色(希望):通过软装(座椅、艺术装置)局部点缀,象征创新活力与行业使命感"
-
空间意境:简约工业风+科技感细节,裸露管线喷蓝漆,结合发光玻璃隔断,呼应生物科技行业的前沿性与务实特质
-
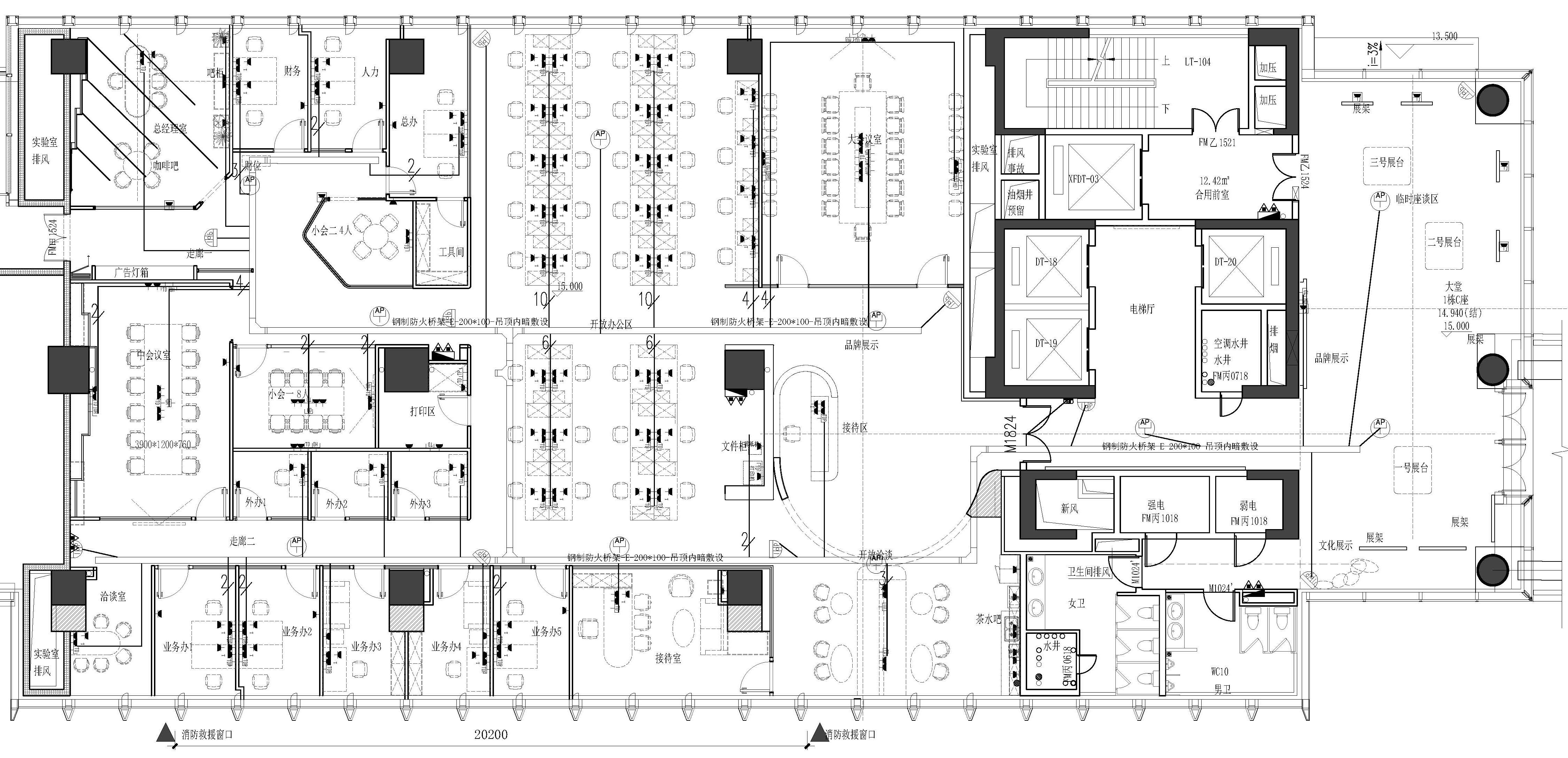
空间布局:"功能分区策略
研发协作区:开放式实验室与讨论岛台结合,玻璃隔断保证视觉通透性与安全规范;
创新孵化舱:模块化橘色卡座组合,支持灵活重组,满足跨部门脑暴会议。
动线优化
环形主动线连接研发、办公、休闲区,减少交叉干扰;智能导视系统嵌入蓝色光带引导。
生态融合
引入垂直绿墙与蓝白配色植物容器,净化空气的同时软化工业感"
-
设计选材:通过色彩叙事(蓝/白/橘)、Logo符号的空间转译、以及低碳材料与灵活布局的创新结合,为生物科技企业构建兼具专业严谨性与人文关怀的办公环境,既满足研发功能需求,亦通过设计传递“探索生命科学,守护人类希望”的品牌价值
-
用户体验:"专业效率提升:蓝白色调降低视觉疲劳,实验室-办公区短动线提升协作效率;
创新氛围激发:橘色焦点区域促进非正式交流,模块化设计适应团队快速增长。
可持续价值:
员工满意度调研显示,90%受访者认为自然光+绿植设计改善工作压力;
低碳材料与智能系统获LEED金级认证预评估,增强企业ESG形象"
0
0

认证 · 让您身份增值