-
项目定位:金箔的灵感来自于终南山下古观音禅寺的银杏树,千年光阴成就的金色光芒,通过空间中六万片金箔所转译,当阳光划过,金箔投射出流动、变化的光影,我们以自己的方式隐喻了千年银杏古树的生命力,与窗外的“生命之树”产生对话。
-
空间意境:由郭莘空间设计工作室设计的晓·茶馆位于商业综合体一栋建筑的顶层,由于错叠的关系,中心商场的屋顶花园天然地成为项目的“户外庭院”,环绕屋顶花园的商业空间相对较少,植物繁茂,原场地层高较高,南面和西面有着通透的视野,当视线望向南边,那一棵由古观音禅寺的银杏树转译而来的“生命之树”,带给我们的不仅是风景,更是项目的设计灵感来源。
项目所在建筑的玻璃幕墙并非垂直界面,而是带有一定折角的内退,且开辟出两个出入口。设计将内退区的出入口作为主门,希望弱化场地的领域感,以谦和内敛的姿态迎接客人。 -
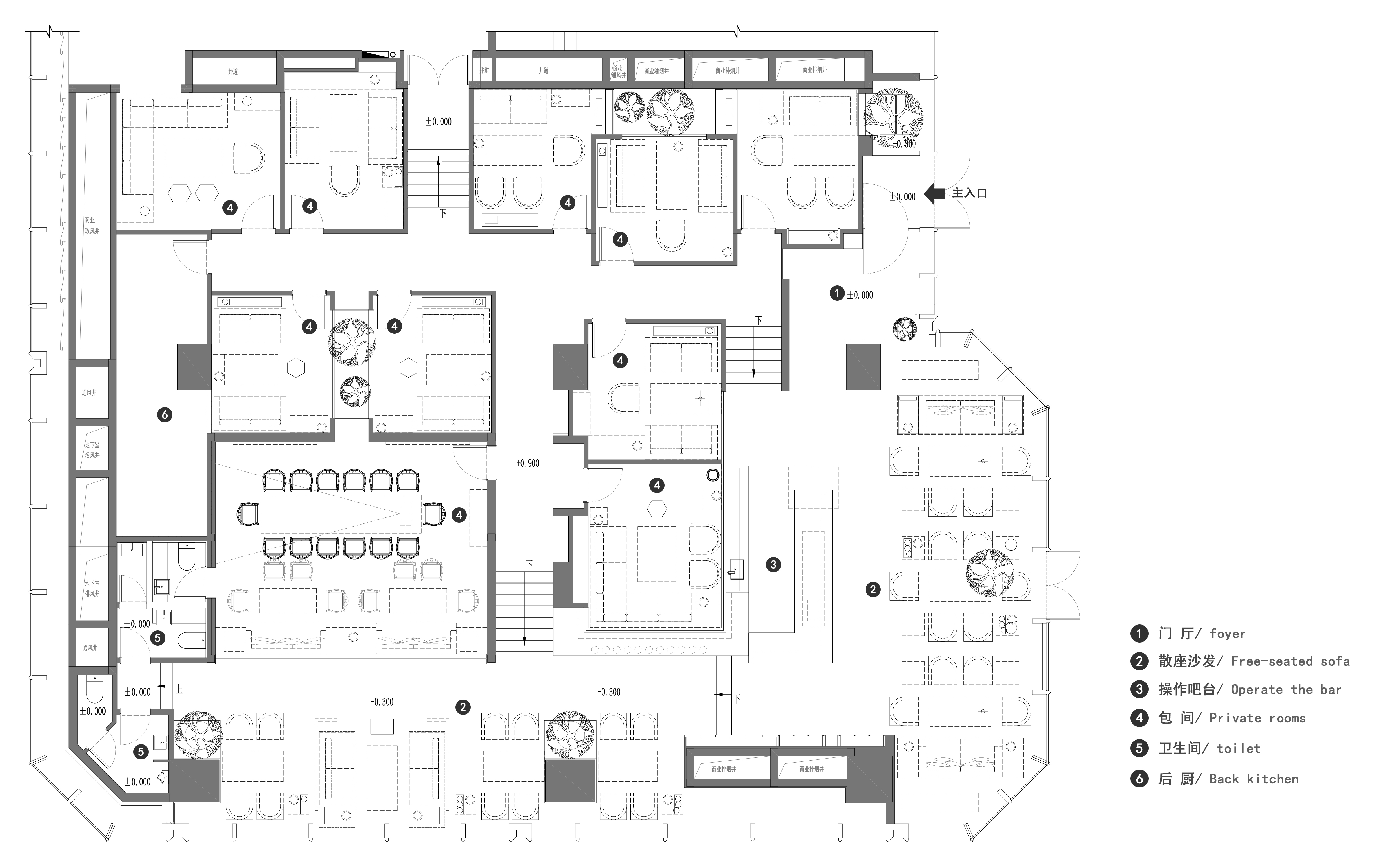
空间布局:晓·茶馆定位为轻商务接待,有相对私密的包间需求。场地层高超过9米,但不允许加建,通高的玻璃立面虽然带来充足的自然光和开阔的视野,但只有西、南两面的L型采光,结合品牌定位和商务运营的诉求,如何规划包间和散座两个大的功能分区,是首要解决的问题。
首先,利用层高优势,设计将场地的北侧和东侧暗部区域部分抬高,通过高低差将空间划分出两个大的区域,形成北高南低的总体趋势,并由此将视线引向南侧开阔的景观视野。
传统商业空间会把采光较好的位置留给包间的私域客户,在晓·茶馆项目中,我们反其道而行,将7个散座分布在空间的西、南采光面,10个包间位列在抬高区域,通过楼梯和三段走廊的串联形成洄游的行走动线和不断变化的观看视角,茂密的植被环绕在空间各处,形成既遮蔽又引导的“端景”,营造出东方园林的探索趣味。
晓·茶馆投入使用后,常常出现等位的情况,并且吸引了年轻客群来到散座区喝茶、拍照打卡。作为设计师,“意外走红”的现象,是对我们把最好的位置“让出来”这个设计策略,一个极具积极意义的正向回馈,也实现了工作室一直以来的设计实践所坚持的初衷:设计与商业价值的正向循环。
为了解决包间的采光问题,我们采用内建筑的做法,构建出“屋中屋”的结构体块,通过一定比例的横窗实现了包间的“间接”采光,产生与室内、室外的链接,这样一来,坐在包间里的客人与靠近窗边的客人都能享受到阳光和自然景观,只是视线的落位不同而已。
同时,为了避免包间与散座的客人视线交汇,面向西侧散座区的包间,我们有意在“屋中屋”的窗下延伸出带弧度的飘檐,飘檐的弧度、高度均经过精准测算。 -
设计选材:金砖、木地板、灰色麻石、木饰面、金箔、乳胶漆
-
用户体验:在与生命之树的对望中,氤氲着茶香的晓·茶馆,既开阔明净,又宁静雅致,随四季变换,盈盈独立,迎接风的吹拂,捕捉光的流动。
0
0

认证 · 让您身份增值
124