-
项目定位:以 “理性与温度共生,科技与自然交融” 为核心立意,聚焦科研人员的实际需求与精神追求。设计既尊重科研工作者严谨、理性的思维特质,通过规整的空间布局、简洁的线条语言呼应其逻辑化的思考模式;又深刻理解科研过程中对放松、灵感的诉求,融入自然元素与温暖质感,让空间成为平衡工作压力与思维创新的 “精神栖息地”,实现 “在理性中沉淀,在温度中迸发灵感” 的空间价值。
-
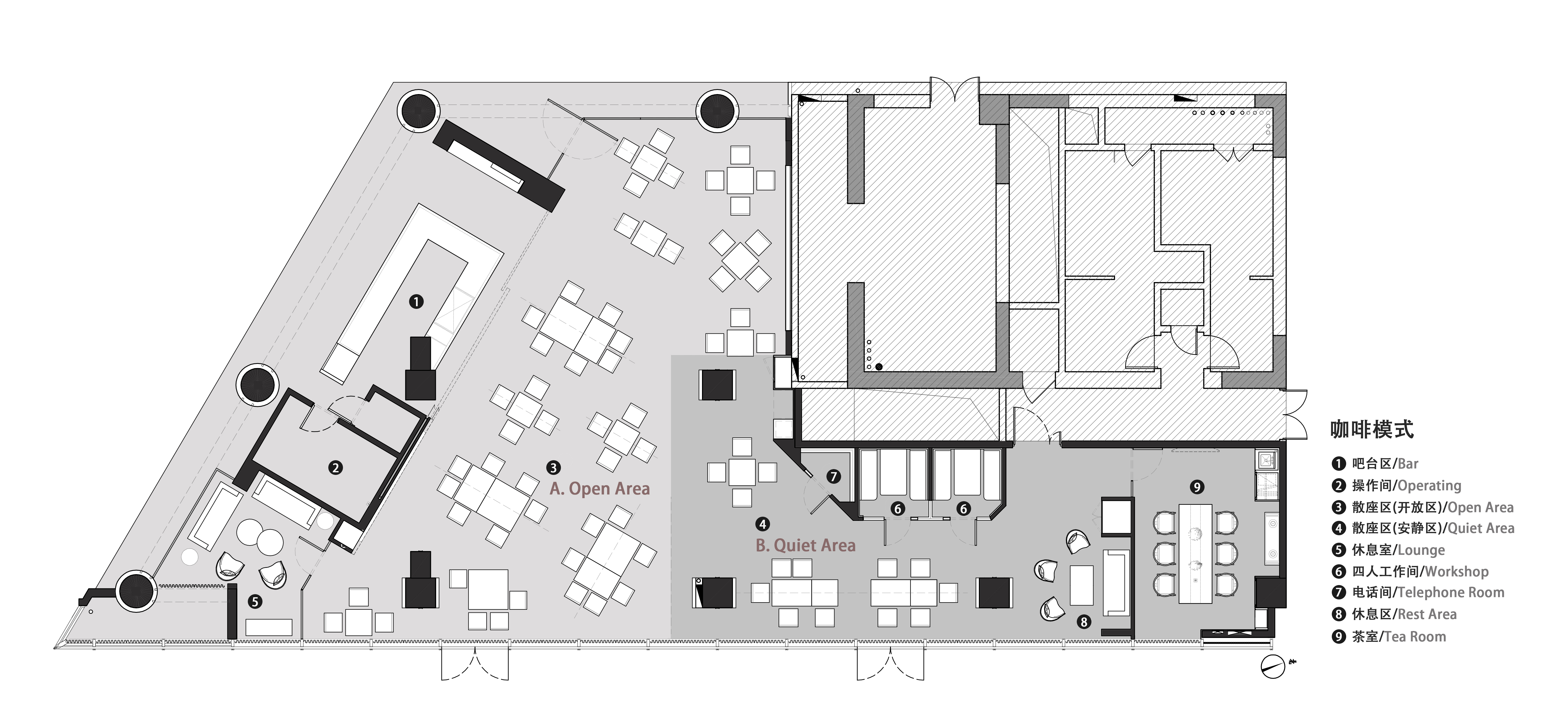
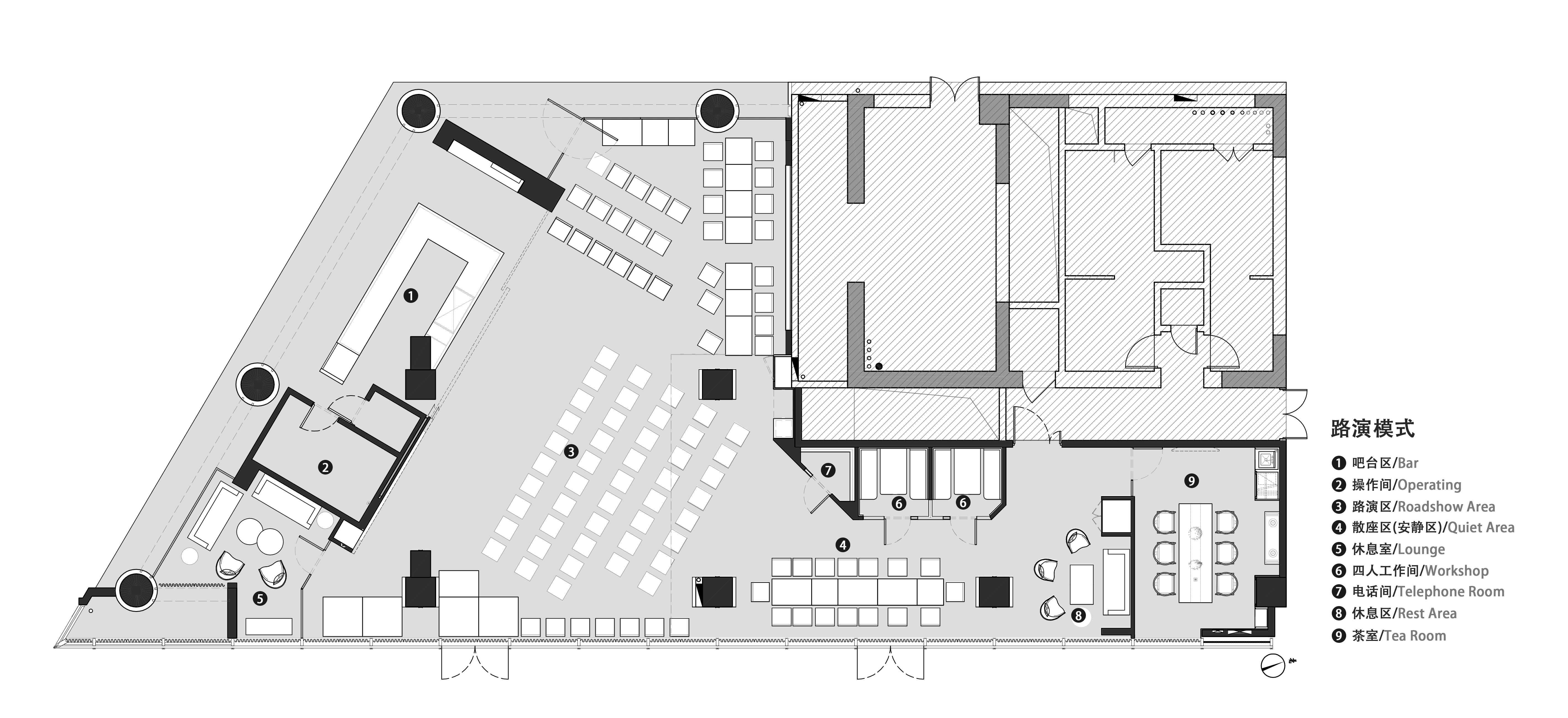
空间意境:空间功能分区:基于人员的使用场景,将空间划分为 OPEN AREA(开放交流区)与 QUIET AREA(静谧休憩区)两大核心区域。开放交流区设置灵活组合的桌椅、互动展示墙,满足小组研讨、学术分享、团队协作等需求;静谧休憩区则以舒适的沙发、柔和的灯光营造宁静氛围,适配独处思考、短暂放松、轻量阅读等场景,实现功能与场景的精准匹配。
-
空间布局:打破传统休闲空间单一化的布局模式,基于科研人员 “交流” 与 “休憩” 的双重需求,精准划分开放与静谧两大功能区,且通过灵活的动线设计实现两区的自然过渡。开放区域可根据使用需求调整桌椅组合形式,适配 2-20 人的不同规模交流场景;静谧区域则以模块化软装组合,提供独处、双人交流等多元休憩场景,实现 “一站式” 满足科研人员的多元化需求。
-
设计选材:地面材质:浅灰色哑光防滑瓷砖 + 局部实木地板
墙面材质:环保乳胶漆 + 原木饰面板 + 局部磨砂玻璃
顶面材质:轻钢龙骨 + 石膏板 + 铝格栅
软装材质:棉麻质感布艺、真皮、胡桃木实木、金属(拉丝工艺)
其他:Low-E 中空玻璃、智能照明系统、环保胶粘剂 -
用户体验:探索了办公空间内休闲功能区的设计新范式,为同类型 “行业专属休闲空间” 的设计提供了可借鉴的案例。通过 “功能精准适配 + 风格质感平衡 + 人性化细节落地” 的设计逻辑,证明了休闲空间可以同时兼具实用性、审美性与行业属性,为现代办公空间的多元化发展提供了新的思路。
0
0

认证 · 让您身份增值
114