-
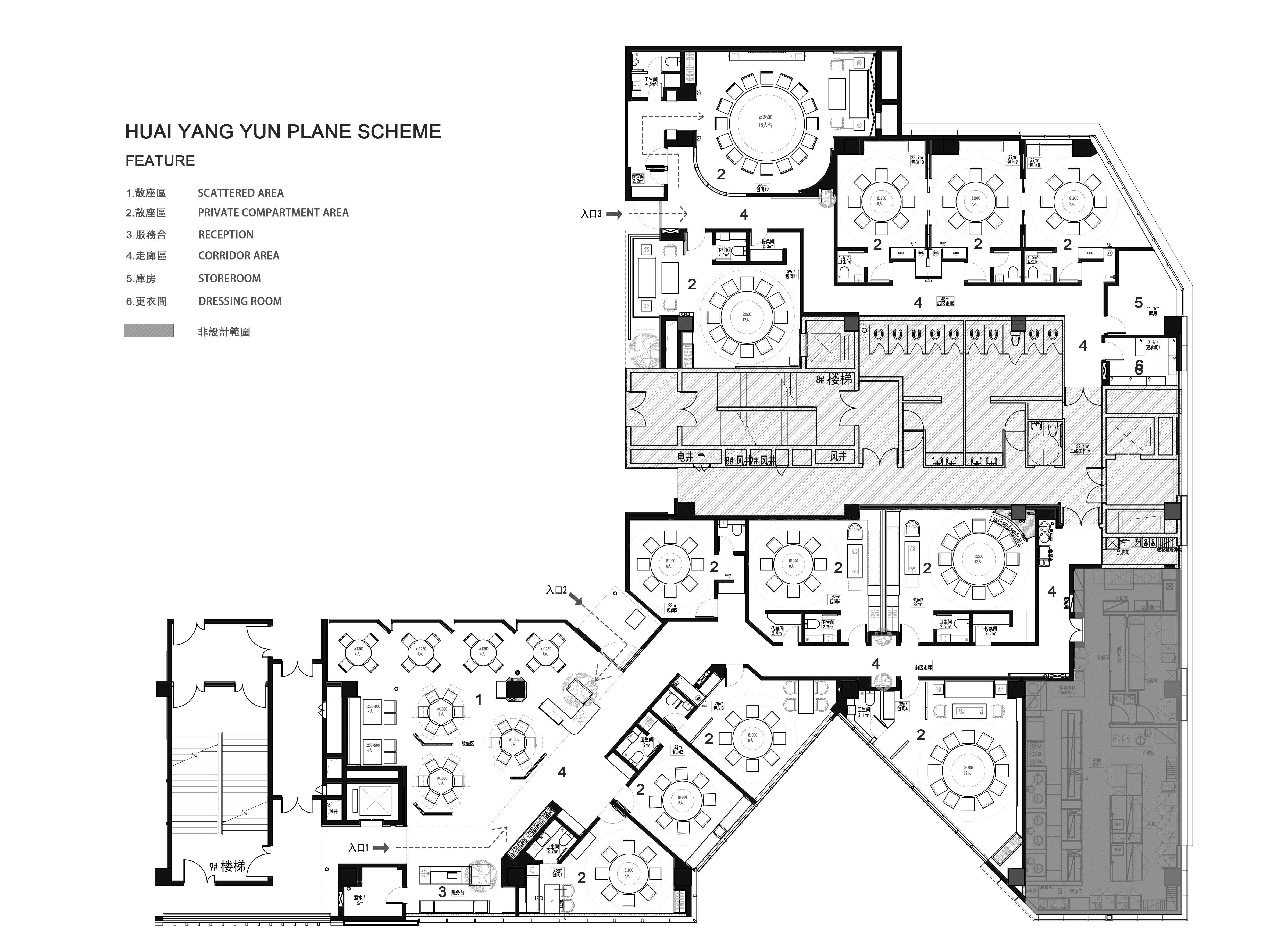
项目定位:淮扬菜作为开国第一宴,以其清新淡雅的特色闻名,这与设计的本质非常相似。从烹饪的角度来看,淮扬菜注重原材料的选用和刀工技巧,讲究火候,最终达到色、香、味、形的完美结合。这与设计的核心理念相契合,即抛弃浮华,回归质朴,以呈现优雅的江南情调,而非繁复的装饰。空间的感受未必依赖青砖黛瓦才能体现江南风韵,也未必是窗花木格才能诠释中式的清秀与优雅。
-
空间意境:我们在设计中,将江南建筑路面的青条石装饰在墙上,用蓝色弧形的顶面模仿徽派建筑在蓝天下的剪影,白色墙面则映射出江南的一抹干净纯粹。一抹白上的蓝,正是我们对淮扬菜所蕴含的清新雅致的理解,展现了我们对其文化内涵的深刻解读。通过这些设计元素,我们不仅传达了江南的美感,还体现了淮扬菜的精髓,创造出一个兼具文化与美学的空间。
-
空间布局:为了更好地诠释这一理念,我们在材料选择上,特别注重质感和色彩的搭配。青条石的冷峻与白墙的纯净形成鲜明对比,蓝色弧顶的柔和曲线则为整体空间增添了一丝灵动。每一个细节都精心设计,以便在视觉和触觉上给人带来共鸣和愉悦。
-
设计选材:蓝色艺术漆、白色乳胶漆、瓷砖、青古铜不锈钢、漆画
-
用户体验:在这个空间里,顾客不仅可以感受到江南的优雅与宁静,还能体会到淮扬菜背后的精致与讲究。无论是食材的选择还是烹饪的过程,都如同我们对设计的追求:简洁而不简单,质朴而不平凡。我们希望通过这种空间设计,能让顾客在品味美食的同时,也能感受到一种深厚的文化底蕴和美学享受。
0
0

认证 · 让您身份增值
105