归心之名,生活丰盈
207
作品说明
- 项目类型:别墅
- 项目地点:临海市
- 建筑面积:1200㎡
- 项目造价:800万元
- 主案设计师: 王锐
- 参与设计师:王锐
- 竣工时间:2025.11.30
- 设计机构:王锐设计工作室
-
项目定位:
“意式奢华从不是物质的堆砌,
而是让每一个自然造物与现代工业的碰撞,
成为居住者与空间建立情感联结的触点。”
-
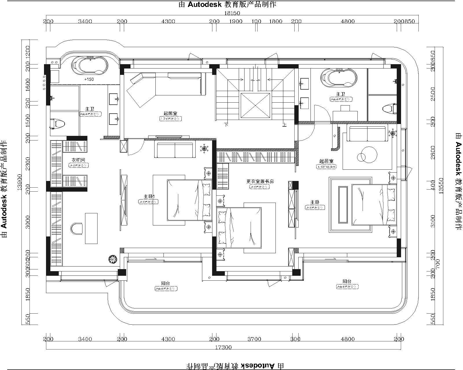
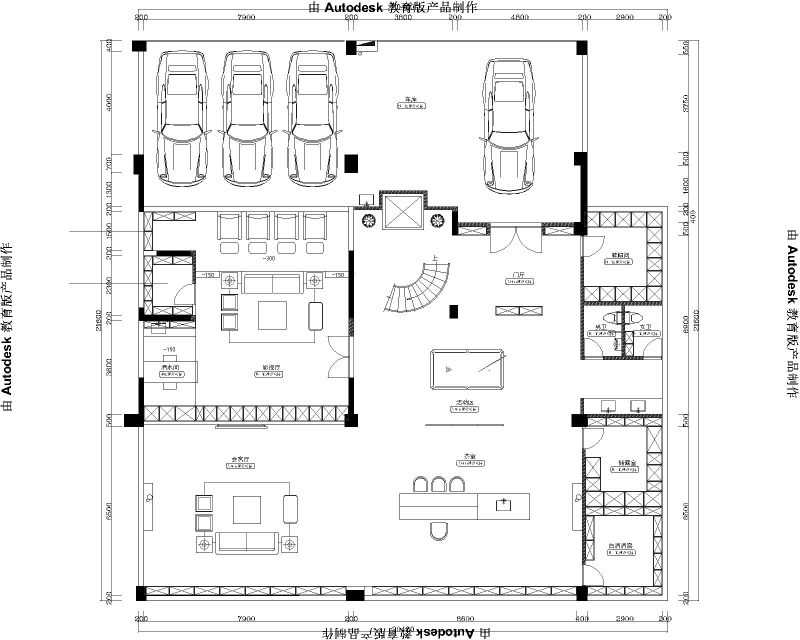
空间意境:一层空间作为家庭社交中枢,石材的选择注重其天然的纹理和质感,纹理如水墨恣意流淌,水墨丹青,绿意盎然,打造了兼具仪式感与舒适度的理想居所。
奢石的搭配选择,其细腻的纹理如同山水画卷般自然展开,为空间奠定了大气而典雅的基调。
-
空间布局:融会贯通式呈现空间布局,材质与器物的甄选考量,尺度的朗阔,格局的舒展,物与物的有序华美给人以至臻怡人的感受。
在这里,无论是独坐品茗或是好友待客,流动的光影与交叠的材质肌理,皆在虚实相生中编织都市生活的诗意叙事。
除了会客厅、餐厅等共享空间和卧室外,设计师还利用充足的空间规划生活起居独立区域,分别为家中每一个人都开辟了一块独属于自己的精神栖居所。
-
设计选材:设计师希望在公共空间中,保留对于精致生活方式的追求,同时减少显性奢华要素的堆砌,以居住者视角去扩大空间场景的可能性,让审美投射成为日常生活的一部分。
多元社交区域之间既相互渗透又彼此独立,动静相宜。丰富多彩的综合生活场景均由“自我定义”,或许这才是丰盈生活的真正含义。
卧室空间延续中性色系,素雅极简呈现自然脉络,通过设计要素与软装材质的变化,从而营造柔和与包裹感,让奢与雅并存。
-
用户体验:多元社交区域之间既相互渗透又彼此独立,动静相宜。丰富多彩的综合生活场景均由“自我定义”,或许这才是丰盈生活的真正含义。
非常满意空间工艺的细节,精致的线条蜿蜒伸展,流淌着匠人的巧思,隐喻“归家即开启艺术之旅”。
0
0

认证 · 让您身份增值