云境长风
6127
作品说明
- 项目类型:私宅
- 项目地点:宜昌市
- 建筑面积:380㎡
- 项目造价:120万元
- 主案设计师: 李波
- 参与设计师:李波
- 竣工时间:2025年7月
- 设计机构:上海坤曌建筑装饰设计有限公司
票数 : 3933
-
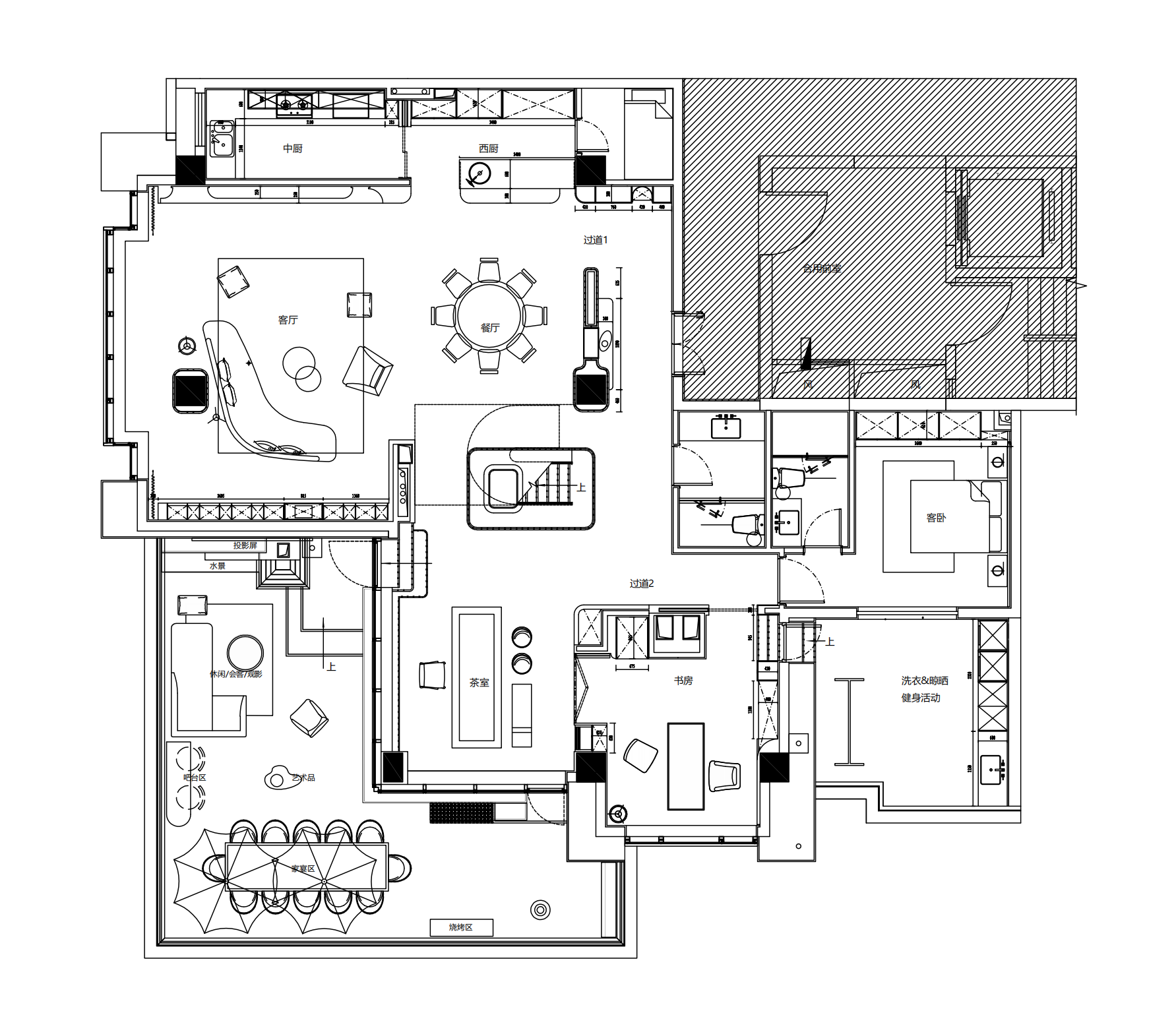
项目定位:本案定位中高端豪宅系列,顶楼复式结构
-
空间意境:本次设计以轻奢摩登都市为主导风格,旨在打造一个舒适、宽敞且充满现代气息的居住空间。通过奢华的线条和高品质的材料,结合现代智能家居系统,实现功能性与美观性的完美结合。
-
空间布局:设计重点:入户设有全钢化智能防盗门,具有指纹,密码,人脸识别等安防功能。宽敞明亮的入口,使用大理石地面和护墙木饰面装饰墙,设置独立的优美独特的玄关雕塑造景,使回家成为一种享受和期待。
-
设计选材:本案主要以低碳环保的材料为主,只要有少量环保板材和再生石材等。
-
用户体验:客户目前已经入住,体验非常满意,舒适度很高,智能效果很方便,实用。整体风格低调奢华,沉稳大气。合理的空间布局、高品质的材料以及先进的华为鸿蒙智能家居系统,打造了一个既功能齐全又美观舒适的高端私宅复式大平层居住空间,满足居住者对品质生活的追求。
1
1

认证 · 让您身份增值