致简|设计向简,生活为真
3 - 项目类型:住宅公寓
- 项目地点:秦皇岛市
- 建筑面积:267㎡
- 项目造价:100万元
- 主案设计师: 马原
- 竣工时间:2024
- 设计机构:璞筑设计
-
项目定位:淡雅色调的现代简约,是对品质生活的完美诠释。让人在繁忙与喧嚣之外,找到一片属于自己的宁静与雅致。
-
空间意境:下跃空间照明设计用弧形吊顶轨道灯相结合。1-2楼通过营造露台的方式增加互动性。
-
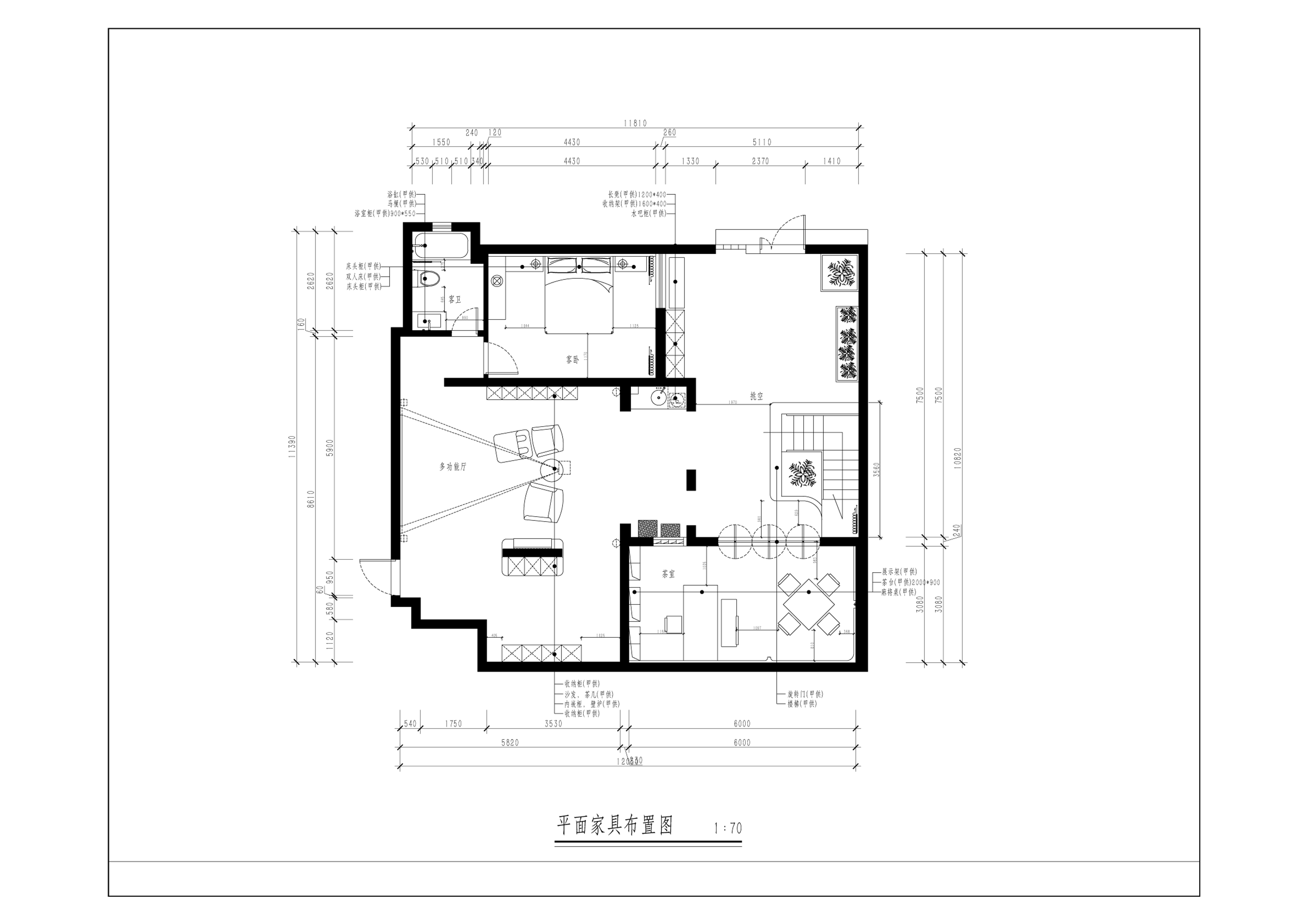
空间布局:下跃空间独立影音室。会客空间用中轴旋转门做空间开与合的转换。厨房与书房也采用这种方式处理。模糊空间之间的界限。
-
设计选材:6.3米高的下跃空间墙面传统方式用贴砖活干挂石材。本案在原建筑结构的干挂石材基础上直接用墙板处理,节约拆除原墙石材的工序,减少装修垃圾排放。集成墙板造价优于贴砖和粉刷,木纹的饰面视觉效果也和设计风格更贴切
-
用户体验:对设计和施工都很满意,后续又服务用户推荐的朋友。
3功能卫生间
简洁婉约,独具风致和格调
淡雅色调的现代简约,是对品质生活的完美诠释。让人在繁忙与喧嚣之外,找到一片属于自己的宁静与雅致。
下跃影音会客娱乐空间打造侘寂极简的风,沉浸式的视听体验,享受电影和音乐带来的震撼。感受家庭与影院的完美结合!
茶室娱乐空间,会客时转动中轴旋转门增加隐私性。在繁忙的生活中,沏一壶好茶,品味宁静与惬意。
中轴旋转门与挑空空间形成互动。
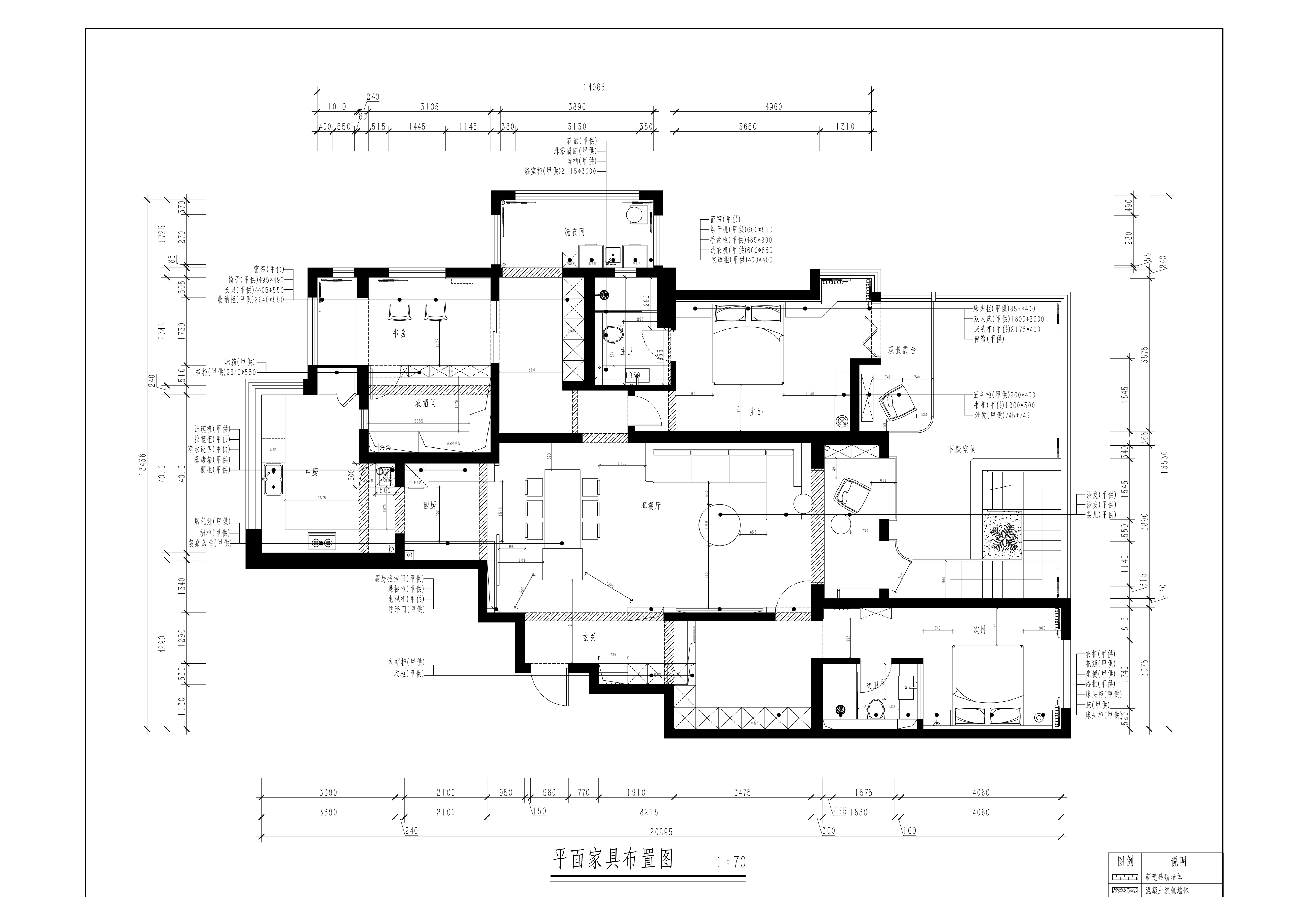
在私密空间的打造上,设计师更加注重生活仪式感的引入,以及营造舒适的居住体验。床头背景墙采用定制的硬包和木饰面,打造沉稳、质朴的格调。
入户门正对做餐岛一体设计,兼顾使用与美观
卫生间墙板隐门
半开放式的书房区域,有相对独立的空间,木质元素的书桌,散发着醇厚的气息。书桌面对窗外自然景观,学习阅读间眺望远方放松眼睛。给人一种松弛、舒适的空间布局。
主卧做了延伸的外露台。丰富立面结构同时增加与下跃空间的互动性
用最合适的物件,建造最松弛的居所。每一种材质的选择、每一个线条的把握、每一种功能的设计、每一种颜色的搭配,都堪称精美绝伦。
玄关收纳柜与墙板同材质形成玄关空间的围合感。
下跃空间,作为上下空间连接的动线中心展示和互动的功能性,基础设备功能完善(空调,新风,净水系统,水暖系统)。收纳空间充足,便于日常使用维护。
餐厅与厨房做开合式设计,通过玻璃移门变化空间尺度。关闭玻璃移门为餐厅背景,打开玻璃移门为开放式厨房的西厨空间,玻璃移门形成开放格的柜门部分。
次卧室门隐形设计与电视背景融合一体增加空间感。
1楼主要起居室。主次卧都有独立卫生间和独立衣帽间。原楼梯改到下跃空间。
下跃空间为主要活动空间。封闭下跃空间到室内,预留客房。茶室和影音室作为主要娱乐空间使用。
0
0

认证 · 让您身份增值