唐山市唐城壹零壹小区
13
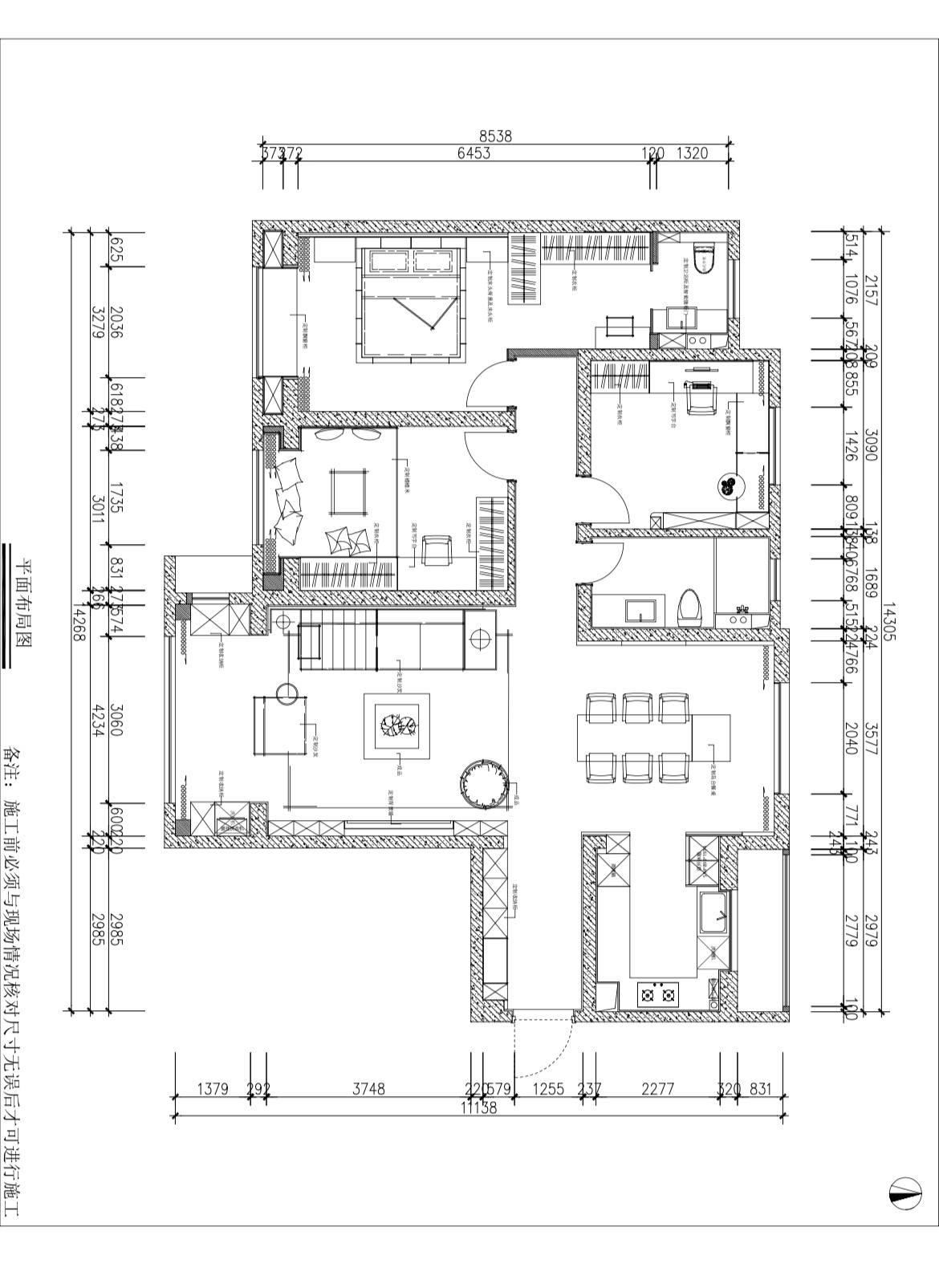
作品说明
- 项目类型:住宅公寓
- 项目地点:唐山市
- 建筑面积:165㎡
- 项目造价:80万元
- 竣工时间:2025.9.1
-
项目定位:本空间以意式极简的设计为核心定位,融合简约线条与高级质感材质,通过合理的色彩配合/无主灯设计和细节灯光勾勒层次/每一处空间的极致运用,实现功能与美学的极致平衡。
-
空间意境:既保留意式极简的通透感又实现多元生活场景的无缝切换/丰富的视觉与触觉层次/“见光不见灯”的模式勾勒空间轮廓/跳出经典黑白灰,低饱和度的色彩柔化冷硬感。
-
空间布局:开放式洄游动线布局/功能区一体化整合/LDOS一体化设计/非对称式布局平衡/留白与填充的精准把控。
-
设计选材:环保再生材质的高性价比运用/天然石材的轻量化切割/模块化环保板材的循环利用/低能耗软装材料的精准选配。
-
用户体验:居住后体验:日常生活舒适感满满,空间无一浪费且毫无彰显杂乱,在实用性和灵活性上整体简直“天花板”级别,简约而不简单,对设计专业性的认可拉满。
0
0

认证 · 让您身份增值