-
项目定位:该项目主打国宴第一菜系淮扬菜,业主希望将原本的淮扬韵连锁品牌升级为高端淮扬韵蓝钻店,更好的服务不同需求的客户,且要保持原有淮扬韵的一些经典元素。
-
空间意境:餐厅坐落于西安市凤城七路的街面铺位,周边少有商务宴请配套餐厅,定位高端和高标准淮扬菜的餐厅少之又少,这些都是商业本身的优势。有单独的电梯直通餐厅,淮扬韵精致的门头LOGO虽然不大,但总能吸引客人停止脚步进入餐厅,享受设计带来的氛围以及中国第一宴“淮扬菜”给予的口感。
-
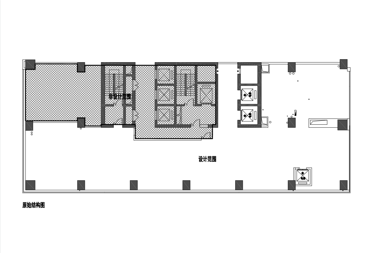
空间布局:餐厅原有结构呈现L型的布局;室内层高很高有充足的采光空间。但进入餐厅有多个入口,室内动线较多,公区较少,这些都是场地原有缺陷。厨房设置到餐厅的尾部,所以送餐通道和客流通道避免不了有所重合。本身并不大的公区如何提升品质感;又如何很好地避开多动线的交合;如何利用设计保留原有优势抵消缺陷?这些是最开始的问题。
首先,分析两个入口的使用频率。主入口设计了曲面千里江山玻璃造型墙,光影将图案映射到金砖地面,形成水面般的倒影,也成为了本次设计的一个最大亮点。曲面LOGO墙的运用,不仅有效的将公区视觉放大,也有效阻断了公区一眼望到头的弊端。次入口同样利用曲面的白色乳胶漆造型作为导引,太湖石造景与竹影的飘动,有种进入江南园林的感觉。两个不同的入口将客人导引到相同的中心,视觉的层级转折将原本不大的空间显得幽静而层叠。
一般设计中,卫生间入口要做隐蔽处理,但因本次设计空间的局限性,我们无法避免卫生间门直对公区的问题。所以通过地面的高差、太湖石的嵌入、立面的竹影、以及悬挂的白色山墙,将原直对公区的卫生间入口,隐到层叠的关系之后。透过白色墙面的开口,又可以看到竹林的另一侧,让空间变得小而有趣。
-
设计选材:相对常规材料而言,寻找太湖石这种有要求的装饰材料,可遇不可求。在当地市场寻找多时,最后是在一辆卸货的运输车里一眼相中了这块太湖石,八个人将它抬至室内。当然还需考虑承重是否满足。这块石头天然的孔洞成为了自然的植物种植池,俏头也形成了它自有的气质,一切都是那么刚刚好。
金砖最早运用在故宫的地面铺设中,它带着古朴且精致的风格在本次设计中画龙点睛。本次设计用材为黑灰色木、蓝绿色壁布以及金砖,着重强调“蓝钻店”的优雅尊贵与典雅色彩。千里江山图的运用也更加突显了淮扬韵高端店的品质,将文化与材质搭配完美融合进本次设计。 -
用户体验:空间的大小无法决定空间的好坏,而是在本就局促的空间内,书写不同角度的视觉和感受,才是我们需要提炼的。就像王家卫电影一样,认真的去感受,就能发现其中的美,设计也是一样。
0
0

认证 · 让您身份增值
177