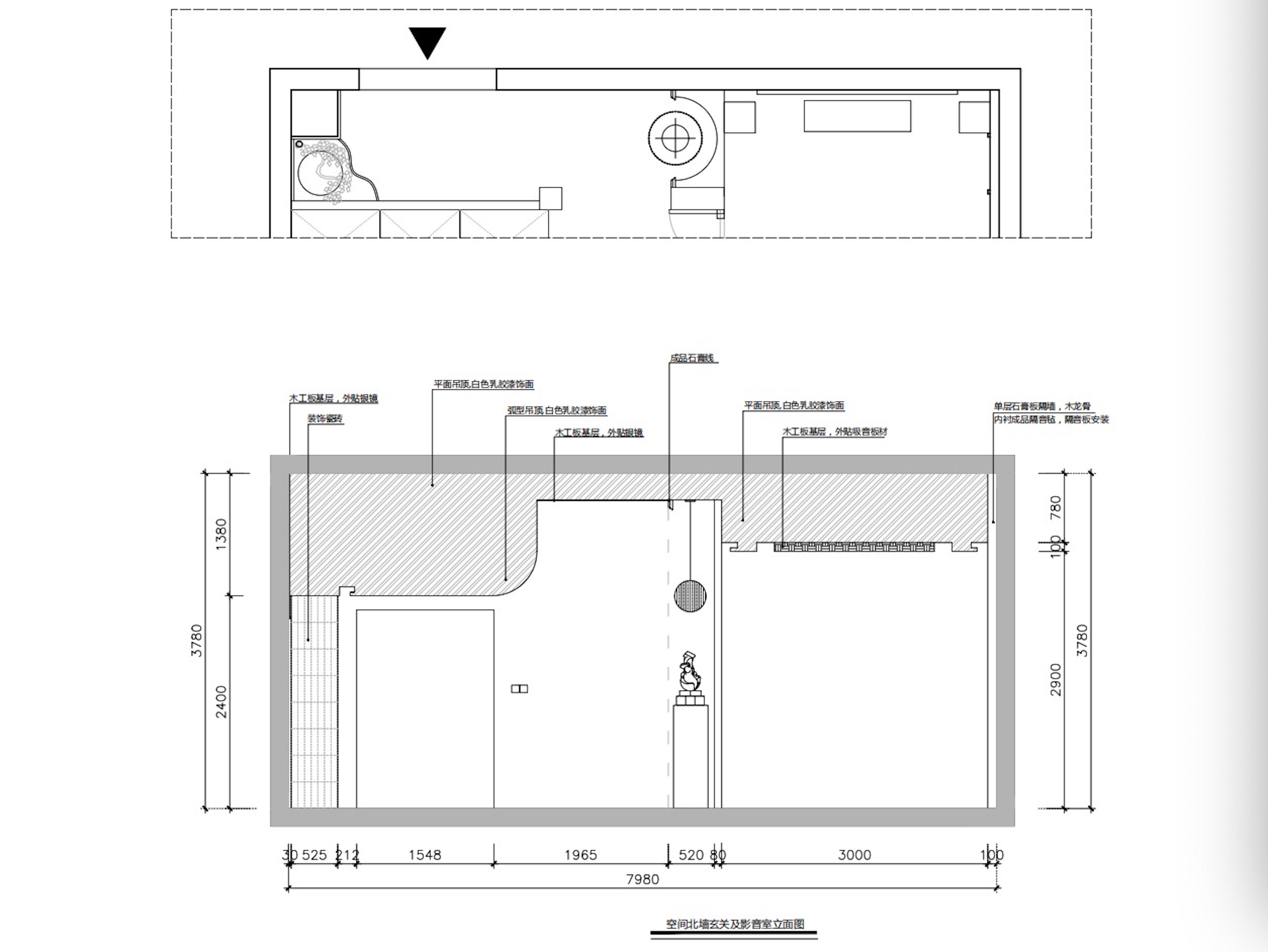
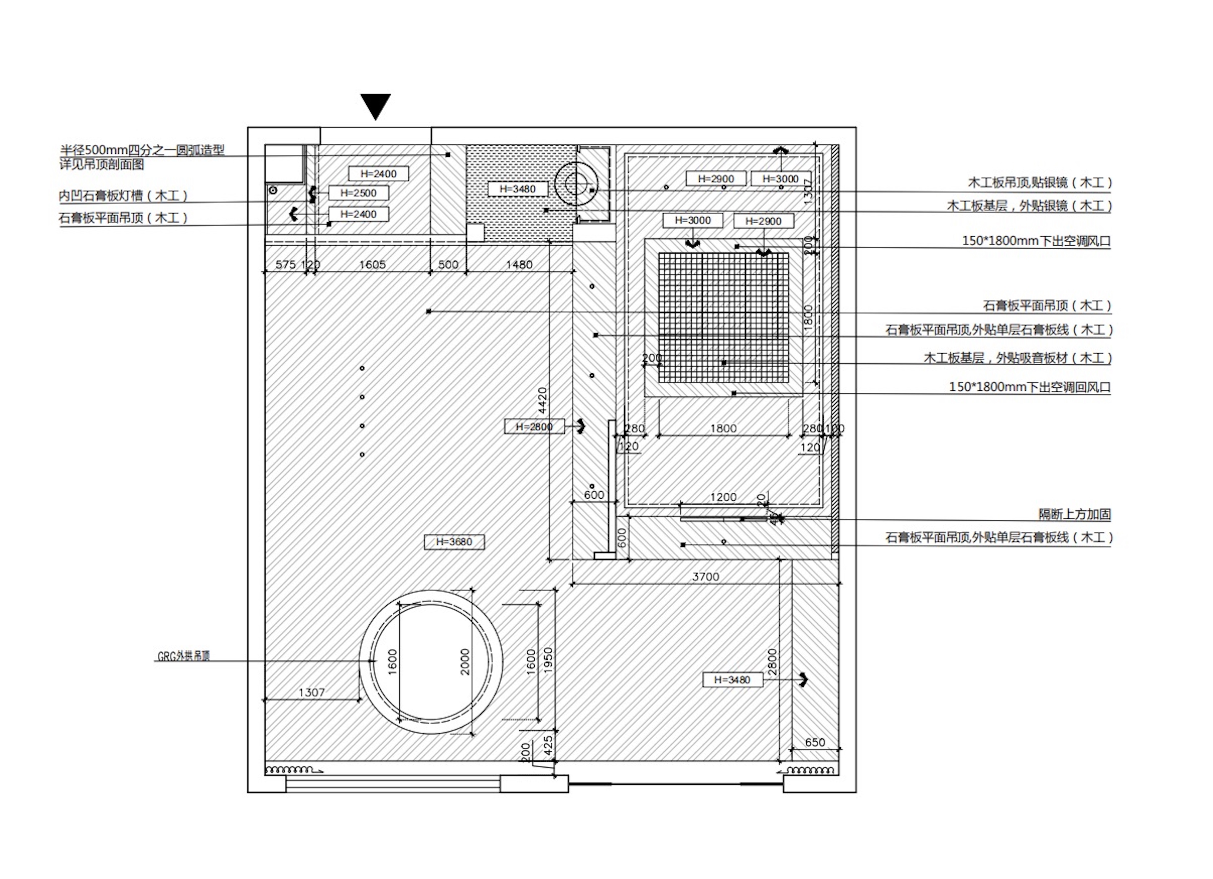
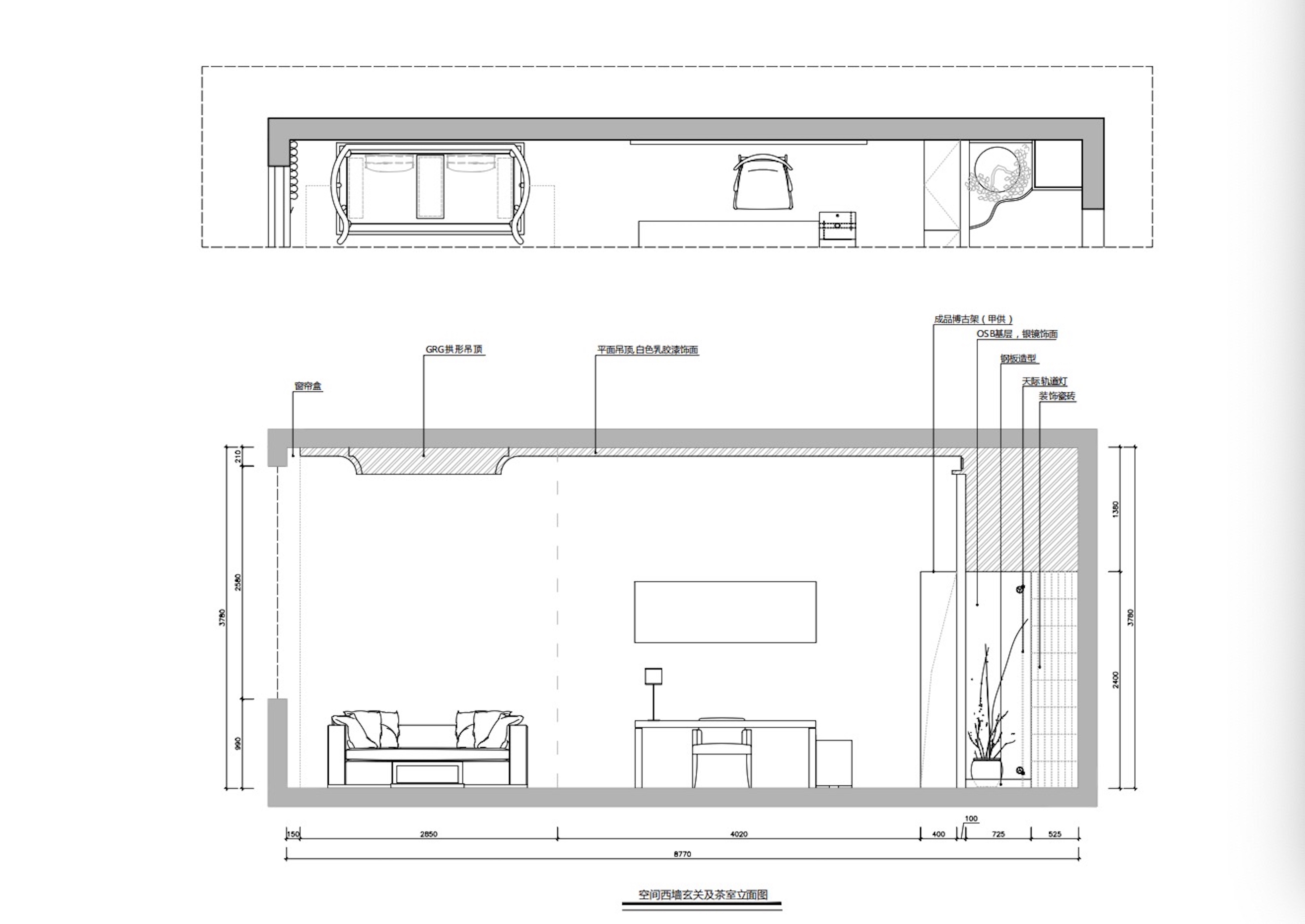
丝竹里
3
作品说明
- 项目类型:住宅公寓
- 项目地点:济南市
- 建筑面积:200㎡
- 项目造价:60万元
- 主案设计师: 李李
- 参与设计师:李李
- 竣工时间:2025.9
-
项目定位:设计专属视觉/体验细节,植入受众偏好的情感触点。
-
空间意境:跳出单一视觉设计,叠加气味、音效、触感装置(如不同材质的地面肌理、与场景匹配的香氛),打造多维度感官记忆点。
-
空间布局:采用可移动隔断、折叠家具等灵活结构,让同一空间适配作品不同展示阶段的需求,兼顾实用性与新鲜感。
-
设计选材:提取场地周边的文化符号(如老建筑纹样、本土植物形态),融入空间材质、色彩与装置设计,避免直白堆砌,形成低调的专属风格。
-
用户体验:能感受到细节里的用心,连空气里的味道都和场景搭,还有可变换的展区布局,每次来都有新体验!
0
0

认证 · 让您身份增值