HV全空气五恒展厅 | 洄游
11
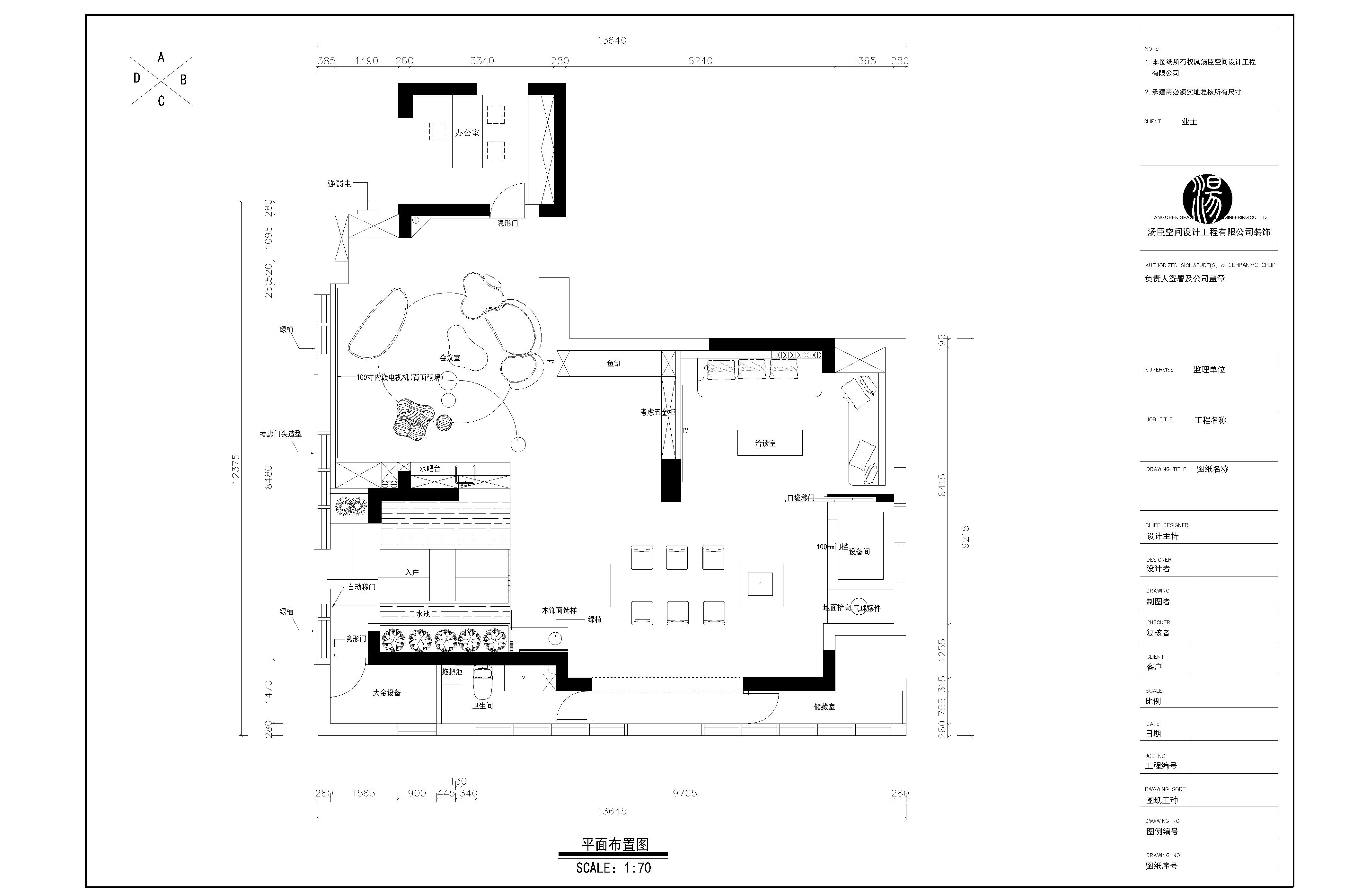
作品说明
- 项目类型:展示
- 项目地点:湖州市
- 建筑面积:152㎡
- 项目造价:80万元
- 主案设计师: 蒋思佳
- 参与设计师:苏远芳
- 竣工时间:2025年4月12日
- 设计机构:长兴汤臣装饰
-
项目定位:本案为高端人居品牌工装展厅,以“基因归巢”为核心理念,将候鸟南飞、鲸群洄游的生物本能,转化为当代空间的精神锚地。通过意式极简美学与智能环境科技的融合,构建一处23℃恒温体感、情感共鸣的沉浸式体验场域。
-
空间意境:1. 自然坐标的现代转译
- 基底营造 :水镜灰调岩板地面凝滞如潮汐,奠定永恒静谧的意式岸滩气质。天花线性光带如精准罗盘,穿越季节界限,导向温暖核心。
- 有机脉络 :胡桃木年轮肌理延展于立面与家具,形成牵引动线的“地磁经纬”,为极简空间注入生命温度。
2. 光影与呼吸的生态拟态
- 光之潮汐 :定制照明系统模拟深海光鲷群动态,可调节光点“咬碎”冰冷感,在素净墙面投射含氧的律动。
- 隐形生命系统 :隐藏式HVAC系统维持23℃恒温恒湿,气流如脐带洋流般柔和漫溯,赋予空间“陆生新鳃”的呼吸自由。
-
空间布局:生物庇护形态的构筑
- 屿台悬浮 :核心展区以抬升结构模拟浮岛,绿植垂蔓如归途记忆的锚链,艺术装置化烟为锚,定泊静谧。
- 羊膜包裹 :弧形曲面墙体围合休憩区,流线型沙发如月囊沉降,低频光环境与柔软材质共塑“恒静脐宫”的沉浸包裹。 -
设计选材:剥离冗余,以岩、木、金属的精密比例与灰调色谱构建永恒基底;同时注入生物灵感与智能科技,在理性框架中安放人类对归属与温感的原始渴望。这里不仅是产品陈列场,更是一座以精准设计语言与前沿技术锚定的“恒暖归巢”,重新定义现代人居的精神栖所。
-
用户体验:客户体验感强,有家的归属感
候鸟南飞依循坐标, 鲸群归途深谙磁道。 而人潮涌向此间屿台—— 是刻入基因的,恒温归巢
坐标沉入水镜的灰调岩板 凝滞潮汐,铺就意式岸滩 天花垂落光的罗盘针 穿越寒季,春在恒流中解封 我们被无形洋流 推送 成为寻找舒适鳃的陆生族类
地磁线牵引步履 胡桃木年轮,浮刻暖意经纬 光之鲷群咬碎寒层 墙体暗涌含氧的潮歌 隐藏肋栅簌簌启合 23℃脐带,漫溯如泽国。
屿台浮峙卷涌浪 游离绿意攀紧旧时光 烟缕垂落成静默锚 定泊此间,一室温谧的洄游道 俯身抚触地脉 如向古海床溯源 微光托浮细碎棱镜 爱与暖阳,蓄养脐瀛潮信
光鲷游入缝线的襞隙 曲面盘蜷待启的羊膜 抱枕沉降如月囊泊靠 恒静洋流漫过脐宫低频 新鳃 在季风水腔律动 幼鲀游向,宫房光晕中
归航的密钥,是HV恒暖的潮涌 坐标已锚定:意式极简的时空
0
0

认证 · 让您身份增值