白境・黑叙
2
作品说明
- 项目类型:住宅公寓
- 项目地点:郑州市
- 建筑面积:600㎡
- 项目造价:500万元
- 主案设计师: 常青
- 竣工时间:2025.06
-
项目定位:本项目设计以现代轻奢为核心风格,通过材质的精致碰撞、空间的层次营造与细节的艺术化处理,打造出兼具高级感与舒适感的居住体验,诠释当代高端生活美学。
-
空间意境:以暖米色、深黑棕为主色,搭配金属质感的金色、黄铜色作为点缀,局部融入墨绿、宝蓝等浓郁色彩,形成 “低饱和度基底 + 高质感点缀色” 的层次,既显大气雅致,又通过色彩对比强化视觉焦点。
-
空间布局:客厅采用开放式布局,弧形米白色布艺沙发与黑色金属单椅形成形态与色彩的对比,水晶环形吊灯如艺术装置悬浮于上空,成为视觉核心;电视背景墙以 “米白墙面 + 黑色竖纹木饰面” 的组合,搭配嵌入式电子壁炉,营造出既现代又温馨的社交场景
-
设计选材:主材主要选用低碳环保材料,各项主材均高于国家环保标准
-
用户体验:这场装修之旅,不仅让我们拥有了梦想中的居住空间,更让我们体验到了专业团队带来的省心、安心与舒心。如果说最初的期待是 “拥有一个好看的家”,那么最终的惊喜则是 “收获了一个既好看又好用,充满生活温度的家”。在此,由衷感谢整个装修团队的用心付出,是他们的专业与专注,让我们的理想家完美落地。
餐厨区通过拱形门洞实现空间过渡,厨房中岛采用大理石台面,搭配墨绿色丝绒铆钉吧椅,金色线性吊灯强化轻奢属性;圆形大理石餐桌与黑色艺术感餐椅的组合,让用餐空间兼具仪式感与设计感。
阁楼层旋转楼梯以黑色金属曲面为扶手,踏步铺贴爵士白大理石并嵌入线性灯带,搭配彩色玻璃球形吊灯,从功能空间蜕变为艺术装置,成为连接各层的视觉焦点,同时通过挑空设计增强空间的纵深感。
客厅采用开放式布局,弧形米白色布艺沙发与黑色金属单椅形成形态与色彩的对比,水晶环形吊灯如艺术装置悬浮于上空,成为视觉核心;电视背景墙以 “米白墙面 + 黑色竖纹木饰面” 的组合,搭配嵌入式电子壁炉,营造出既现代又温馨的社交场景。
负二层平面方案
负一层平面方案
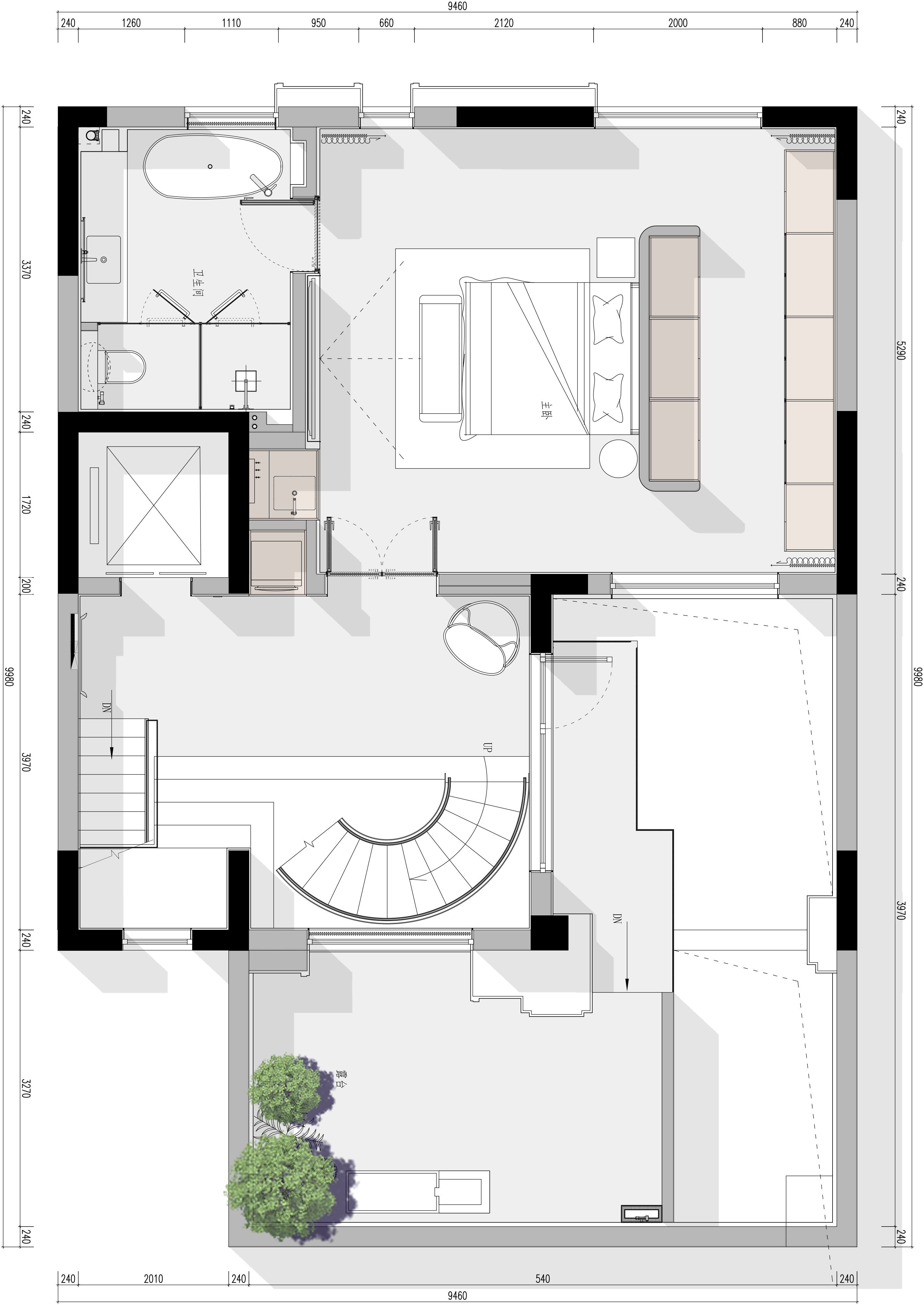
一层平面方案
二层平面方案
三层平面方案
四层平面方案
阁楼平面方案
0
0

认证 · 让您身份增值