冬日暖阳
10
作品说明
- 项目类型:别墅
- 项目地点:佛山市
- 建筑面积:800㎡
- 项目造价:680万元
- 主案设计师: 雷文瑞
- 竣工时间:2025年6月
- 设计机构:六郃空间设计
-
项目定位:而是一场以业主为主角、以空间为篇章的深度生活策展。我们旨在打造一个高度个性化、充满情感连接且能自由呼吸的殿堂级居所。
-
空间意境:风格随心,混搭亦自得。各层皆可自成风景,悦己便是最好设计。
-
空间布局:一楼:社交核心,开放通透
作为家庭与宾客的主要社交层,我们打造了一个一体化的开放大宅厅。客厅、餐厨区与专属咖啡吧流畅衔接,形成明亮、互动性极强的公共空间。这里充满现代活力,是日常小聚、社交宴饮的完美舞台。
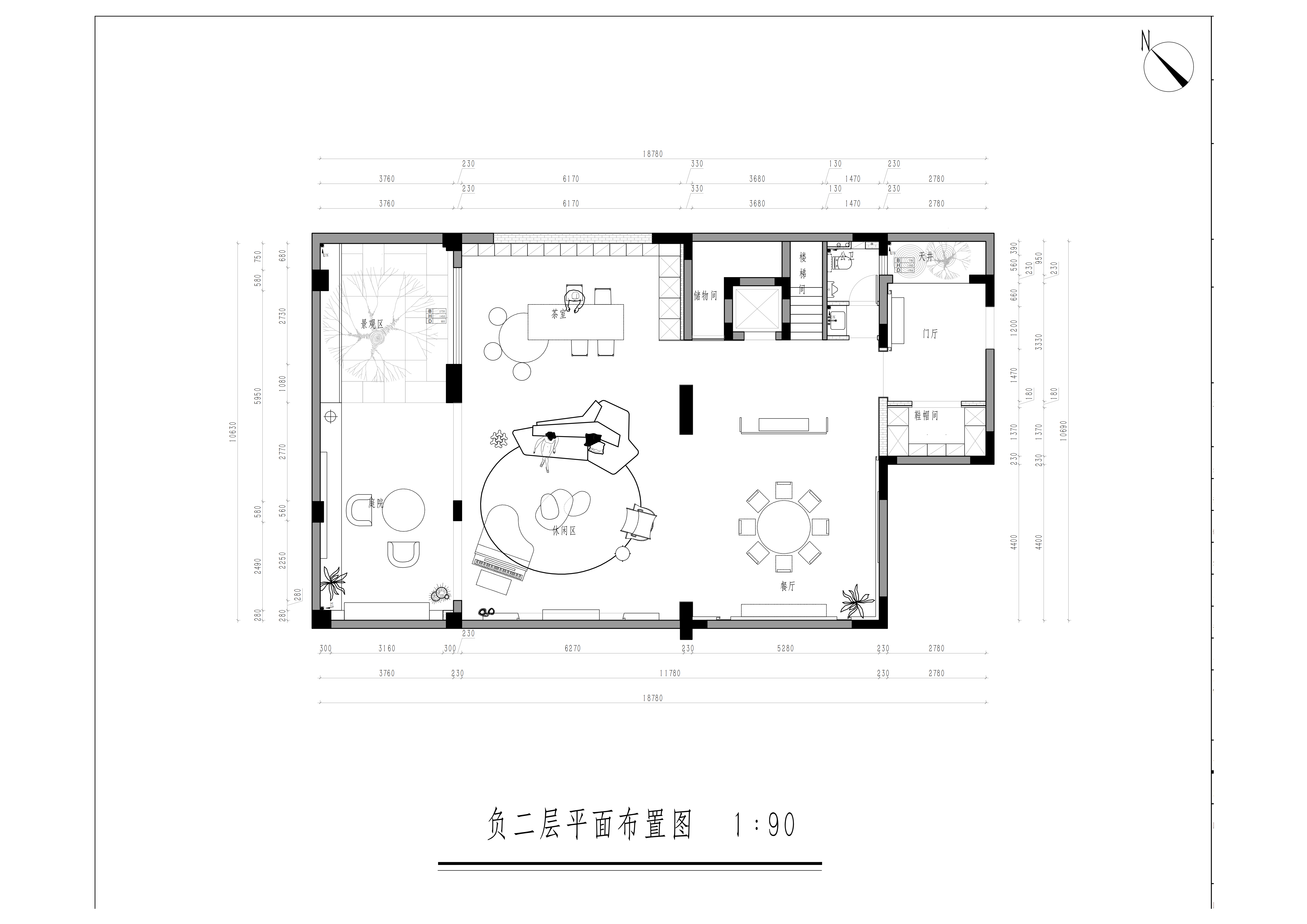
负二层:家庭聚落,别有洞天
得益于巨大的下沉式采光井,这一层获得了卓越的自然通风与光照,彻底打破了传统地下空间的压抑感。因此,我们将家庭最核心的团聚功能置于此:
大圆桌宴会厅:满足大家庭温馨聚餐的仪式感。
茶室与图书馆式客厅:围合出静谧、充满书卷气的精神休憩所。
这里成为家人最常停留、沉浸式相处与放松的“家庭核心聚落”,舒适度远超预期。
负一层:静谧之境,怡然自得
此层同样享有良好的采光,我们将其规划为相对私密的静养与容纳空间。设置舒适的客房与宁静的瑜伽室/冥想区,在保证功能性的同时,为家人与访客提供一处远离喧闹、修身养心的安宁之所。
设计逻辑总结:
动静分离,明暗有致。将动态社交置于地上,将静态团聚置于光井之下,让每一处空间都因其独特的物理条件,焕发出最适宜的生活氛围 -
设计选材:一套高度集成、性能卓越的极简材料系统,取代复杂、消耗性的传统装饰堆砌。 这不仅创造了独一无二的空间美学,更是一种面向未来的、负责任且智慧的生活投资。
-
用户体验:项目落成,业主入住后,我们收到了极为积极的反馈。这份满意不仅在于视觉的惊艳,更源于日常居住中每一处细节带来的身心契合。
业主表示,家中的每个角落都令人感到恰到好处的舒适与放松,功能与美学达到了高度统一。它不再仅仅是一个住所,更成为了家人内心向往的、乐于长久沉浸其中的情感归属地。
亲朋好友的到访,则从外部视角印证了设计的成功。空间获得了广泛的赞誉,常被形容为“独特、漂亮且充满高级感”。但更让业主感到欣喜的是,这个家超越了单纯的展示价值,真正上升为一种令人羡慕并渴望沉浸的生活方式——无论是家庭聚会、安静独处还是招待宾客,每个场景都自如且惬意。
最终,这份高度评价的核心在于:设计完美实现了“悦己”的初衷。 它不仅仅是一个被赞赏的“作品”,更是一个被深深喜爱和享受的“家园”,这标志着项目从概念到落地的全面成功。
0
0

认证 · 让您身份增值