富升Design3.0
2079
作品说明
- 项目类型:展示
- 项目地点:内江市
- 建筑面积:88㎡
- 项目造价:18万元
- 主案设计师: 张盛
- 参与设计师:张盛
- 竣工时间:2025.08
- 设计机构:国谦木作
票数 : 608
-
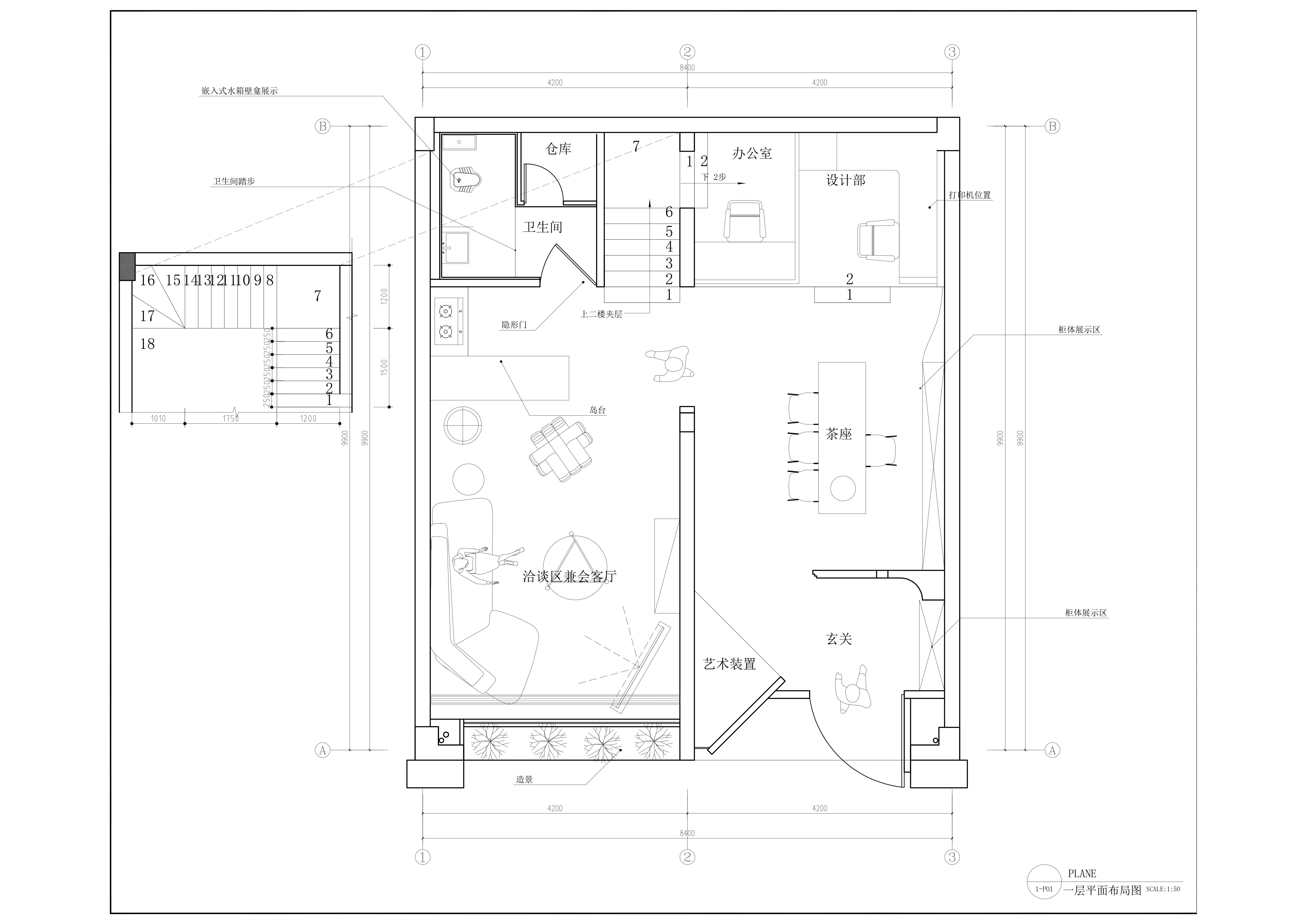
项目定位:6线城市定位的设计工作室 设计施工小而精的工作室
-
空间意境:整体用原木+洞石肌理漆结合不一样的感觉
-
空间布局:打破常规进门方案做斜墙门洞做小让里面的空间若隐若现 进门玄关做 富升的标志性物件F让这个空间玄关透镜的 茶室结合选样柜多功能的结合让空间更合理也做弧形延升到设计部办公区 设计部办公区域做BOX里面错层办公区域 会客厅兼备汇报方案客厅情景间 智能灯光情景间 上二楼区域利用楼梯底部做了卫生间 二楼为产品展示区
-
设计选材:材料主要肌理感乳胶漆+墙板来结合的一个空间
-
用户体验:落地后整体效果很好甲方实用在接待客户效果很好 客户进来体验的感受不错 整体控制造价和实用性美学结合的一个空间
0
1

认证 · 让您身份增值