Fjallraven
146 - 项目类型:零售
- 项目地点:成都市
- 建筑面积:330㎡
- 项目造价:120万元
- 主案设计师: 金彤
- 参与设计师:张梓桐
- 竣工时间:2024年4月
- 设计机构:北京泽维空间设计咨询有限公司
-
项目定位:项目定位:品牌基因出发,设计灵感来自瑞典户外运动,从中提取白桦树、木屋庇护所、栈道等元素,作为空间的主线,从而延展到空间的每个细节。
-
空间意境:从瑞典的白桦树中,提取年轮元素,作为空间地面的铺装动线,同时将年轮元素应用在包墙和鞋区,成为场域中最大亮点
-
空间布局:空间布局上,以年轮为主要元素,所有的陈列货架按年轮的走向进行布置,同时将一片白桦树林置于空间中岛区,让顾客可以身临其境的体验北欧的原生态,也和品牌传达的理念相一致:自然 、生态、环保
-
设计选材:墙面及顶面选用水泥漆,仿真的白桦树,木地板和麻绳铺装木栈道
-
用户体验:是品牌在西南区的旗舰店,同时拓展了西南市场,场景的打造让客人购买力提升,更愿意走进店里,从而拍照打卡,也是治愈的空间
开放式的入口,两边都可以进入,左边入口看过去是品牌主打的包墙 , 右侧主入口正对一片白桦树中岛,前段有帐篷结合DP,将自然生态融入空间
入口区域的DP点,和露营相关,主推户外露营产品
从主入口沿着栈道进入室内,映入眼帘的是一片白桦树林置入空间,作为中岛元素,采用苔藓、砾石、蕨类营造北欧原生态户外场景
裤区、鞋区和转角处的自行车区域,通过原木和年轮的元素,突出每个产品特点
栈道两边为男装和女装区,中间是放空做了休息区,客人可以踏着青石板去体验自然的气息,从而更加了解品牌所传达的设计理念
装备包和女装区,在特定的位置,沿用年轮的元素,作为装备包的展示墙面道具
装备包和女装区,在特定的位置,沿用年轮的元素,作为装备包的展示墙面道具
裤区和中岛白桦树,中间用栈道做了区域分割,麻绳作为压线,两种材质间采用砾石过渡,自然又朴实
裤区和鞋区,鞋区的道具用年轮做了隔板,配合木棍捆扎的座椅,很有记忆点
帐篷区旁的试衣间,我们用GRG材质模拟山的起伏,局部配有苔藓,面向帐篷一面凹龛处理,可以作为衍生产品的陈列
自行车区域,特意做了微地形,中间抬高处理,两边有小坡,敷上蕨类苔藓,局部配有毛石,在户外运动中我们也会有导示牌指引方向,我们也将这些导示牌借鉴过来,应用在空间中
自行车区域,特意做了一个微地形,打造小山丘的感觉,覆上植被,空间就有了趣味,老木桩也可以作为陈列道具,放置包包,让品牌更有生命力
自行车区域,特意做了微地形,中间抬高处理,两边有小坡,敷上蕨类苔藓,局部配有毛石,在户外运动中我们也会有导示牌指引方向,我们也将这些导示牌借鉴过来,应用在空间中
橱窗一角,采用年轮元素做框景,砂石和蕨类做配景,客人透过橱窗望入店里,沿着蜿蜒的栈道看向更远处
5米长的包墙,占了正面墙,层叠的曲线和主题元素年轮呼应,成为次入口的最佳打卡点,也让品牌最热门产品在最佳位置获得陈列,客人穿过绿植区即可到达
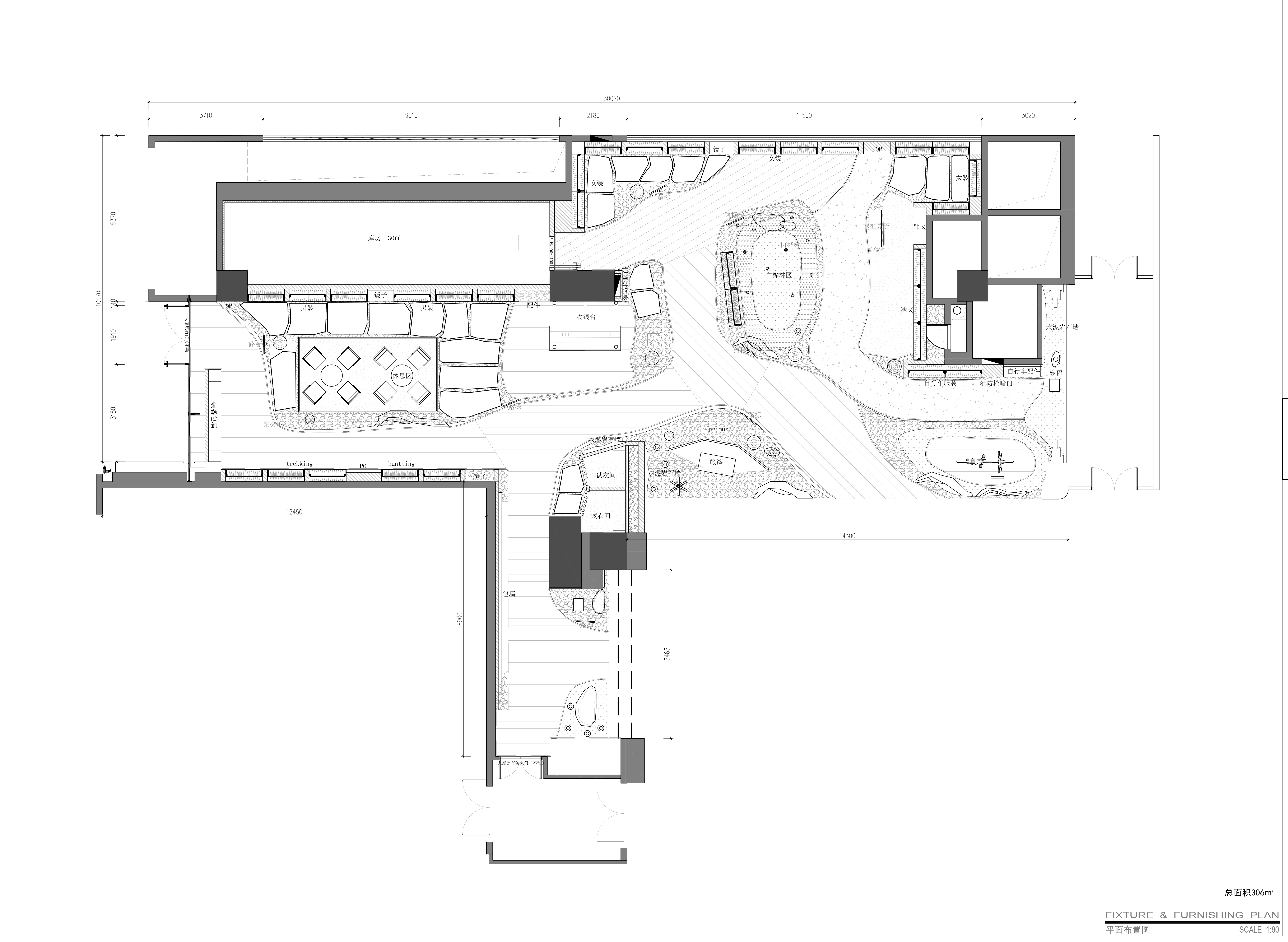
整体平面,以年轮作为空间布置元素,服装和道具产品沿着这条主线铺陈开来,空间有了主题,也有了故事,休息区和中岛在年轮的纹理中顺势而生,也打造出了山丘造型作为自行车区域,让顾客可以身临其境的去感受户外,从而了解户外运动品牌
0
0

认证 · 让您身份增值