云麓湾新作 | 听听时间怎么说
151 - 项目类型:别墅
- 项目地点:湖州市
- 建筑面积:237㎡
- 项目造价:130万元
- 主案设计师: 况倩男
- 参与设计师:苏远芳
- 竣工时间:2025年8月
- 设计机构:长兴汤臣装饰
-
项目定位:以时间为叙事轴,摒弃风格符号,构筑承载日常、沉淀情感的家庭栖境。
-
空间意境:借光影流转、柔化线条造景,让材质肌理诉说岁月,场景随时间生长。
-
空间布局:功能分区适配多元时光需求,隐藏收纳与成长型设计兼顾实用与灵动。
-
设计选材:优选深棕木纹等自然材质,低碳环保且性价比高,传递时光温润质感。
-
用户体验:居住舒适且情感共鸣强,获用户认可,成为记录生活的温暖载体。
听听时间怎么说, 深棕木纹娓娓落笔, 绘就客厅的舒展意境。 荧幕隐入素墙之间, 将沉淀时光轻声叙述。 沙发如一片安憩的港湾, 承载从容与宁和的每寸光阴。 整面玻璃门将阳光引入室内, 任晨光和暮色自由涂抹——我们匠心斟酌, 让自然与生活在此交织,写成一首属于家的诗。
听听时间怎么说, 弧形舒缓延展, 闭合成烟火的圆满。 色彩轻盈融入柜橱, 让漫溢的浓香停留在此地。 餐椅如一双等待的臂弯, 承载家常与温馨的每一幕。 光与影在空间中翩跹共舞, 任美味与笑语轻轻交融——我们潜心延续, 让烟火与日子在此相融,谱成一曲属于生活的歌。
听听时间怎么说, 光带如轻羽般拾级而上, 描摹出阶梯的翩跹曲线。 玻璃扶栏通透延伸, 将家的柔软时光温柔收藏。 踏步似一阕沉静的诗行, 承载从容与欢愉的每一程。 转角处童趣悄然栖息, 任天真与暖意自然漫溢——我们沉心构筑, 使空间与生活于此共舞,吟成一首属于阶梯的韵律。
听听时间怎么说, 暖白墙垣细腻着墨, 勾勒出室的雅致轮廓。 皮床悄然承托梦境, 将慵懒晨光轻轻封存。 妆椅如一件复古的藏品, 盛满精致与从容的每一刻。 双层帘幔把光影揉进空间, 任午后与黄昏自在晕染——我们用心打造, 让复古与日常在此相拥,谱成一阕属于卧室的词。
听听时间怎么说, 多元风格从容交汇, 绘就空间的独特脉络。 古筝静置于光影一隅, 将东方雅韵悄然凝驻。 电竞座椅如现代舰舱, 承载激情与角逐的分秒。 一室之内多元共生, 任沉静与炽烈自在对话——我们悉心营造, 使闲趣与生活于此相融,谱就一首属于自我的曲。
听听时间怎么说, 温煦光影细腻铺陈, 描摹出地下空间的宁和边界。 镜面静谧映照形意, 将凝神舒展的时分温柔留存。 瑜伽垫如一片安顿身心的净土, 承载内观与平衡的每寸光阴。 灯光如暖雾漫溢一室, 任呼吸与静谧缓缓融合——我们沉心酝酿, 让运动与生活于此相生,成就一首归于宁静的诗。
听听时间怎么说, 暖调肌理细腻铺叙, 描摹出地下空间的雅境轮廓。 投影如薄云轻悬顶面, 将私享时光温柔典藏。 展架似一道美学长廊, 纳藏灵感与品味的每一帧。 曲线经纬将空间温柔包裹, 任光影与艺术静谧对话——我们以诚心构思, 让生活与美学在此共生,终成一首暗处之光的咏叹。
听听时间怎么说, 原木以温润铺叙底色, 描摹出庭院的舒缓边界。 水景悄然漫入石隙, 将静谧时光温柔凝驻。 桌椅似一方停泊的岸, 盛放从容与笑语的每一帧。 绿意盈庭将自然轻拥入怀, 任晨露与夕风自在低语——我们以诗意筑境, 使生活与自然于此交融,终成一首属于大地的律诗。
负二层
负一层
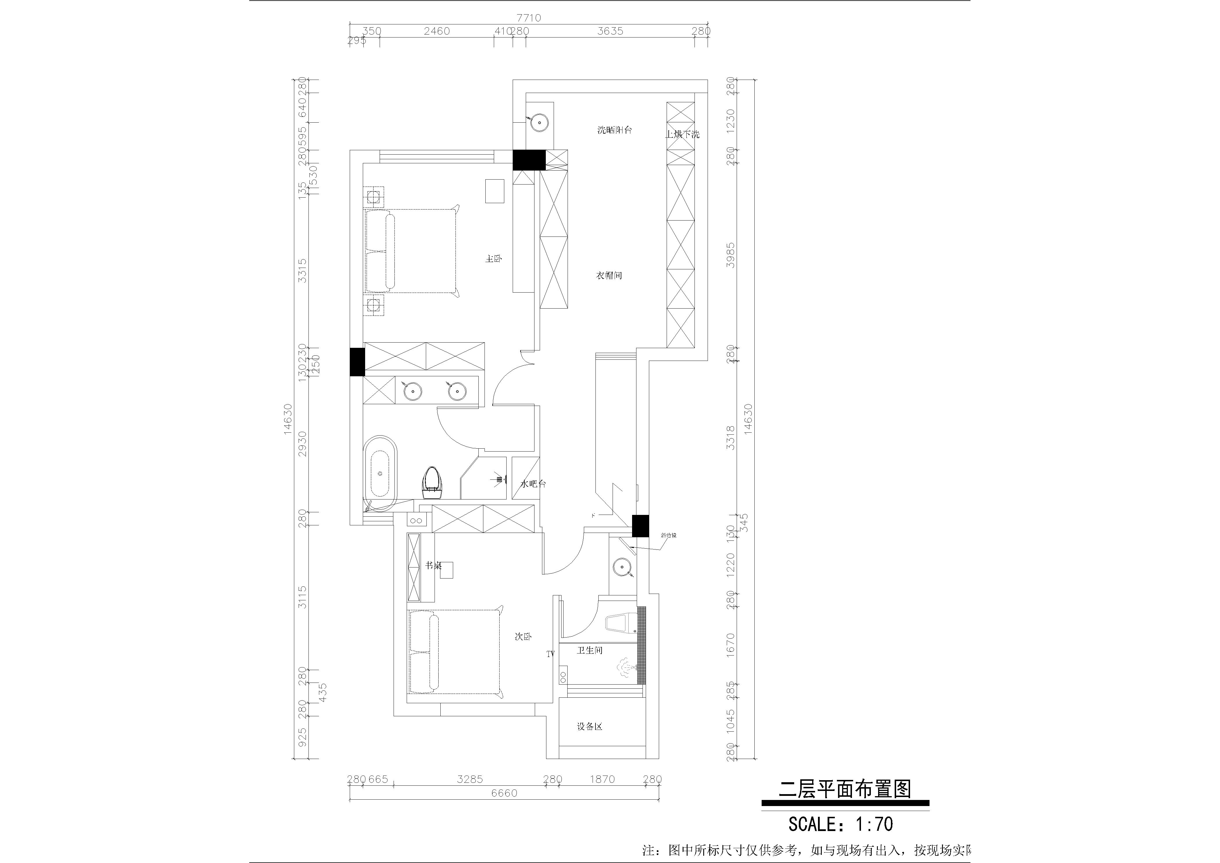
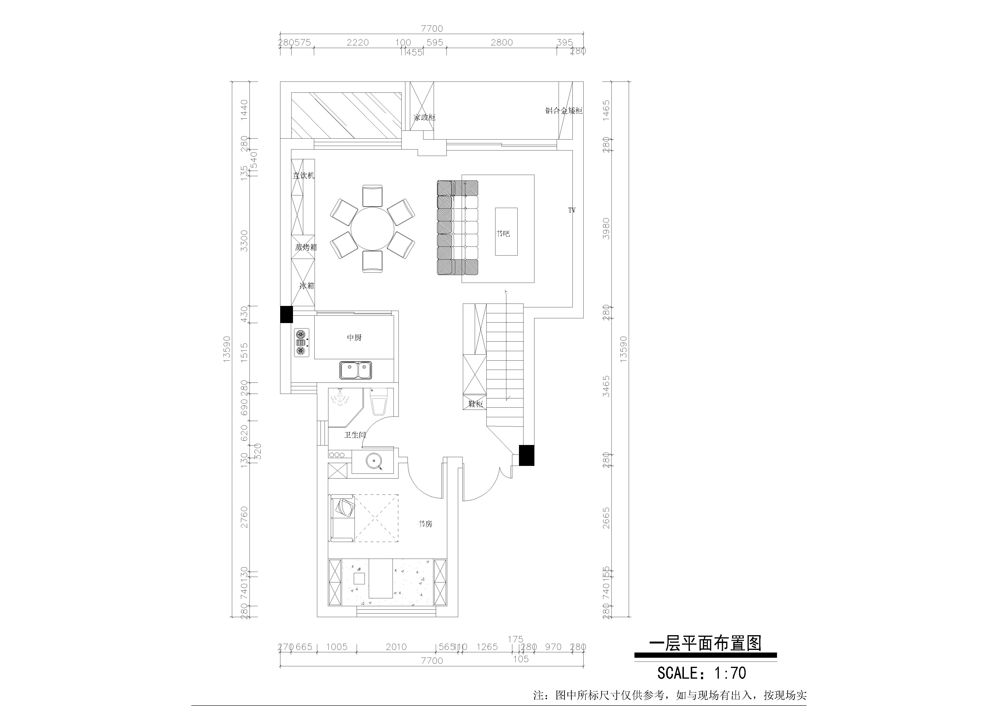
一层
二层
0
0

认证 · 让您身份增值