-
项目定位:本项目以 “传承别墅” 为核心基调,精准承接 “居家生活 + 商务接待” 的双重属性,聚焦父辈商务宴请与年轻二代朋友聚会的核心诉求,打破 “单一功能主导、风格割裂” 的传统别墅设计局限,打造兼具礼仪质感、生活温度与代际包容性的专属空间,实现 “商务不失格调、居家不减温馨” 的双重价值落地。
-
空间意境:风格创新核心:破局代际割裂,实现兼容共生;本作品以 “统一基底 + 分区个性” 为核心创新逻辑,打破别墅设计中代际审美割裂的痛点,在满足双重场景需求的同时,构建兼具连贯性与独特性的环境风格体系,让沉稳格调与年轻活力自然共生。
环境风格创新亮点
统一内核保障整体协调:提取经典材质肌理、和谐色彩基调作为空间统一基底,贯穿一层与负一层,避免因功能差异导致的风格断层,保障别墅整体视觉的完整性与高级感。
分区风格精准适配需求:一层商务接待区融入中式对称美学、质感石材与温润木作,以沉稳典雅的风格凸显宴请礼仪与格调;负一层社交聚会区采用现代简约线条、灵动灯光及金属、玻璃、艺术涂料的多元拼接,释放时尚活力,适配轻松娱乐场景。
传承元素现代转译:将家族文化符号转化为风格细节 —— 一层以低调纹样传递底蕴,负一层通过简化纹样、创意陈列实现年轻化表达,让传承基因融入风格肌理,兼顾文化内涵与审美适配。
-
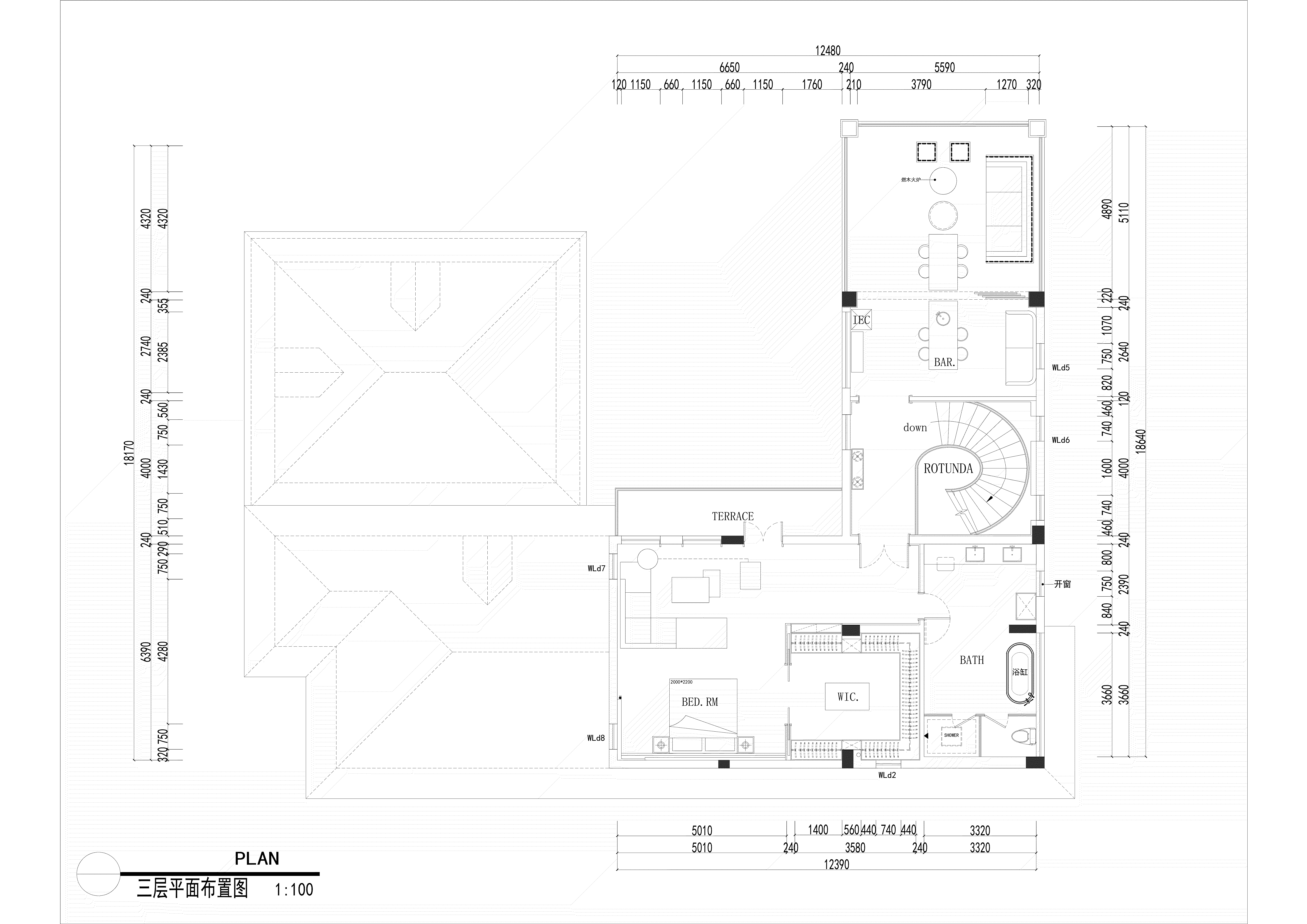
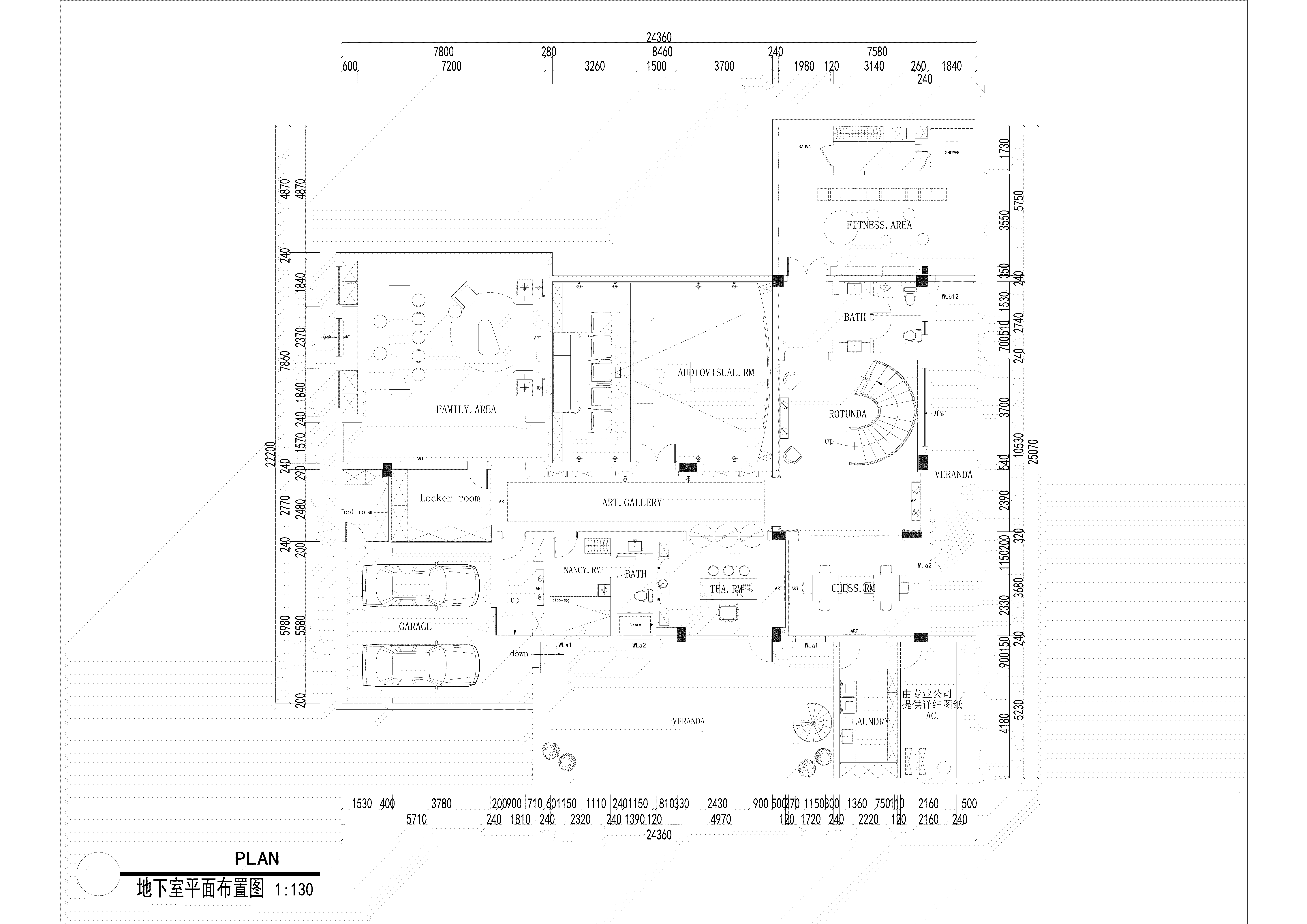
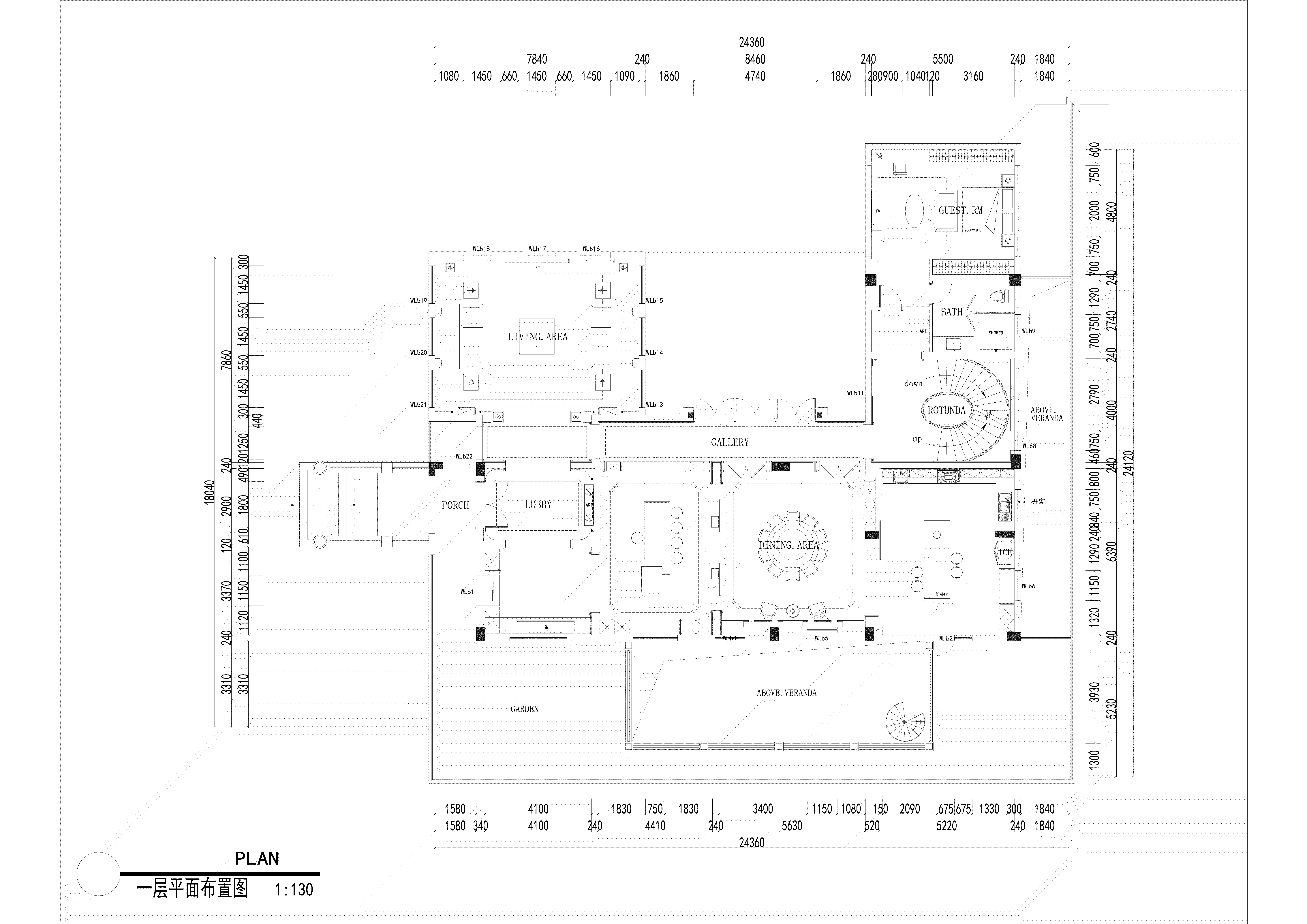
空间布局:一、布局创新核心:以长廊扩建打破空间局限,重构动线逻辑。本作品立足 U 型别墅原有体量(前楼入户门厅 + 客厅、后楼卧室 + 旋转楼梯、中间厨房餐厅衔接),核心创新在于扩建专属长廊联通前后楼,新增独立动线,从根源破解接待场景下的动线干扰问题,实现 “功能分区更清晰、场景适配更精准” 的布局升级。
二、空间布局创新亮点
动线双轨并行,隔离干扰:通过新增长廊构建 “主接待动线 + 日常起居动线” 双轨模式 —— 接待场景下,宾客可经长廊在前后楼间自由通行,无需穿越核心餐饮区,避免对用餐氛围与私密起居造成干扰;日常居家时,可沿用原有旋转楼梯动线,兼顾便捷性与空间私密性。
空间衔接更流畅,扩容实用价值:长廊不仅承担动线功能,更成为前后楼的自然过渡带,弥补原有 U 型布局的衔接短板,让入户、接待、起居、餐饮等空间形成闭环,提升整体空间的通透感与连贯性;同时为家庭新增灵活过渡区域,适配临时休憩、陈列展示等多元需求。
场景适配更精准,兼顾双重需求:布局创新精准匹配 “接待宴请 + 日常居家” 双重属性,既保障了商务接待的礼仪感与私密性,又不影响家庭成员的日常起居节奏,让 U 型别墅的空间潜力得到最大化释放,实现 “接待无干扰、居家更便捷” 的双重目标。 -
设计选材:一、选材创新核心:低碳为基,经济适配
以 “低碳环保 + 高性价比” 为双核心,打破 “环保即高价” 的固有认知,针对别墅接待与居家双重场景,实现材料环保属性、实用功能与经济成本的精准平衡。
二、选材创新亮点
低碳材料优先适配全龄:核心区域优先选用低甲醛、可回收环保建材(如生态涂料、再生石材),兼顾接待场景的质感呈现与居家场景的健康需求,从源头降低污染,践行可持续理念。
场景化高性价比搭配:接待区选用耐磨耐脏、易打理的高性价比材质(如防滑地砖、耐污木作),保障高频使用需求与后期维护经济性;居家区域搭配实用型环保材料,控制预算的同时不降低居住质感。
功能与成本双向优化:摒弃冗余装饰材料,聚焦核心功能需求选材 —— 公共区域重质感与耐用性,私密区域重舒适与环保,实现 “低碳不降配、经济不廉价” 的双重目标。
-
用户体验:功能适配提升生活效率:无冗余装饰的选材逻辑让空间更整洁,公共区域的质感材质撑得起接待格调,私密区域的环保材料保障居家舒适,双重场景切换自然,不影响使用体验。
用户真实评价
业主(父辈):“环保材料用着放心,接待客人时材质显质感,还不用费心打理,既体面又省心,预算也没超,特别满意。”
业主(年轻二代):“平时朋友聚会多,地面墙面耐造好清洁,家人住得健康,性价比远超预期,兼顾了社交与居家需求。”
祖辈:“房子住着舒服,孩子在家随便跑也不怕磕碰,选材看着实在又环保,住着踏实。”
0
0

认证 · 让您身份增值
224